Каталог запасных частей к технике: ХТЗ Т-151К. Кабина
1
2
3
4
5
5
6
7
8
9
10
11
12
13
14
15
16
17
18
19
20
21
22
23
24
25
26
27
28
29
30
31
32
32
33
34
35
36
37
37
38
38
39
40
41
42
43
43
43
44
45
46
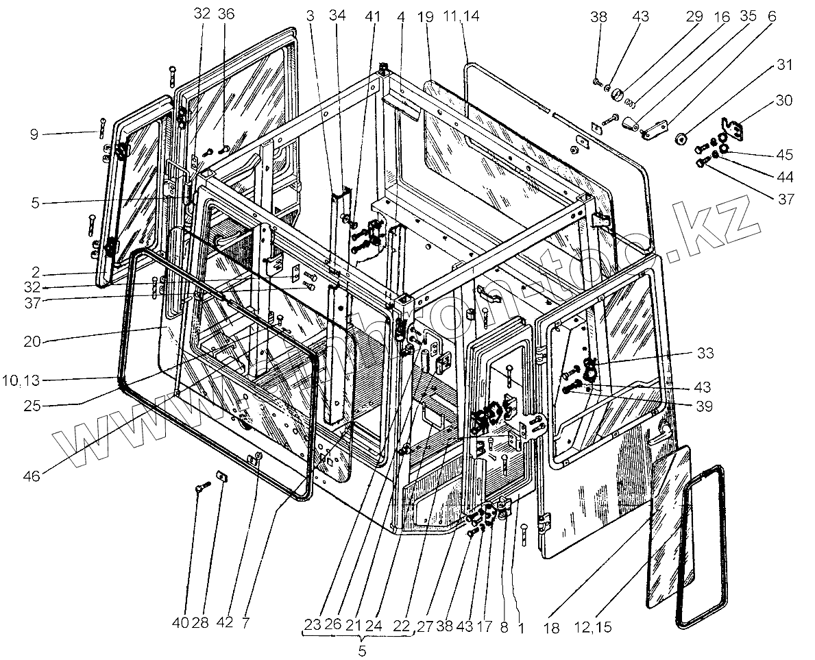
| Позиция на иллюстрации | Заводской номер детали | Название детали | |
|---|---|---|---|
| 1 | 150М.45.013 | Рамка левая | |
| 2 | 150М.45.028 | Рамка правая | |
| 3 | 150М.45.056 | Каркас правый | |
| 4 | 150М.45.056-01 | Каркас левый | |
| 5 | 150М.45.057-1 | Ограничитель | |
| 6 | 150М.45.094 | Защелка | |
| 7 | 151К.45.117 | Панель | |
| 8 | 151К.45.208 | Петля | |
| 9 | 151К.45.484 | Ось | |
| 10 | 151К.45.487 | Уплотнитель | |
| 11 | 151К.45.487-01 | Уплотнитель | |
| 12 | 151К.45.487-03 | Уплотнитель | |
| 13 | 151К.45.496 | Уплотнение | |
| 14 | 151К.45.496-01 | Уплотнение | |
| 15 | 151К.45.496-03 | Уплотнение | |
| 16 | 8.20.002 | Пружина | |
| 17 | 150М.45.131 | Планка | |
| 18 | 150М.45.138 | Стекло | |
| 19 | 150М.45.139-1 | Стекло | |
| 20 | 150М.45.140-1 | Стекло | |
| 21 | 150М.45.149-1 | Кронштейн | |
| 22 | 150М.45.150-1 | Кронштейн | |
| 23 | 150М.45.152-1 | Тяга | |
| 24 | 150М.45.152-1-01 | Тяга | |
| 25 | 150М.45.215 | Ось | |
| 26 | 150М.45.263-1 | Ручка | |
| 27 | 150М.45.269-02 | Уплотнитель | |
| 28 | 150М.45.364 | Скоба | |
| 29 | 150М.45.376 | Колпачок | |
| 30 | 150М.45.377 | Зацеп | |
| 31 | 150М.45.380 | Накладка | |
| 32 | 150М.45.388 | Шайба | |
| 33 | 150М.45.405 | Упор | |
| 34 | 150.45.449 | Шайба специальная | |
| 35 | А13.05.000 | Рукоятка управления | |
| 36 | М8х12.7796 | Болт | |
| 37 | М8х16.7796 | Болт | |
| 38 | М6х12.7798 | Болт | |
| 39 | М6х16.7798 | Болт | |
| 40 | М3х30.17473 | Винт (d=3, l=30, L0=12, H=2,1, D=5,5) | |
| 41 | М6х20.17475 | Винт | |
| 42 | М3.5927 | Гайка (d=3, H=2,4, S=5,5) | |
| 43 | 6 65Г.6402 | Шайба | |
| 44 | 8 65Г.6402 | Шайба | |
| 45 | 8.04.11371 | Шайба | |
| 46 | 1,6х12.397 | Шплинт |
Содержащиеся в справочниках-каталогах запасные части и детали не предлагаются к продаже, а носят исключительно информационный характер