Вернуться на главную
Поиск
Каталоги запчастей к технике
Спецтехника
Zoomlion
ZLJ5480JQZV3
HEATER D00671407700000000Y
Каталог запасных частей к технике: Zoomlion ZLJ5480JQZV3. HEATER D00671407700000000Y
zoom-in
zoom-out
enlarge
shrink
circle-right
circle-left
file-text2
info
cart
Тип техники
Не выбрано
Легковые автомобили
Грузовые автомобили и прицепы
Автобусы
Сельхозтехника
Спецтехника
Двигатели
Мототехника
Марка
Не выбрано
Ammann
BOMAG
CARMIX
CASE IH
Changlin
ChengGong
Dimex
Doosan
DYNAPAC
Foton
HAMM
Hidromek
Hitachi
Hyundai
JCB
JLG
John Deere
Komatsu
LIEBHERR
LiuGong
Lonking (LongGong)
Luneng
MANITOU
Mitsuber
New Holland
PENGPU
RM-Terex
SANY
SDLG
SEM
Shantui
Shehwa HBXG
Soosan
TIGARBO
VOGELE
Volvo
WAY
WIRTGEN
XCMG
XGMA
Xiamen
YTO
Yuchai
Zoomlion
Автокран
АЗСМ
Алтайлесмаш
Амкодор
АОМЗ
Атек
АТЗ
Балканкар Рекорд
БелАЗ
Беловеж
Борекс
Брянский Арсенал
Булат
ВЭКС
ГАЗ
Геомаш
Гидромаш
Донекс
Дормаш
Дормашина
Дорэлектромаш
ДЭЗ
ЕлАЗ
ЗЗГТ
Ижнефтемаш
Канаш-электрокар
КЗКТ
ККЗ
Клевер
Клинцовский автокрановый завод
КМЗ
КМЗ 1 Мая
Ковровец
Коммаш
Кранэкс
КЭЗ
КЭМЗ
ЛЗА
МАЗ
МЗИК
МЗКМ
МЗКТ
Михневский РМЗ
МоАЗ
Мозырский МЗ
МТЗ
ОЗП
Онежец
ПАО "ТЗА"
ППС Детва
Промтрактор
ПТЗ
Раскат
СпецАгрегат
ТВЭКС
ТТМ
УВЗ
Угличмаш
УЗТМ
ХТЗ
ЧЗКМ
ЧСДМ
ЧТЗ
ЭКСКО
ЭКСМАШ
ЮрМаш
Модель
Не выбрано
33X-4Z
47X-5RZ
K56X-6RZ
PL2304 (2021)
QUY260CR-32Y
QY55V53232Z
RN (90-110 л.с.)
RS (2021)
RT-100 (2013)
RT-35 (2013)
RT-55 (2013)
RT-551 (4x4) (2013)
RT-75 (2013)
ZCC1100H (2014)
ZD160T(S,SH, CS)-3 (2012)
ZE205E (2013)
ZLJ5480JQZV3 (2013)
ZLJ5500V3 (2013)
ZLJ5550JQZV3.2 (2016)
ZT20J (2019)
ZT68J (2019)
Схема
>
Не выбрано
ZLJ5480JQZV3 SPECIAL PURPOSE CHASSIS FOR TRUCK CRANE D00672400000000000Y
INTERCOOLING SYSTEM D00672400900000000Y
ENGINE AND SUSPENSION SYSTEM D00672401000000000Y
FUEL SUPPLY SYSTEM D00672401100000000Y
FUEL COARSE FILTER PRE-ASSEMBLED D00671441100200000Y
EXHAUST SYSTEM D00672401200000001Y
RAINPROOF CAP ASSY D00670131200200000Y
COOLING SYSTEM D00672401300000000Y
AIR INTAKE SYSTEM D00670711400000000Y
CLUTCH INSTALLATION AND ITS CONTROLS D00671621600000000Y
CLUTCH ASSY D1030500000_100005Y
TRANSMISSION INSTALLATION AND ITS CONTROLS D00672401700000000Y
TRANSMISSION (AXLE 1 ASSY) D1030300142_101250Y
TRANSMISSION (OPERATING DEVICE ASSY) D1030300142_101250Y
TRANSMISSION (LEFT INTERMEDIATE SHAFT ASSY) D1030300142_101250Y
TRANSMISSION (UPPER COVER ASSY) D1030300142_101250Y
TRANSMISSION (AXLE 2 ASSY) D1030300142_101250Y
TRANSMISSION (REAR COVER ASSY) D1030300142_101250Y
TRANSMISSION (REAR COVER ASSY) D1030300142_101250Y
TRANSMISSION (TRANSMISSION HOUSING BODY ASSY. AND ITS ACCESSORIES) D1030300142_101250Z
TRANSMISSION (TRANSMISSION HOUSING BODY ASSY. AND ITS ACCESSORIES) D1030300142_101250Z
TRANSMISSION (TRANSMISSION HOUSING BODY ASSY. AND ITS ACCESSORIES) D1030300142_101250Z
DRIVE SHAFT ARRANGEMENT D00672402200000000Y
DRIVE SECTION 1 D00672402200200000Y
DRIVE SECTION 2 D00672402200400000Y
DRIVE SECTION 3 D00672402200600000Y
DRIVE AXLE I (STEERABLE) PRE-ASSEMBLED D00672402300200000Y
DRIVE AXLE STEERED (BRAKE) D1030100872_100003Y
DRIVE AXLE STEERED (AXLE BODY) D1030100872_100003Y
DRIVE AXLE STEERED (HUB REDUCER) D1030100872_100003Y
DRIVE AXLE STEERED (MAIN REDUCER) D1030100872_100003Y
DRIVE AXLE STEERED (MAIN REDUCER) D1030100872_100003Y
DRIVE AXLE II (STEERABLE) PRE-ASSEMBLED D00672402300400000Y
DRIVE AXLE STEERED (BRAKE) D1030100873_100003Y
DRIVE AXLE STEERED (AXLE BODY) D1030100873_100003Y
DRIVE AXLE STEERED (HUB REDUCER) D1030100873_100003Y
DRIVE AXLE STEERED (MAIN REDUCER) D1030100873_100003Y
AXLE 1 ASSY. D00672403000200000Y
STEERED AND NON-DRIVEN AXLE D1030100874_102293Y
AXLE 2 ASSY D00672403000400000Y
STEERED AND NON-DRIVEN AXLE D1030100875_102293Y
WHEEL ASSY. D00672403100000000Y
FRONT SUSPENSION D00672402900200000Y
REAR SUSPENSION D00672402900400000Y
STEERING MECHANISM D00672403400200000Y
STEERING GEAR D1032300045-102262Y
STEERING GEAR D1032300045_100000Y
QC40/15-WP10 STEERING PUMP D1032300126_102194Y
STEERING OIL RESERVOIR D00672303400410001Y
OIL FILTER D1010600004_102124Y
HYDRAULIC AIR FILTER D1010500001_102124Y
STEERING BOOSTER CYLINDER D00677208410800000Y
AIR CONDITIONING SYSTEM D00671557620000000Y
HEATER D00671407700000000Y
DRIVER’S CAB INSTALLATION D00672404900000000Y
DRIVER’S CAB (BUMPER, PULLEY HOUSING AND ITS ACCESSORIES) D1130000435_102383Y
DRIVER’S CAB (STEERING COLUMN BRACKET ASSY.) D1130000435_102383Y
DRIVER’S CAB (VEHICLE DOOR) D1130000435_102383Y
DRIVER'S CAB (VEHICLE BODY AND ITS INTERIOR EQUIPMENT D1130000435_102383Y
DRIVER'S CAB (PEDAL BRACKET ASSY.) D1130000435_102383Y
DRIVER'S CAB (INSTRUMENT CONSOLE AND ITS ACCESSORIES) D1130000435_102383Y
DRIVER'S CAB (CARPET ASSY. AND ITS ACCESSORIES) D1130000435_102383Y
DRIVER'S CAB (HEAT INSULATING CUSHION ASSY.) D1130000435_102383Y
DRIVER'S CAB (L/R REAR OUTSIDE MIRROR AND ITS SUPPORT ROD ASSY.) D1130000435_102383Y
DRIVER'S CAB (SWITCH ASSY.) D1130000435_102383Y
DRIVER'S CAB (DECORATIVE PLATE AND ITS ACCESSORIES ASSY.) D1130000435_102383Y
DRIVER'S CAB (DECORATIVE IRON BRACKET) D1130000435_102383Y
DRIVER'S CAB (HEATER AND ITS ACCESSORIES) D1130000435_102383Y
DRIVER'S CAB (FRONT/REAR WINDSHIELD GLASS ASSY.) D1130000435_102383Y
DRIVER'S CAB (WIRE HARNESS ASSY. OF DRIVER’S CAB) D1130000435_102383Y
DRIVER'S CAB (WINDSHIELD WIPER SYSTEM) D1130000435_102383Y
DRIVER'S CAB (BRAKE SYSTEM) D1130000435_102383Y
DRIVER'S CAB (SEAT) D1130000435_102383Y
ENGINE HOUSING INSTALLATION ASSY. D00672405100000000Y
PLATFORM ASSY D00672405600000001Y
SPARE TIRE INSTALLATION D00672405500000000Y
BOARDING AND ITS INSTALLATION D00672405800000000Y
LEFT INTERMEDIATE GUARD RAIL D00672407900200000Y
RIGHT INTERMEDIATE GUARD RAIL D00672407900400000Y
TOOLBOX INSTALLAITON D00672409400200000Y
AIR BRAKE SYSTEM D00672403500000000Y
AIR RESERVOIR AND VALVE BLOCK ASSY. D00672403501000001Y
ELECTRICAL SYSTEM – CHASSIS FRAME D00672406300000000Y
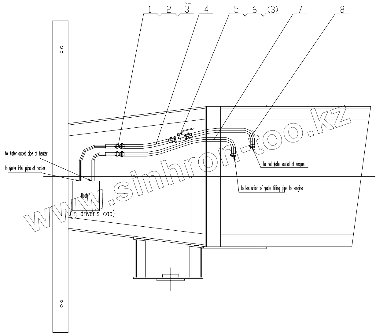
1
2
3
3
4
5
6
7
8
Позиция на иллюстрации
Заводской номер детали
Название детали
1
1990200195
Clamp
2
00670117700001010
Fitting
3
1990200026
Heavy hoop
4
00670117700001030
Water tank hose I
5
00670117700001021
Fitting
6
1130100054
Ball valve
7
00671407700001010
Water tank hose
8
00670117700001050
Water tank hose III
9
1990200010
Nylon strap
Содержащиеся в справочниках-каталогах запасные части и детали не предлагаются к продаже, а носят исключительно информационный характер
Дополнительная информация
×
Название:
Номер:
Примечание: