Каталог запасных частей к технике: Zoomlion ZD160T(S,SH, CS)-3. Крышка-капот (004904054A0000000)
1
2
2
2
2
2
3
3
3
3
4
5
6
6
7
8
9
10
10
11
11
12
13
14
14
14
15
15
15
15
16
16
16
17
17
17
17
18
18
18
19
20
20
21
21
22
22
23
24
25
26
26
27
28
29
30
31
31
32
33
34
35
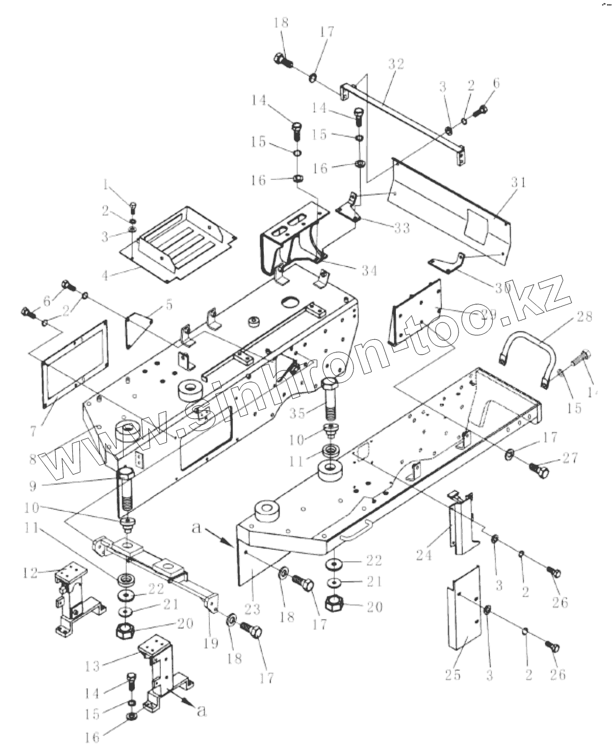
| Позиция на иллюстрации | Заводской номер детали | Название детали | |
|---|---|---|---|
| 1 | 004904055A4600000 | Монтажная планка аккумулятора | |
| 2 | 1040000094 | Bolt | |
| 3 | 1040300054 | Washer | |
| 4 | 1040300524 | Шайба 12 | |
| 5 | 004904055A0001050 | Крышка | |
| 6 | 1040000069 | Bolt | |
| 7 | 004904055A0001040 | Крышка | |
| 8 | 004904055A0200000 | Правое крыло | |
| 9 | 1040001356 | Болт M20x130-10.9 | |
| 10 | 004904055A3200000 | Демпфированный блок | |
| 11 | 004904055A0001010 | Демпфированный блок | |
| 12 | 004904055A3600000 | Подпорка | |
| 13 | 004904055A3800000 | Подпорка | |
| 14 | 1040000119 | Bolt | |
| 15 | 1040300068 | Washer | |
| 16 | 1040300525 | Шайба 14-200HV | |
| 17 | 1040000082 | Bolt | |
| 18 | 1040300540 | Шайба 16-200HV | |
| 19 | 004904055A4200000 | Кронштейн | |
| 20 | 1040200097 | Nut | |
| 21 | 1040300523 | Шайба 20 | |
| 22 | 004904055A0001020 | Доска | |
| 23 | 004904055A0400000 | Левое крыло | |
| 24 | 004904055A0800000 | Защитная планка маслопровода | |
| 25 | 004904056A1600000 | Защитная планка маслопровода | |
| 26 | 1040000108 | Bolt | |
| 27 | 1040000198 | Bolt | |
| 28 | 004904055A0001060 | Поручень | |
| 29 | 004904055A2400000 | Подпорка | |
| 30 | 004904055A2200000 | Опорная планка | |
| 31 | 004904055A0001080 | Защитная планка | |
| 31 | 004904055A4400000 | Задняя защитная планка | |
| 32 | 004904055A2000000 | Кронштейн | |
| 33 | 004904055A1800000 | Опорная планка | |
| 34 | 004904055A1600000 | Подпорка | |
| 35 | 1040002191 | Болт M20x140-10.9 |
Содержащиеся в справочниках-каталогах запасные части и детали не предлагаются к продаже, а носят исключительно информационный характер