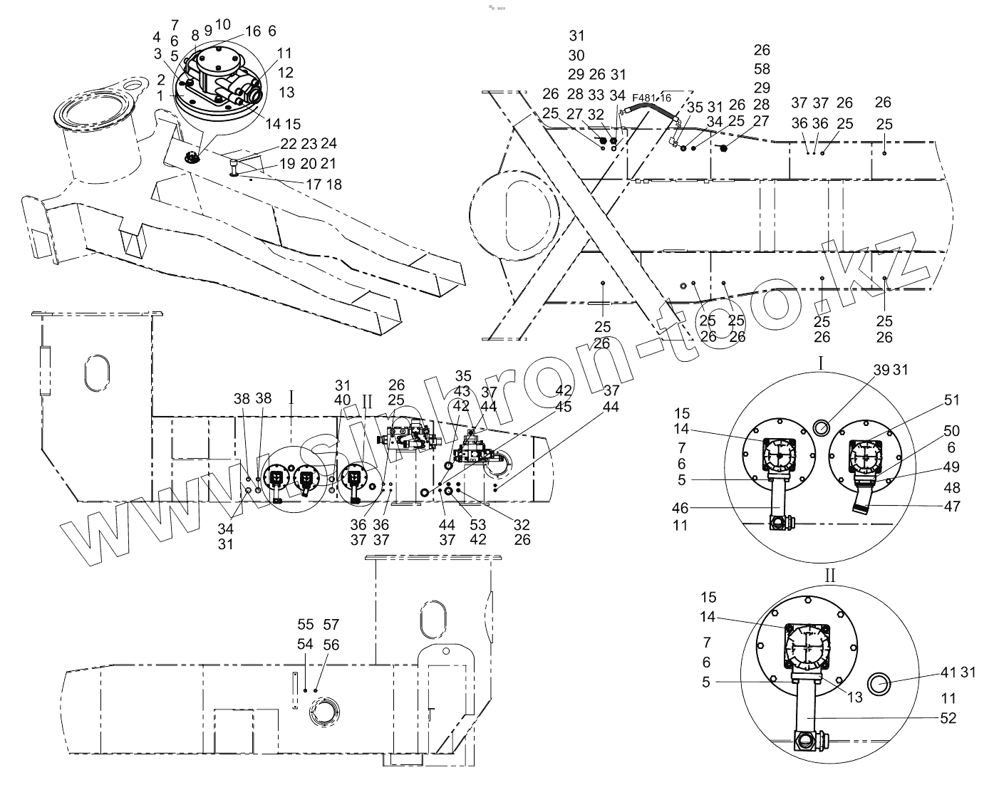
Каталог запасных частей к технике: Zoomlion 33X-4Z. Chassis oil port layout diagram 001615418A0001000
1
2
3
4
5
5
5
6
6
6
6
6
7
7
7
8
9
10
11
11
11
12
13
13
14
14
14
15
15
15
16
17
18
19
20
21
22
23
24
25
25
25
25
25
25
25
25
25
25
26
26
26
26
26
26
26
26
26
26
26
26
26
27
27
28
28
29
29
30
31
31
31
31
31
31
31
32
32
33
34
34
34
35
35
36
36
36
36
37
37
37
37
37
37
37
38
38
39
40
41
42
42
42
43
44
44
44
45
46
47
48
49
50
51
52
53
54
55
56
57
58
| Позиция на иллюстрации | Заводской номер детали | Название детали | |
|---|---|---|---|
| 1 | 001605118A0000002 | Oil return transition flange | |
| 2 | 1081000569 | O-ring | |
| 3 | 1040100122 | Screw | |
| 4 | 1040300063 | Washer | |
| 5 | 1040100071 | Screw | |
| 6 | 1040300067 | Washer | |
| 7 | 1040300061 | Washer | |
| 8 | 1081000474 | O-ring | |
| 9 | 000198930A0600013 | Flange joint | |
| 10 | 1140101565 | Flange haff | |
| 11 | 1081000475 | O-ring | |
| 12 | 000198930A0600014 | Flange joint | |
| 13 | 1140101630 | Flange half | |
| 14 | 1040000094 | Bolt | |
| 15 | 1040300054 | Washer | |
| 16 | 1040100111 | Screw | |
| 17 | 001605120A0000002 | Transition flange | |
| 18 | 001605120A0000004 | Gasket | |
| 19 | 1040100103 | Screw M4x16-4.8 GB/T818-2000 | |
| 20 | 1040300045 | Washer | |
| 21 | 1040300044 | Washer | |
| 22 | 001605120A0020000 | Air filter cover | |
| 23 | 1040000304 | Bolt | |
| 24 | 1040200100 | Nut | |
| 25 | 1140101567 | Screw plug | |
| 26 | 1081000485 | Rhombus seal | |
| 27 | 001605149A0000005 | Drain joint | |
| 28 | 1081000085 | Combination seal washer | |
| 29 | 1010300520 | Ball valve | |
| 30 | 000198930A1200016 | Drain joint | |
| 31 | 1081000487 | Rhombus seal | |
| 32 | 1140101724 | Straight joint | |
| 33 | 1140101484 | Three-way combination joint | |
| 34 | 1140101815 | Fitting | |
| 35 | 1140101737 | Right angle built-up joint | |
| 36 | 1140101558 | Screw plug | |
| 37 | 1081000480 | Rhombus seal | |
| 38 | 1140103506 | Straight joint | |
| 39 | 000198930A1200001 | Temperature sensor transition connector | |
| 40 | 000198930A0100007 | End straight connector | |
| 41 | 1140101568 | Screw plug | |
| 42 | 1081000488 | Rhombus seal | |
| 43 | 001607118A0050000 | Diffusion device | |
| 44 | 1140101662 | Straight joint | |
| 45 | 1140101559 | Screw plug | |
| 46 | 001605149A0090000 | Boom pump oil suction joint | |
| 47 | 001607518A0105100 | Main pump suction oil filter takes over | |
| 48 | 1081000548 | O-ring 97.5x3.55 | |
| 49 | 1040100235 | Screw | |
| 50 | 000198930A0700003 | Flange haff | |
| 51 | 000198910A1200009 | Vacuum gauge connector (18e-20a) | |
| 52 | 001605119A0030000 | Constant pressure pump oil suction joint | |
| 53 | 001607219A0050000 | Diffusion device | |
| 54 | 1140101462 | End straight coupling | |
| 55 | 1140101477 | Right angle built-up joint | |
| 56 | 1140101941 | End straight connector | |
| 57 | 1140101476 | Right angle built-up joint | |
| 58 | 001605149A0000004 | Joint body |
Содержащиеся в справочниках-каталогах запасные части и детали не предлагаются к продаже, а носят исключительно информационный характер