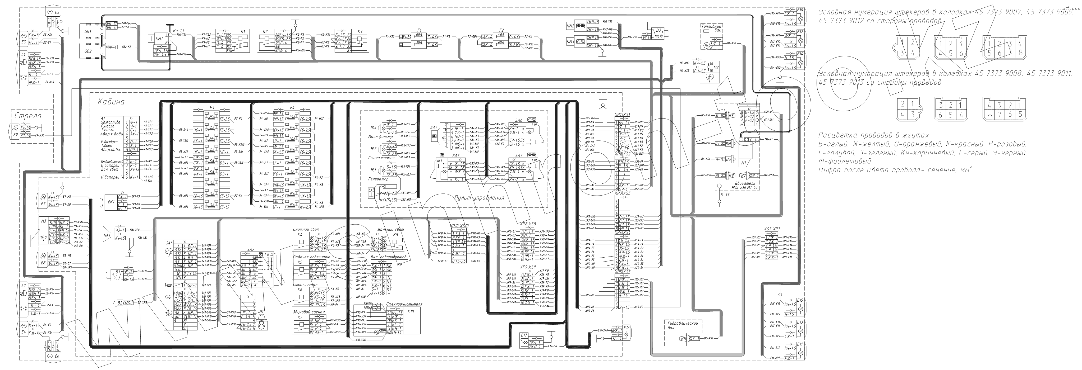
Каталог запасных частей к технике: ТВЭКС ЕК-20-20. 320-00-88.60.000-10 Электросхема
А1
В1
В2
В3
В4
В4
В5
В6
В7
В8
В9
В10
Е1
Е2
Е3
Е4
Е5
Е6
Е7
Е8
Е9
Е10
Е11
Е12
Е13
Е14
Е15
Е16
Е17
ЕК1
F1
F2
F3
F3
G
GВ1
GВ2
КМ2
КМ3
М1
М2
М3
S1
SA1
SA2
SA3
SA4
SA5
SA6
SA7
ХР1
ХР2
ХР3
ХР4
ХР5
ХР7
ХР8
ХР9
ХР10
ХS1-ХSA5
ХS1-ХSA5
ХS1-ХSA5
ХS1-ХSA5
ХS7-ХSA10
| Позиция на иллюстрации | Заводской номер детали | Название детали | |
|---|---|---|---|
| 3 | 320-70-88.59.040 | Жгут проводов | |
| 4 | 320-00-88.60.210 | Жгут проводов | |
| 5 | 320-70-88.59.220-10 | Жгут проводов | |
| 6 | 320-00-88.60.060 | Провод стрелы | |
| 7 | 220-00-88.55.040 | Провод | |
| 8 | 225-10-88.12.130 | Провод | |
| 9 | 225-10-88.12.120 | Провод | |
| 10 | 005-04-88.14.180 | Провод | |
| А1 | ЭПП-4-06 | Электронная панель приборов | |
| В1 | 2802.3829 | Датчик | |
| В2 | 18.3829 | Датчик | |
| В3 | 2702.3829 | Датчик аварийного давления воздуха | |
| В4 | В26.3827 | Датчик | |
| В5 | Датчик | Датчик | |
| В6 | ММ358 | Датчик | |
| В7 | ТМ100В | Датчик | |
| В8 | ТМ100В | Датчик | |
| В9 | ТМ11103 | Датчик температуры | |
| В10 | 2602.3829 | Датчик | |
| Е1 | 423.3711010 | Фара | |
| Е2 | 423.3711010 | Фара | |
| Е3 | УП115-3726010-В | Передний указатель поворота | |
| Е4 | УП115-3726010-В | Передний указатель поворота | |
| Е5 | УП101-3726010-В | Боковой повторитель указателя поворота | |
| Е6 | УП101-3726010-В | Боковой повторитель указателя поворота | |
| Е7 | 8724.304/013 | Фара | |
| Е8 | 8724.304/013 | Фара | |
| Е9 | 8724.304/013 | Фара | |
| Е10 | УП115-3726010-Г | Задний указатель поворота | |
| Е11 | УП115-3726010-Г | Задний указатель поворота | |
| Е12 | ФП116-3716010 | Фонарь задний | |
| Е13 | ФП116-3716010 | Фонарь задний | |
| Е14 | ФП115-3716010-В | Фонарь задний | |
| Е15 | ФП115-3716010-В | Фонарь задний | |
| Е16 | 12.3717-02 | Фонарь | |
| Е17 | 16.3714-01 | Плафон | |
| ЕК1 | 11.3725010 | Прикуриватель | |
| F1 | 111.3722 | Блок предохранительный | |
| F2 | БПР-2М | Блок предохранителей | |
| F3 | 46.3722 | Блок предохранителей | |
| F3 | 46.3722 | Блок предохранителей | |
| G | Генератор | Генератор | |
| GВ1 | 6СТ-190 | Батарея аккумуляторная | |
| GВ2 | 6СТ-190 | Батарея аккумуляторная | |
| КМ2 | КМ16-11 | Клапан электромагнитный | |
| КМ3 | КМ16-11 | Клапан электромагнитный | |
| М1 | Стартер | Стартер | |
| М2 | СО1112.5208-27 | Электродвигатель омывателя | |
| М3 | 6002.3730-01 | Мотор-редуктор стеклоочистителя | |
| S1 | 24.3704 | Выключатель | |
| SA1 | 68.3709 | Переключатель | |
| SA2 | 581.3710 | Переключатель | |
| SA3 | 11.3704-01 | Переключатель | |
| SA4 | 245.3710-03 | Переключатель | |
| SA5 | 581.3710-01 | Выключатель клавишный | |
| SA6 | 581.3710-01 | Выключатель клавишный | |
| SA7 | 581.3710-01 | Выключатель клавишный | |
| ХР1 | Колодка | Колодка соединительные | |
| ХР2 | Колодка | Колодка соединительные | |
| ХР3 | Колодка | Колодка соединительные | |
| ХР4 | Колодка | Колодка соединительные | |
| ХР5 | Колодка | Колодка соединительные | |
| ХР7 | Колодка | Колодка соединительные | |
| ХР8 | Колодка | Колодка соединительные | |
| ХР9 | Колодка | Колодка соединительные | |
| ХР10 | Колодка | Колодка соединительные | |
| ХS1-ХSA5 | Колодка | Колодка соединительные | |
| ХS7-ХSA10 | Колодка | Колодка соединительные |
Содержащиеся в справочниках-каталогах запасные части и детали не предлагаются к продаже, а носят исключительно информационный характер