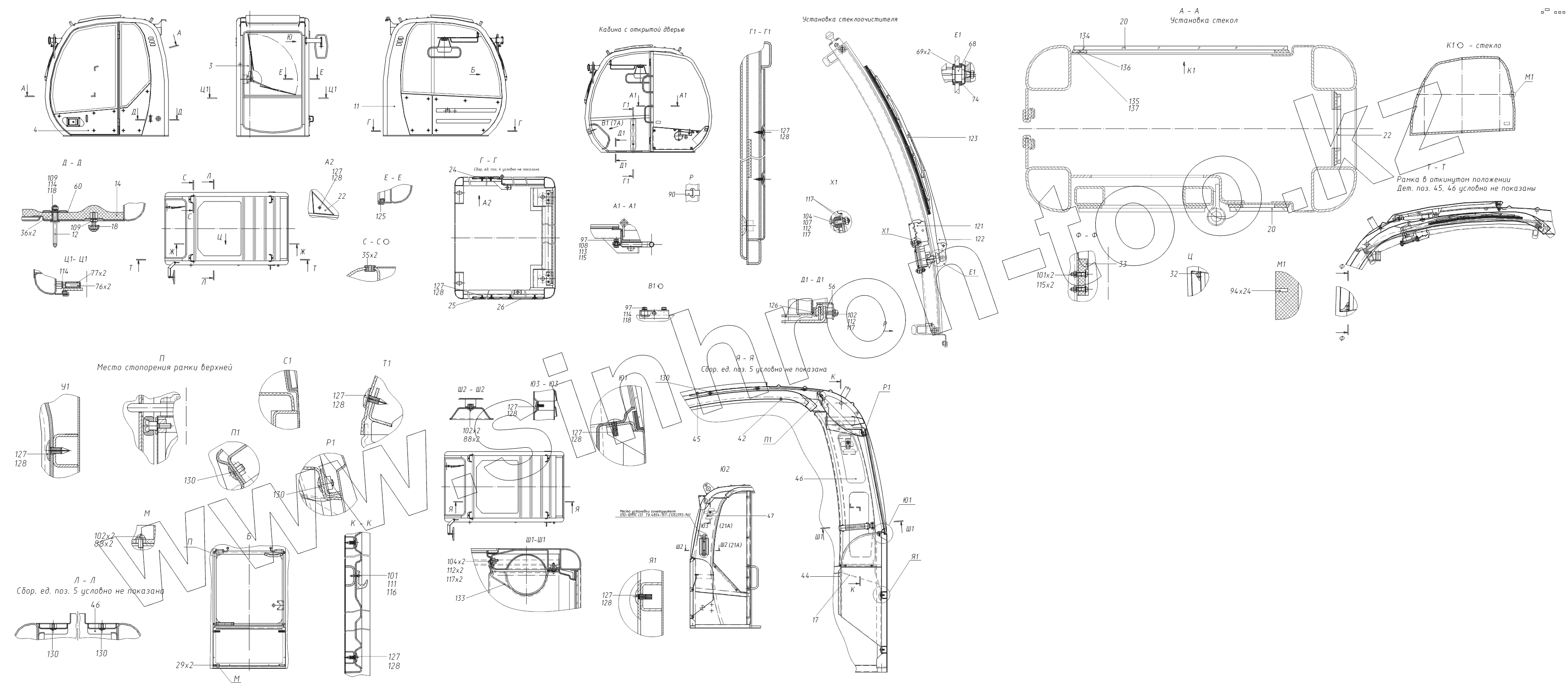
Каталог запасных частей к технике: ТВЭКС ЕК-18-90. 312-20-02.00.000-50 Кабина
3
4
11
12
14
17
18
20
20
22
22
24
25
26
29
32
33
35
36
42
44
45
46
46
47
56
60
68
69
74
76
77
88
88
90
94
97
97
101
101
102
102
102
104
104
107
108
109
109
111
112
112
112
113
114
114
114
115
115
116
117
117
117
117
118
118
121
122
123
125
126
127
127
127
127
127
127
127
127
127
128
128
128
128
128
128
128
128
128
130
130
130
130
130
133
134
135
136
137
| Позиция на иллюстрации | Заводской номер детали | Название детали | |
|---|---|---|---|
| 3 | 312-20-02.30.000 | Рамка верхняя | |
| 4 | 312-20-02.40.000 | Дверь | |
| 5 | 312-20-02.50.000 | Установка люка | |
| 11 | 312-20-02.10.000-50 | Металлоконструкция кабины | |
| 12 | 312-20-02.00.300 | Скоба | |
| 13 | 312-20-02.00.410 | Фиксатор | |
| 14 | 312-20-02.90.000 | Установка вибро- и шумоизоляции | |
| 17 | 312-40-02.00.500 | Панель задняя | |
| 18 | 005-01-10.00.010 | Амортизатор | |
| 20 | 312-20-02.00.001 | Стекло | |
| 21 | 312-20-02.00.002 | Стекло | |
| 22 | 312-20-02.00.003 | Стекло | |
| 23 | 312-20-02.00.004 | Панель внутренняя | |
| 24 | 312-20-02.00.005 | Панель левая | |
| 25 | 312-20-02.00.006 | Панель правая | |
| 26 | 312-20-02.00.007 | Панель | |
| 28 | 312-20-02.00.063 | Поручень | |
| 29 | 312-20-02.00.061 | Амортизатор | |
| 30 | 312-20-02.00.062 | Шайба | |
| 32 | 312-20-02.00.014 | Упор левый нижний | |
| 33 | 312-20-02.00.015 | Упор правый нижний | |
| 35 | 312-20-02.00.017 | Втулка предохранительная | |
| 36 | 312-20-02.00.018 | Втулка | |
| 38 | 312-20-02.00.020 | Поручень | |
| 39 | 312-20-02.00.021 | Панель | |
| 42 | 312-40-02.00.075 | Панель верхняя | |
| 44 | 312-40-02.00.072 | Облицовка правая | |
| 45 | 312-20-02.00.027 | Профиль | |
| 46 | 312-20-02.00.028 | Профиль | |
| 47 | 312-40-02.00.071 | Облицовка левая | |
| 56 | 312-20-02.00.038 | Уголок | |
| 60 | 312-20-02.00.042 | Крышка | |
| 68 | 312-20-02.00.051 | Гайка | |
| 69 | 312-20-02.00.052 | Кольцо | |
| 74 | 312-20-02.00.057 | Шайба | |
| 76 | 312-20-02.00.059 | Палец резьбовой | |
| 77 | 312-20-02.00.061 | Амортизатор | |
| 78 | 312-40-02.00.086 | Прижим | |
| 79 | 312-40-02.00.087 | Планка | |
| 80 | 312-40-02.00.088 | Крючок | |
| 86 | 312-20-02.20.001 | Стекло нижнее | |
| 87 | 003-01-002.00.010 | Крючок | |
| 88 | ЭО-3322Б.10.02.008 | Шайба | |
| 90 | Э302-1-1600-14 | Хомутик | |
| 94 | 005-06-02.64.008 | Вставка | |
| 97 | М8-6gx20.58.016 | Болт | |
| 99 | М10-6gx30.58.016 | Болт | |
| 101 | В.М4-6gx20.48.016 | Винт | |
| 102 | В.М6-6gx14.48.016 | Винт | |
| 104 | В.М6-6gx22.48.016 | Винт | |
| 106 | М4-6Н.04.016 | Гайка | |
| 107 | М6-6Н.04.016 | Гайка | |
| 108 | М8-6Н.04.016 | Гайка | |
| 109 | М10-6Н.04.016 | Гайка | |
| 111 | 4.65Г.016 | Шайба | |
| 112 | 6.65Г.016 | Шайба | |
| 113 | 8.65Г.016 | Шайба | |
| 114 | 10.65Г.016 | Шайба | |
| 115 | C8.01.08кn.019 | Шайба | |
| 116 | C4.01.08кn.019 | Шайба | |
| 117 | C6.01.08кn.019 | Шайба | |
| 118 | C10.01.08кn.019 | Шайба | |
| 121 | 471.373012/2.5 | Мотор-редуктор | |
| 122 | 492.5205800-10 | Рычаг очистителя «Автоприбор», г. Владимир | |
| 123 | 49.5205900 | Щетка стеклоочистителя «Автоприбор» г. Владимир | |
| 125 | 450/6107805 | Уплотнитель резиновый армированный АО "Уралэластотехника" l=1315 мм | |
| 126 | 450/6107805 | Уплотнитель резиновый армированный АО "Уралэластотехника" l=1315 мм | |
| 127 | 3302-5602155 | Пистон крепления обивки, цвет серый | |
| 128 | 3302-5602156 | Гнездо пистона | |
| 129 | 2108-5402270/71 | Пистон крепления обивки цвет черный | |
| 130 | 2106-2803055 | Винт крепления накладки бампера | |
| 133 | 31029-1311182-50 | Ремешок резиновый | |
| 134 | Terostat-8511 | Праймер | |
| 135 | Terostat-8521 | Праймер | |
| 136 | Terostat-8590 | Клей | |
| 137 | Terostat-8550 | Очиститель |
Содержащиеся в справочниках-каталогах запасные части и детали не предлагаются к продаже, а носят исключительно информационный характер