Вернуться на главную
Поиск
Каталоги запчастей к технике
Спецтехника
LiuGong
CLG-888
22Е0114 Проводка задней рамы
Каталог запасных частей к технике: LiuGong CLG-888. 22Е0114 Проводка задней рамы
zoom-in
zoom-out
enlarge
shrink
circle-right
circle-left
file-text2
info
cart
Тип техники
Не выбрано
Легковые автомобили
Грузовые автомобили и прицепы
Автобусы
Сельхозтехника
Спецтехника
Двигатели
Мототехника
Марка
Не выбрано
Ammann
BOMAG
CARMIX
CASE IH
Changlin
ChengGong
Dimex
Doosan
DYNAPAC
Foton
HAMM
Hidromek
Hitachi
Hyundai
JCB
JLG
John Deere
Komatsu
LIEBHERR
LiuGong
Lonking (LongGong)
Luneng
MANITOU
Mitsuber
New Holland
PENGPU
RM-Terex
SANY
SDLG
SEM
Shantui
Shehwa HBXG
Soosan
TIGARBO
VOGELE
Volvo
WAY
WIRTGEN
XCMG
XGMA
Xiamen
YTO
Yuchai
Zoomlion
Автокран
АЗСМ
Алтайлесмаш
Амкодор
АОМЗ
Атек
АТЗ
Балканкар Рекорд
БелАЗ
Беловеж
Борекс
Брянский Арсенал
Булат
ВЭКС
ГАЗ
Геомаш
Гидромаш
Донекс
Дормаш
Дормашина
Дорэлектромаш
ДЭЗ
ЕлАЗ
ЗЗГТ
Ижнефтемаш
Канаш-электрокар
КЗКТ
ККЗ
Клевер
Клинцовский автокрановый завод
КМЗ
КМЗ 1 Мая
Ковровец
Коммаш
Кранэкс
КЭЗ
КЭМЗ
ЛЗА
МАЗ
МЗИК
МЗКМ
МЗКТ
Михневский РМЗ
МоАЗ
Мозырский МЗ
МТЗ
ОЗП
Онежец
ПАО "ТЗА"
ППС Детва
Промтрактор
ПТЗ
Раскат
СпецАгрегат
ТВЭКС
ТТМ
УВЗ
Угличмаш
УЗТМ
ХТЗ
ЧЗКМ
ЧСДМ
ЧТЗ
ЭКСКО
ЭКСМАШ
ЮрМаш
Модель
Не выбрано
CLG 425 (2010)
CLG 777A-S (2010)
CLG-2040H (2045H, 2050HL, 2040H, 2045H, 2050HL) (2016)
CLG-220 (2008)
CLG-225 (2008)
CLG-365A (2012)
CLG-375 (2008)
CLG-375A (2008)
CLG-385A (2008)
CLG-4165 (2015)
CLG-418 (2008)
CLG-4215 (2010)
CLG-612 (2008)
CLG-614 (2010)
CLG-618 (2010)
CLG-626R
CLG-766 (2015)
CLG-766A (2012)
CLG-816G (2012)
CLG-835
CLG-835 (2015)
CLG-835H (2015)
CLG-836 (2015)
CLG-842
CLG-842
CLG-842 (2015)
CLG-855N (2015)
CLG-856 (2015)
CLG-856H (2015)
CLG-856I
CLG-862 (2015)
CLG-877 (2015)
CLG-888 (2015)
CLG-904С (2007)
CLG-915D
CLG-915D
CLG-920D
CLG-920E (2015)
CLG-922D
CLG-922LC
CLG-922LC (2008)
CLG-925 (2015)
CLG-925D (2015)
CLG-933E (2010)
CLG-B160 (2010)
Схема
>
Не выбрано
00Е0100 Система двигателя
50С0095 Система всасывания и выхлопа
00E0087 Система охлаждения радиатора
23С0031 Система управления подачей топлива
00Е0086 Топливный бак
40С0103 Топливный фильтр в сборе
01Е0042 Передний мост
01Е0043 Задний мост
01Е0044 Обод колеса в сборе
20Е0078 Система масляного охлаждения моста
04Е0011 Система трансмиссии и гидротрансформатора
02Е0027 Система охлаждения трансмиссии
02Е0020 Соединительный корпус
03Е0026 Карданная передача
41С0066 Промежуточная опора
20E0056 Тормозная схема
10Е0062 Цилиндр подъема в сборе
10С0063 Цилиндр опрокидывания
10С0065 Цилиндр поворота в сборе
21С0024 Масляный бак
00С0149 Гидросистема цилиндра подъема
0C0175 Гидросистема распределения
00С0176 Схема масляного бака
00C0177 Распределительный клапан рулевого управления
00С0178 Рулевое управление
00С0188 Рулевое управление
00С0189 Гидросистема цилиндра подъема
00С0193 Система управления рабочим оборудованием
00С0256 Система охлаждения гидравлики
12С0015 Редукционный клапан
10Е0021 Рулевая колонка в сборе
44C0039 Редукционный клапан в сборе
44С0042 Клапан распределения в сборе
44С0043 Редукционный клапан в сборе
44С0069 Контрольный клапан в сборе
44С0055 Гидроусилитель в сборе
44С0065 Насосы в сборе
44С0071 Выключатель контрольного клапана в сборе
20Е0053 Система аварийного тормоза
21Е0033 Система стояночного тормоза
45C0022 Тормозной клапан в сборе
42С0023 Загрузочный клапан в сборе
45С0024 Азотный аккумулятор
45С0025 Клапан стояночного тормоза в сборе
30Е0038 Передняя рама
30Е0047 Задняя рама
30Е0048 Соединение полурам
32Е0041 Рабочее оборудование
32Е0042 Ковш
32Е0043 Зуб ковша
32Е0050 Система автоматического управления ковшом
25Е0005 Схема централизованной смазки
45Е0019 Противовес
43Е0065 Ступень и поручень в сборе
30E0056 Предохранительная серьга
41Е0029 Кабина в сборе
43Е0052 Переднее крыло
43E0054 Правое крыло
43Е0055 Правое крыло
43Е0056 Лестница в сборе
43Е0057 Лестница в сборе
41Е0028 Платформа
44Е0060 Капот двигателя в сборе
44Е0076 Подъемник
22Е0109 Проводка передних фар
22Е0110 Проводка задних фар
22Е0111 Проводка устройств переключения
22E0112 Проводка двигателя
22Е0113 Система омывателей стекол
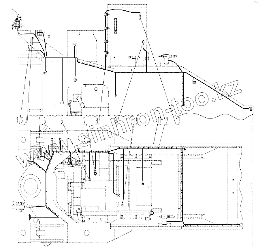
22Е0114 Проводка задней рамы
22Е0115 Проводка кабины
46С0295 Предохранитель и реле в сборе
22E0116 Освещение
22Е0117 Проводка верхнего освещения
22E0118 Аккумулятор и проводка
22Е0122 Панель датчиков в сборе
22Е0189 Система управления подъемом
Электрическая схема
1
2
3
4
5
6
7
8
9
10
11
12
13
Позиция на иллюстрации
Заводской номер детали
Название детали
1
38В0011
Клаксон
2
00В0007
Болт
3
06В0006
Шайба
4
03В0036
Гайка
5
06В0003
Шайба
6
30В0119
Датчик давления
7
30В0062
Датчик
8
09С0050
Хомут
9
30В0074
Датчик температуры охлаждающей
10
30В0100
Датчик
11
08С0298
Кабели
12
86А0053
Скоба
13
30В0039
Датчик давления
Содержащиеся в справочниках-каталогах запасные части и детали не предлагаются к продаже, а носят исключительно информационный характер
Дополнительная информация
×
Название:
Номер:
Примечание: