Вернуться на главную
Поиск
Каталоги запчастей к технике
Спецтехника
LiuGong
CLG-835
30E0698 000 REAR FRAME AS
Каталог запасных частей к технике: LiuGong CLG-835. 30E0698 000 REAR FRAME AS
zoom-in
zoom-out
enlarge
shrink
circle-right
circle-left
file-text2
info
cart
Тип техники
Не выбрано
Легковые автомобили
Грузовые автомобили и прицепы
Автобусы
Сельхозтехника
Спецтехника
Двигатели
Мототехника
Марка
Не выбрано
Ammann
BOMAG
CARMIX
CASE IH
Changlin
ChengGong
Dimex
Doosan
DYNAPAC
Foton
HAMM
Hidromek
Hitachi
Hyundai
JCB
JLG
John Deere
Komatsu
LIEBHERR
LiuGong
Lonking (LongGong)
Luneng
MANITOU
Mitsuber
New Holland
PENGPU
RM-Terex
SANY
SDLG
SEM
Shantui
Shehwa HBXG
Soosan
TIGARBO
VOGELE
Volvo
WAY
WIRTGEN
XCMG
XGMA
Xiamen
YTO
Yuchai
Zoomlion
Автокран
АЗСМ
Алтайлесмаш
Амкодор
АОМЗ
Атек
АТЗ
Балканкар Рекорд
БелАЗ
Беловеж
Борекс
Брянский Арсенал
Булат
ВЭКС
ГАЗ
Геомаш
Гидромаш
Донекс
Дормаш
Дормашина
Дорэлектромаш
ДЭЗ
ЕлАЗ
ЗЗГТ
Ижнефтемаш
Канаш-электрокар
КЗКТ
ККЗ
Клевер
Клинцовский автокрановый завод
КМЗ
КМЗ 1 Мая
Ковровец
Коммаш
Кранэкс
КЭЗ
КЭМЗ
ЛЗА
МАЗ
МЗИК
МЗКМ
МЗКТ
Михневский РМЗ
МоАЗ
Мозырский МЗ
МТЗ
ОЗП
Онежец
ПАО "ТЗА"
ППС Детва
Промтрактор
ПТЗ
Раскат
СпецАгрегат
ТВЭКС
ТТМ
УВЗ
Угличмаш
УЗТМ
ХТЗ
ЧЗКМ
ЧСДМ
ЧТЗ
ЭКСКО
ЭКСМАШ
ЮрМаш
Модель
Не выбрано
CLG 425 (2010)
CLG 777A-S (2010)
CLG-2040H (2045H, 2050HL, 2040H, 2045H, 2050HL) (2016)
CLG-220 (2008)
CLG-225 (2008)
CLG-365A (2012)
CLG-375 (2008)
CLG-375A (2008)
CLG-385A (2008)
CLG-4165 (2015)
CLG-418 (2008)
CLG-4215 (2010)
CLG-612 (2008)
CLG-614 (2010)
CLG-618 (2010)
CLG-626R
CLG-766 (2015)
CLG-766A (2012)
CLG-816G (2012)
CLG-835
CLG-835 (2015)
CLG-835H (2015)
CLG-836 (2015)
CLG-842
CLG-842
CLG-842 (2015)
CLG-855N (2015)
CLG-856 (2015)
CLG-856H (2015)
CLG-856I
CLG-862 (2015)
CLG-877 (2015)
CLG-888 (2015)
CLG-904С (2007)
CLG-915D
CLG-915D
CLG-920D
CLG-920E (2015)
CLG-922D
CLG-922LC
CLG-922LC (2008)
CLG-925 (2015)
CLG-925D (2015)
CLG-933E (2010)
CLG-B160 (2010)
Схема
>
Не выбрано
45E0739 006 DECAL GROUP
45E1230 000 NAMEPLATE GP
00Y0021 000 ENGINE SYSTEM
20C0115 000 SHROUD
21C011 002 FUEL TANK
16C0004 002 BREATHER CAP
20C0085 000 RADIATOR GP
01E0057 006 FRONT AXLE AS
45C0004 003 CLAMP AS
41C0605 001 BEVEL GEAR AS
01E0080 013 REAR AXLE AS
41C0606 001 BEVEL GEAR AS
41C0087 000 DIFFERENTIAL
01E0059 000 TYRE & RIM AS
41C0090 000 RIM AS
01E0081 001 BRAKE LINES
03E0038 002 DRIVE SHAFT SYSTEM
51C0072 001 MIDDLE DRIVE SHAFT
05E0219 001 GEARBOX & TORQUE CONVERTER AS
52C0209 004 TORQUE CONVERTER
04E0077 004 TRANSMISSION MOUNTING
11C0718 002 GEAR SHIFT PUMP
42C0350 009 TRANSMISSION
42C0350 (A) TRANSMISSION
42C0350 (B) TRANSMISSION
52C0071 001 OVERRUN CLUTCH
42C0094 002 REVERSE PLANET CARRIER
42C0349 001 PLANETARY CARRIER
42C0102 002 DIRECT DRIVE GP
42C0350 (C) TRANSMISSION
52C0041 001 FILLER TUBE
12C2407 001 SHIFT CONTROL VALVE
12C2363 001 SHIFT CONTROL VALVE
15E1301 000 HYDRAULIC SYSTEM
10C1205 004 BUCKET TILTING CYLINDER
00C2361 001 CONTROL VALVE LINES
10C0203 000 BOOM CYLINDER
00C2362 000 TILTING CYLINDER LINES
00C2964 000 PILOT LINES
12C3759 000 PILOT VALVE MOUNTING AS
12C0400 000 CHECK VALVE
12C1196 004 COMBINATION VALVE
12C2574 000 PILOT OIL FILTER
00C1732 000 COOLER LINES
11C1067 002 PUMP AS
21C0488 001 HYDRAULIC OIL TANK
12C1008 001 CHECK VALVE
12C3249 001 CONTROL VALVE AS
12C1611 003 CONTROL VALVE
00C2214 000 STEERING LINES
10C0360 001 STEERING CYLINDER
44C0961 002 STEERING COLUMN AS
44C0023 001 STEERING SHAFT
12C3052 001 RELIEF VALVE MOUNTING
00C1736 001 BOOM CYLINDER LINES
20E0512 000 SERVICE BRAKE SYSTEM
13C0584 000 COMBINATION VALVE
13C0054 000 AIR RESERVOIR AS
21E0027 000 PARKING BRAKE SYSTEM
13C0008 001 BRAKE
45C0020 007 PARKING BRAKE AS
30E0699 000 FRONT FRAME AS
00C0147 001 GREASE LINES
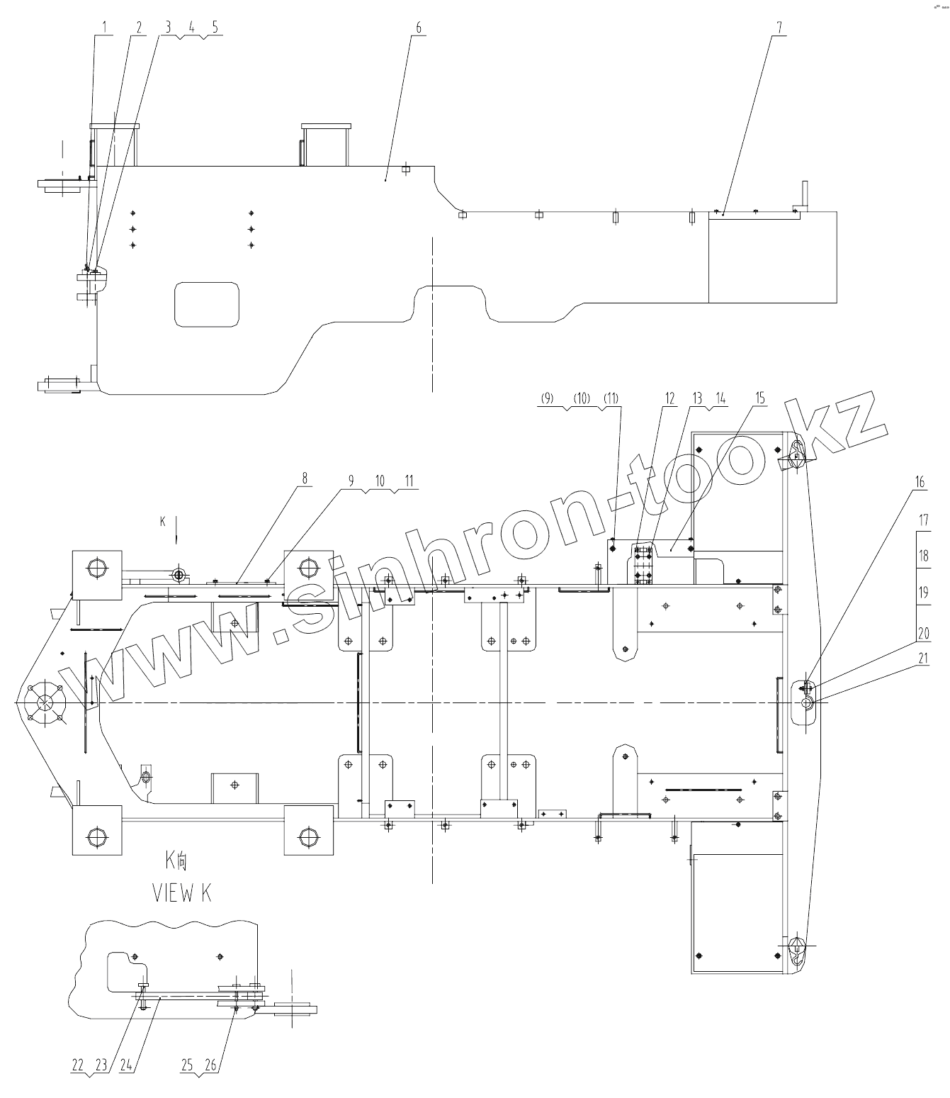
30E0698 000 REAR FRAME AS
43C0285 001 ARTICULATED HITCH
32E1093 000 EQUIPMENT
01E0053 002 GREASE LINES
32E0369 001 BUCKET AS (1.7 cubic meters)
22D0054 003 BUCKET
44C0819 000 POSITIONER AND KICKOUT SYSTEM
32E1517 000 WASHER
41E0612 000 CAB AS
47C1290 002 DOOR-LH
47C1291 002 DOOR-RH
47C0194 002 HAND REST
34C1806 002 DECORATION AS
47C1941 001 CONTROL BOX AS
41E0412 001 PLATE AS
41E0159 000 CAB GUARD AS
41E0157 000 REARVIEW MIRROR AS
48C0316 001 REAR FENDER-LH
43E0061 003 FRONT FENDER AS
48C0314 001 FENDER-RH
43E0008 003 STEP AS
43E0102 003 LADDER
43E0005 004 LADDER AS-RH
44E0062 006 ENGINE HOOD AS
24C0034 001 LIFT MECHANISM
46E0040 002 SEAT AS
23E0136 007 AIR CONDITIONING SYSTEM
23E0030 001 COMPRESSOR BRACKET
46C0645 001 EVAPORATOR AS
22E1587 000 ELECTRICAL SYSTEM
46C4395 001 FRONT FRAME WIRING
46C8014 000 REAR FRAME WIRING
46C4396 003 BATTERY WIRING
46C8015 000 CAB WIRING
46C8016 001 CONTROL BOX
46C4397 000 LIGHT GROUP
46C4295 000 FRONT FLOODLIGHT-RH
46C4296 000 FRONT FLOODLIGHT-LH
46C4041 000 WIPER SYSTEM
46C3483 000 WORK LIGHT WIRING
46C3693 004 PLATFORM AS
46C3692 000 PLATFORM AS
50Y0020 000 ELECTRICAL SCHEMATIC
1
2
3
4
5
6
7
8
9
9
10
10
11
11
12
13
14
15
16
17
18
19
20
21
22
23
24
25
26
Позиция на иллюстрации
Заводской номер детали
Название детали
1
10B0014
Ниппель
2
60A0068
STEERING PIN
3
14A0126
STOP PLATE
4
06B0008
Шайба
5
00B0011
Болт
6
30D0964
REAR FRAME
7
34C1144
BATTERY COVER GP
8
10A0605
PLATE
9
06B0006
Шайба
10
06B0005
WASHER
11
00B0075
BOLT
12
23A1175
Рама
13
06B0007
WASHER
14
00B0017
BOLT
15
21A0914
COVER
16
14A0027
STOP PLATE
17
06B0002
Шайба
18
55A0028
GASKET
19
03B0053
NUT
20
00B0029
Болт
21
11D0176
TRACTION PIN
22
60A0160
Pin
23
08B0017
Палец
24
17A0243
Linkage
25
60A0178
Pin
26
08B0005
Cotter pin
Содержащиеся в справочниках-каталогах запасные части и детали не предлагаются к продаже, а носят исключительно информационный характер
Дополнительная информация
×
Название:
Номер:
Примечание: