Каталог запасных частей к технике: LiuGong CLG-626R. 22Y0023 Rear Frame Assembly
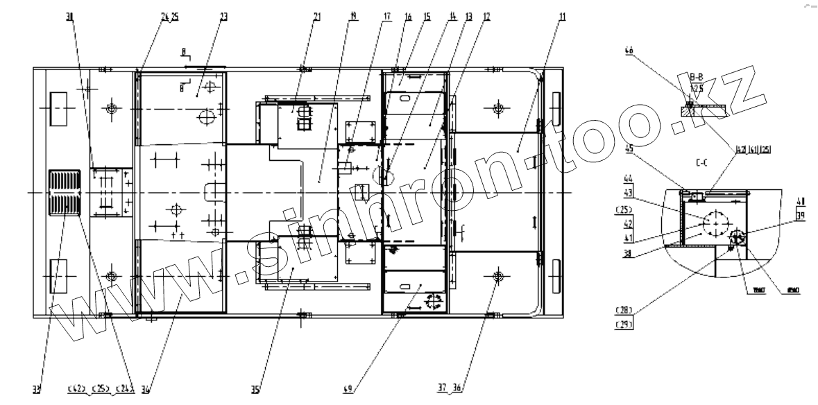
11
12
13
14
15
16
17
19
21
23
24
24
25
25
25
25
28
29
30
33
34
35
36
37
38
39
40
41
41
42
42
42
43
44
45
46
49
| Позиция на иллюстрации | Заводской номер детали | Название детали | |
|---|---|---|---|
| 1 | 30X0021 | Frame | |
| 2 | 47W0051 | Viewfinder | |
| 3 | 41X0016 | Bar | |
| 4 | 00В0035 | Болт | |
| 5 | 06В0007 | Шайба | |
| 6 | 06В0008 | Шайба | |
| 7 | 12U0065 | Cover plate | |
| 8 | 81U0014 | Washer | |
| 9 | 41Х0017 | Bar | |
| 10 | 41X0018 | Bar | |
| 11 | 17W0004 | Rear cover plate | |
| 12 | 17W0003 | Cover plate | |
| 13 | 11U0127 | Cover plate | |
| 14 | 00D1796 | Rib | |
| 15 | 17W0002 | Cover plate | |
| 16 | 36D0371 | Cover plate | |
| 17 | 11А2305 | Cover plate | |
| 18 | 72U0018 | Bob-Weight I | |
| 19 | 11А2301 | Plate | |
| 20 | 72U0019 | Bob-Weight II | |
| 21 | 11U0125 | Plate | |
| 22 | 13U0302 | Cover plate | |
| 23 | 17W0005 | Cover plate | |
| 24 | 11В0075 | Bolt | |
| 25 | 06В0006 | Шайба | |
| 26 | 21А2559 | Nip | |
| 27 | 00В0020 | Болт | |
| 28 | 03V0532 | O-ring | |
| 29 | 06В0054 | Шайба | |
| 30 | 36D0322 | Cover plate | |
| 31 | 60U0020 | Pin | |
| 32 | 08В0041 | Pin | |
| 33 | 10А2096 | Cover plate | |
| 34 | 17W0006 | Cover plate | |
| 35 | 11U0124 | Plate | |
| 36 | 53U0049 | Cover | |
| 37 | 80U0002 | Washer | |
| 38 | 04X0046 | Diesel tank | |
| 39 | 16W0008 | Cover Asm | |
| 40 | 12V0441 | O Ring | |
| 41 | 00В0085 | Болт | |
| 42 | 06В0005 | Шайба | |
| 43 | 04U0006 | Cover plate | |
| 44 | 12В0246 | Кольцо круглого сечения | |
| 45 | 36X0002 | Flange Cover | |
| 46 | 11U0120 | Cover plate | |
| 47 | 72U0020 | Bob-Weight III | |
| 48 | 72U0021 | Bob-Weight IV | |
| 49 | 48С0435 | Cover plate |
Содержащиеся в справочниках-каталогах запасные части и детали не предлагаются к продаже, а носят исключительно информационный характер