Каталог запасных частей к технике: JCB VM-200D/PD. Редуктор
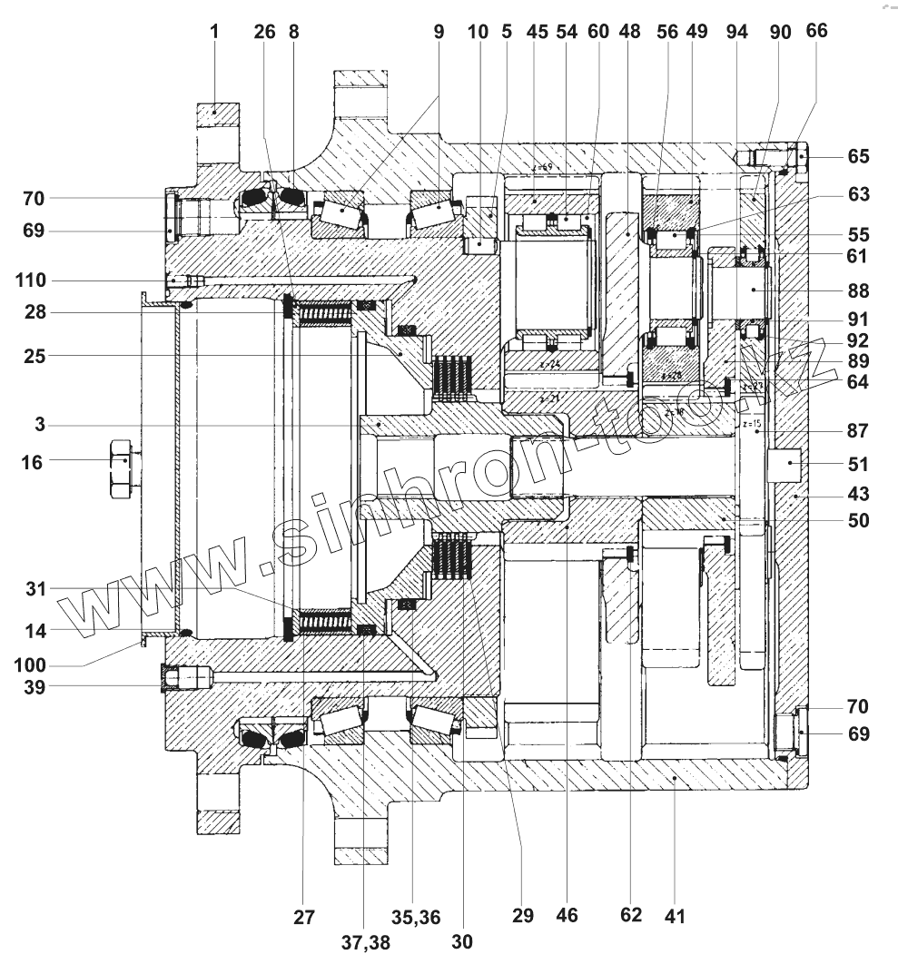
1
3
5
8
9
10
14
16
25
26
27
28
29
30
31
35
36
37
38
39
41
43
45
46
48
49
50
51
51
55
56
60
61
62
63
64
65
66
69
69
70
70
87
88
89
90
91
92
94
100
110
| Позиция на иллюстрации | Заводской номер детали | Название детали | |
|---|---|---|---|
| 1 | 07262/20310 | Spindle | |
| 3 | 07262/20315 | Driver | |
| 5 | 07262/20316 | Shaft nut | |
| 8 | 07262/20317 | Axial face seal | |
| 9 | 07262/20318 | Roller bearing | |
| 10 | 07260/10316 | Parallel pin | |
| 14 | 02772/15041 | O-ring 150x4 | |
| 16 | 02021/16035 | Hexagon screw M16x35 DIN933 | |
| 25 | 07262/20320 | Piston | |
| 26 | 07262/20321 | Disc | |
| 27 | 07262/20322 | Intermediate ring | |
| 28 | 02304/00160 | Retaining ring 160x4 | |
| 29 | 07210/10356 | External lamella | |
| 30 | 07260/10321 | Internal lamella | |
| 31 | 07262/20326 | Compression spring | |
| 35 | 07210/10345 | Back-up ring | |
| 36 | 07210/10346 | Quad ring | |
| 37 | 07210/10348 | Quad ring | |
| 38 | 07210/10347 | Back-up ring | |
| 39 | 07260/10329 | Plug | |
| 41 | 07262/20330 | Ring gear | |
| 43 | 07262/20331 | Cover | |
| 45 | 07260/10333 | Planet gear | |
| 46 | 07262/20332 | Sun gear | |
| 48 | 07262/20333 | Planet carrier | |
| 49 | 07262/20334 | Planet gear | |
| 50 | 07262/20335 | Sun gear | |
| 51 | 07260/10339 | Cylindrical roller bearing | |
| 51 | 07262/20340 | Cylinder roller | |
| 55 | 07260/10340 | Cylindrical roller bearing | |
| 56 | 07260/10341 | Locating ring | |
| 60 | 02305/00045 | Retaining ring 45x1,75 DIN471 | |
| 61 | 02305/00030 | Retaining ring 30x1,5 DIN471 | |
| 62 | 02305/00080 | Retaining ring 80x2,5 DIN471 | |
| 63 | 02304/00055 | Retaining ring 55x2 DIN472 | |
| 64 | 02305/00070 | Retaining ring 70x2,5 DIN471 | |
| 65 | 02021/08020 | Hexagon screw M8x20 DIN933 | |
| 66 | 07262/20342 | O-ring 270x3 | |
| 69 | 02506/01815 | Screw plug M18x1,5 DIN908 | |
| 70 | 02766/01823 | Seal ring 18x22x1,5 DIN7603 | |
| 87 | 07262/20345 | Sun gear shaft | |
| 88 | 07262/20346 | Bolt | |
| 89 | 07262/20347 | Planet carrier | |
| 90 | 07262/20348 | Planet gear | |
| 91 | 07262/20349 | Cylindrical roller bearing | |
| 92 | 02305/00025 | Retaining ring 25x1,2 DIN471 | |
| 94 | 07262/20351 | Locating ring | |
| 100 | 07262/20352 | Plug | |
| 110 | 07262/20353 | Headless screw | |
| 07262/20305 | 07262/20305 | Gear |
Содержащиеся в справочниках-каталогах запасные части и детали не предлагаются к продаже, а носят исключительно информационный характер