Каталог запасных частей к технике: JCB VM-132D/PD. Редуктор/Gear
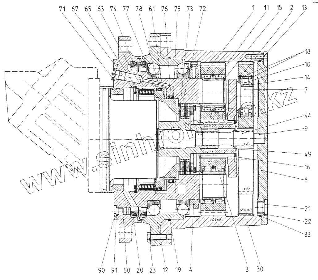
1
2
3
4
7
8
9
10
11
12
13
14
15
16
18
19
20
21
22
23
30
33
44
49
60
61
63
65
67
71
72
73
74
75
76
77
78
90
91
| Позиция на иллюстрации | Заводской номер детали | Название детали | |
|---|---|---|---|
| 1 | 07210/10320 | Planet gear | |
| 2 | 07210/10350 | Planet gear | |
| 3 | 07210/10321 | Sun gear | |
| 4 | 07210/10351 | Shaft nut | |
| 7 | 07210/10335 | Planet carrier | |
| 8 | 07210/10322 | Cover | |
| 9 | 07210/10323 | Cylinder roller | |
| 10 | 07210/10336 | Cylindrical roller bearing | |
| 11 | 07210/10324 | Cylindrical roller bearing | |
| 12 | 07210/10352 | Ball bearing | |
| 13 | 02022/08020 | Hexagon screw M8x20 DIN933 | |
| 14 | 07210/10337 | Retaining ring 30x2 DIN471 | |
| 15 | 02305/00040 | Retaining ring 40x1,75 DIN471 | |
| 16 | 02305/00050 | Retaining ring | |
| 18 | 02304/00062 | Retaining ring | |
| 19 | 02772/25030 | O-ring 250x3 | |
| 20 | 07210/10353 | Axial face seal | |
| 21 | 02506/01815 | Screw plug M18x1,5 DIN908 | |
| 22 | 02766/01823 | Seal ring 18x22x1,5 DIN7603 | |
| 23 | 02021/08025 | Hexagon screw M8x25 DIN933 | |
| 30 | 07210/10325 | Ring gear | |
| 33 | 07210/10326 | O-ring 235x3 | |
| 44 | 07210/10338 | Sun gear shaft | |
| 49 | 07210/10339 | Drum flange | |
| 60 | 07210/10354 | Spindle | |
| 61 | 07210/10340 | Piston | |
| 63 | 07210/10341 | Intermediate ring | |
| 65 | 07210/10343 | Disc | |
| 67 | 02304/00160 | Retaining ring 160x4 | |
| 71 | 07210/10355 | Plug | |
| 72 | 07260/10321 | Internal lamella | |
| 73 | 07260/10356 | External lamella | |
| 74 | 07210/10344 | Compression spring | |
| 75 | 07210/10345 | Back-up ring | |
| 76 | 07210/10346 | Quad ring | |
| 77 | 07210/10347 | Back-up ring | |
| 78 | 07210/10348 | Quad ring | |
| 90 | 02506/01216 | Screw plug M12x1,5 | |
| 91 | 02766/01215 | Seal ring A12x15,5 DIN7603 | |
| 07210/10300 | 07210/10300 | Gear |
Содержащиеся в справочниках-каталогах запасные части и детали не предлагаются к продаже, а носят исключительно информационный характер