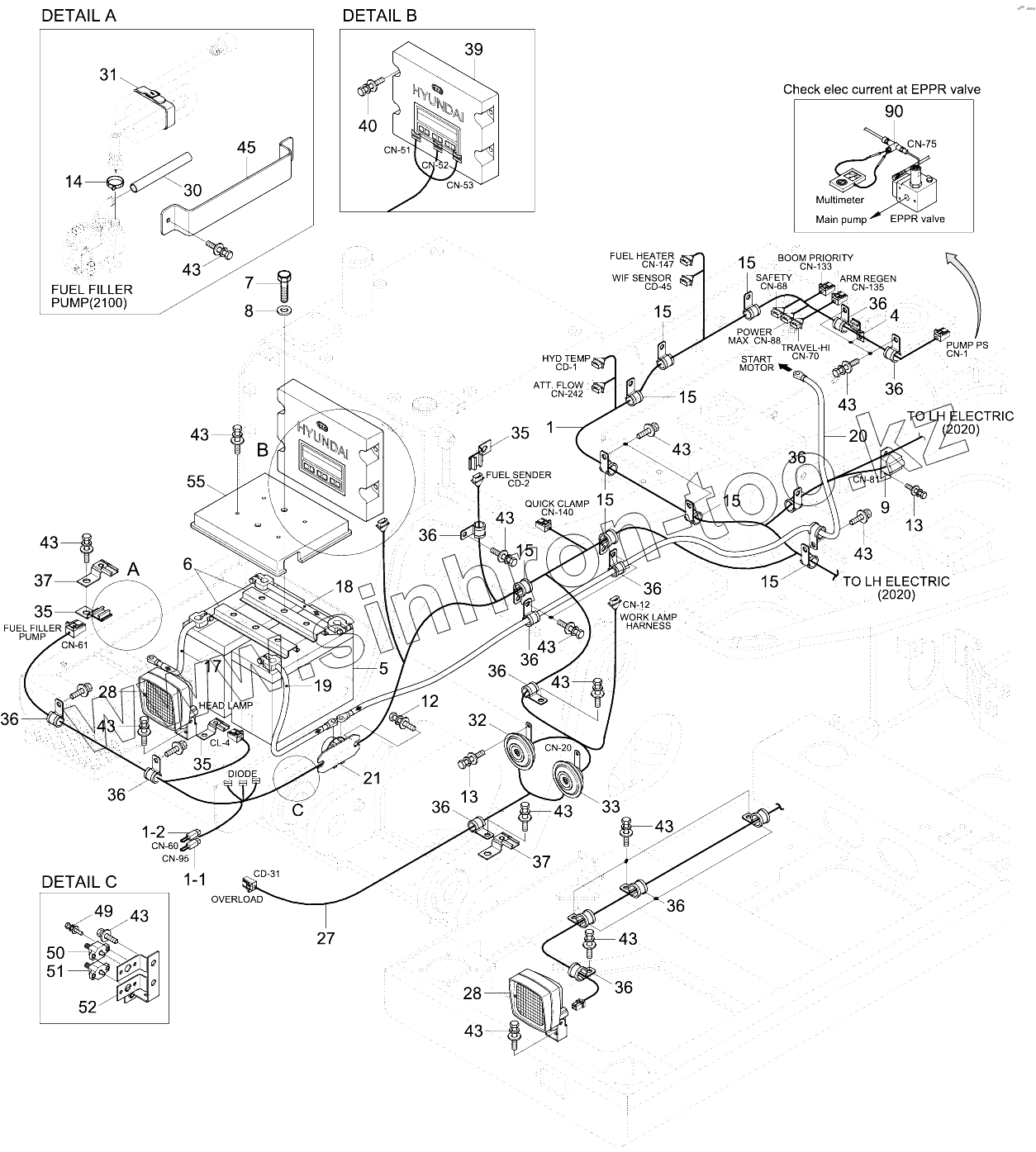
Каталог запасных частей к технике: Hyundai R210NLC-9. RH ELECTRIC
1-1
1-2
1
4
5
6
7
8
9
12
13
13
14
15
15
15
15
15
15
15
17
18
19
20
21
27
28
28
30
31
32
33
35
35
35
36
36
36
36
36
36
36
36
36
36
36
36
37
37
39
40
43
43
43
43
43
43
43
43
43
43
43
43
43
43
43
45
49
50
51
52
55
90
| Позиция на иллюстрации | Заводской номер детали | Название детали | |
|---|---|---|---|
| 1-1 | 21EA-50550 | Diode | |
| 1-2 | 21EA-50570 | DIODE-FE3D | |
| 21Q6-11003 | 21Q6-11003 | Harness-Frame | |
| 21Q6-11004 | 21Q6-11004 | Harness-Frame | |
| 21Q6-11005 | 21Q6-11005 | Harness-Frame | |
| 21N6-21200 | 21N6-21200 | CABLE | |
| 21QA-70010 | 21QA-70010 | RELAY-BATTERY | |
| 23Q6-21610 | 23Q6-21610 | Hose-Outlet | |
| 21N5-10051 | 21N5-10051 | HORN-LOW | |
| 21N5-10061 | 21N5-10061 | HORN-HIGH | |
| 21Q6-32171 | 21Q6-32171 | Mcu | |
| 21M9-01171 | 21M9-01171 | Circuit-Breaker | |
| 21Q4-01161 | 21Q4-01161 | CIRCUIT-BREAKER,30A | |
| 1 | 21Q6-11002 | Harness-Frame | |
| 1-3 | 21NB-10710 | Resistor | |
| 4 | 21N4-01130 | PLATE-CLIP | |
| 5 | 21E6-20270 | Battery | |
| 6 | 21Q4-60400 | Bar-Battery | |
| 7 | S017-102656 | Bolt-Hex | |
| 8 | S403-10500B | WASHER-PLAIN | |
| 9 | 21N4-46800 | BUZZER-BACK | |
| 12 | S035-083026 | BOLT-W/WASHER | |
| 13 | S035-081526 | BOLT-W/WASHER | |
| 14 | S520-032000 | CLAMP-HOSE | |
| 15 | 31L7-10200 | CLAMP-TUBE | |
| 17 | 21EC-40320 | Cable | |
| 18 | 21N4-01400 | Cable | |
| 19 | 21Q6-20520 | Cable | |
| 20 | 21EA-60611 | Cable | |
| 21 | 21E5-0003 | Relay-Battery | |
| 27 | 21Q6-11150 | Harness-Overload | |
| 28 | 21QB-60700 | WORK LAMP ASSY | |
| 28-1 | S866-240650 | BULB | |
| 30 | 21Q6-21610 | Hose-Outlet | |
| 31 | E127-3158 | BAND-FUEL PUMP | |
| 32 | 21Q8-10050 | Horn-Low | |
| 33 | 21Q8-10060 | Horn-High | |
| 35 | 25D1-10640 | CLIP ASSY | |
| 36 | 31L7-10190 | CLAMP-TUBE | |
| 37 | 25D1-10650 | CLIP ASSY | |
| 39 | 21Q6-32170 | Mcu | |
| 40 | S035-082526 | BOLT-W/WASHER | |
| 43 | S037-101526 | BOLT-W/WASHER | |
| 45 | 21QB-20080 | PLATE-CLAMP | |
| 47 | S037-102026 | BOLT-W/WASHER | |
| 49 | S141-040206 | Screw-Flat Hd | |
| 50 | 21M9-01170 | Circuit-Breaker, 60a | |
| 51 | 21Q4-01160 | Circuit-Breaker, 30a | |
| 52 | 21Q6-14100 | Plate | |
| 55 | 21Q6-60301 | Cover Assy-Battery | |
| 90 | 21Q6-50410 | Adapter |
Содержащиеся в справочниках-каталогах запасные части и детали не предлагаются к продаже, а носят исключительно информационный характер