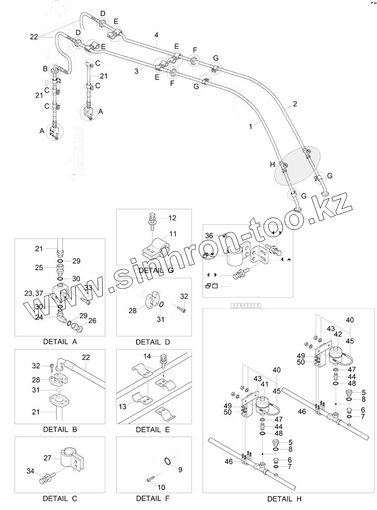
Каталог запасных частей к технике: Hyundai R180LC-9S. ATTACH PIPING KIT (S & D/ACTING)
1
2
3
4
5
5
6
6
7
7
8
8
9
10
11
12
13
14
21
21
21
21
22
22
23
24
25
26
27
28
28
29
29
30
30
31
31
32
32
33
34
35
36
40
40
41
42
43
43
44
44
45
45
46
46
47
47
48
48
49
49
50
50
| Позиция на иллюстрации | Заводской номер детали | Название детали | |
|---|---|---|---|
| 31Q5-90420 | 31Q5-90420 | Arm Piping Kit | |
| 31Q5-90320 | 31Q5-90320 | Boom Piping Kit | |
| 31Q5-90410 | 31Q5-90410 | Arm Piping Kit | |
| 31Q5-90310 | 31Q5-90310 | Boom Piping Kit | |
| P705-166334 | P705-166334 | Hose Assy-Flg 0x90 | |
| 31Q5-91630 | 31Q5-91630 | Pipe Assy | |
| 31Q5-91620 | 31Q5-91620 | Pipe Assy | |
| 31Q5-90430 | 31Q5-90430 | Arm Piping Kit | |
| P705-166332 | P705-166332 | Hose Assy-Flg 0x90 | |
| 1 | 31Q5-91510 | Pipe Assy | |
| 2 | 31Q5-91520 | Pipe Assy | |
| 3 | 31Q5-91530 | Pipe Assy | |
| 4 | 31Q5-91540 | Pipe Assy | |
| 5 | P220-110205 | PLUG-HEX | |
| 6 | 31EK-11130 | COUPLING-SCREW | |
| 7 | S631-011004 | O-RING | |
| 8 | S631-024004 | O-RING | |
| 9 | Y171-024004 | O-RING | |
| 10 | S109-100406 | BOLT-SOCKET | |
| 11 | 31E7-01711 | CLAMP ASSY | |
| 12 | S037-123526 | BOLT-W/WASHER | |
| 13 | 31Q4-50220 | Clamp Assy-Pipe | |
| 14 | S037-123526 | BOLT-W/WASHER | |
| 21 | 31Q5-91610 | Pipe Assy | |
| 22 | P705-166338 | Hose Assy-Flg 0x90 | |
| 23 | 31Q6-91551 | Valve-Stop | |
| 24 | P030-110005 | Elbow-45 | |
| 25 | 31Q6-91560 | Adapter | |
| 26 | P290-100106 | Cap | |
| 27 | 31E7-01711 | CLAMP ASSY | |
| 28 | P173-160104 | FLANGE-HYD,SPLIT | |
| 29 | S631-029004 | O-RING | |
| 30 | S621-021001 | O-RING | |
| 31 | Y171-024004 | O-RING | |
| 32 | S109-100406 | BOLT-SOCKET | |
| 33 | S109-120706 | BOLT-SOCKET | |
| 34 | S037-123526 | BOLT-W/WASHER | |
| 35 | S207-12100B | Nut-Hex | |
| 36 | 31Q6-91500 | Bracket | |
| 40 | 31Q5-90500 | Accumulator Kit | |
| 41 | 31Q8-91670 | ACCUMULATOR | |
| 42 | 31Q8-91680 | ACCUMULATOR | |
| 43 | 32E6-92080 | BRACKET-ACCUM | |
| 44 | 31Q8-91690 | CONNECTOR | |
| 45 | 32E6-92060 | U-BOLT | |
| 46 | S071-033430 | U-Bolt | |
| 47 | 31Q8-91700 | SEAL | |
| 48 | S631-024004 | O-RING | |
| 49 | S205-10100B | NUT-HEX | |
| 50 | S403-10200B | WASHER-PLAIN |
Содержащиеся в справочниках-каталогах запасные части и детали не предлагаются к продаже, а носят исключительно информационный характер