Вернуться на главную
Поиск
Каталоги запчастей к технике
Спецтехника
ЭКСМАШ
E230W
Гидроуправление на поворотной платформе
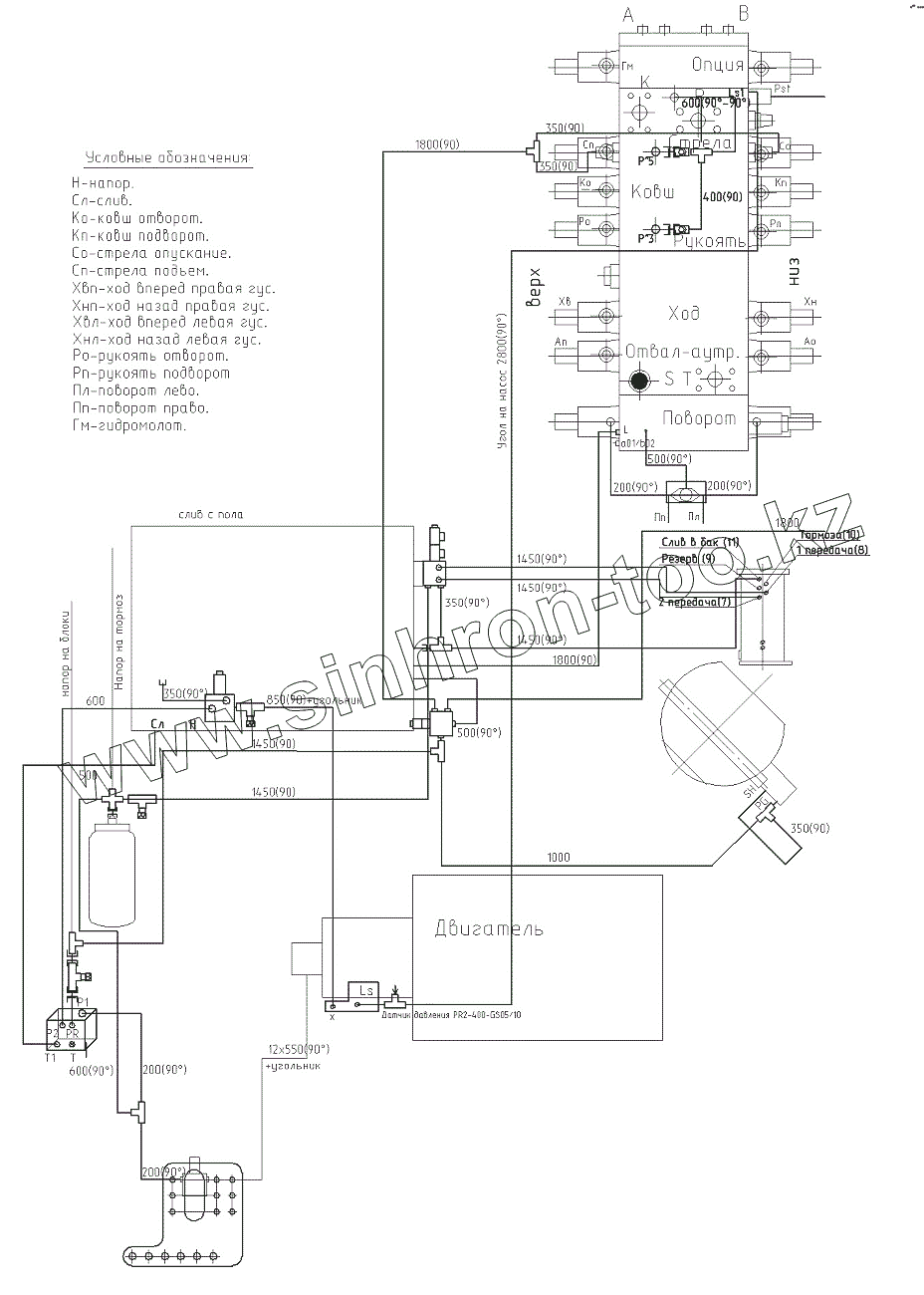
Каталог запасных частей к технике: ЭКСМАШ E230W. Гидроуправление на поворотной платформе
zoom-in
zoom-out
enlarge
shrink
circle-right
circle-left
file-text2
info
cart
Тип техники
Не выбрано
Легковые автомобили
Грузовые автомобили и прицепы
Автобусы
Сельхозтехника
Спецтехника
Двигатели
Мототехника
Марка
Не выбрано
Ammann
BOMAG
CARMIX
CASE IH
Changlin
ChengGong
Dimex
Doosan
DYNAPAC
Foton
HAMM
Hidromek
Hitachi
Hyundai
JCB
JLG
John Deere
Komatsu
LIEBHERR
LiuGong
Lonking (LongGong)
Luneng
MANITOU
Mitsuber
New Holland
PENGPU
RM-Terex
SANY
SDLG
SEM
Shantui
Shehwa HBXG
Soosan
TIGARBO
VOGELE
Volvo
WAY
WIRTGEN
XCMG
XGMA
Xiamen
YTO
Yuchai
Zoomlion
Автокран
АЗСМ
Алтайлесмаш
Амкодор
АОМЗ
Атек
АТЗ
Балканкар Рекорд
БелАЗ
Беловеж
Борекс
Брянский Арсенал
Булат
ВЭКС
ГАЗ
Геомаш
Гидромаш
Донекс
Дормаш
Дормашина
Дорэлектромаш
ДЭЗ
ЕлАЗ
ЗЗГТ
Ижнефтемаш
Канаш-электрокар
КЗКТ
ККЗ
Клевер
Клинцовский автокрановый завод
КМЗ
КМЗ 1 Мая
Ковровец
Коммаш
Кранэкс
КЭЗ
КЭМЗ
ЛЗА
МАЗ
МЗИК
МЗКМ
МЗКТ
Михневский РМЗ
МоАЗ
Мозырский МЗ
МТЗ
ОЗП
Онежец
ПАО "ТЗА"
ППС Детва
Промтрактор
ПТЗ
Раскат
СпецАгрегат
ТВЭКС
ТТМ
УВЗ
Угличмаш
УЗТМ
ХТЗ
ЧЗКМ
ЧСДМ
ЧТЗ
ЭКСКО
ЭКСМАШ
ЮрМаш
Модель
Не выбрано
E130W (2008)
E140W (2015)
E140W-51-03 (2015)
E160W (2008)
E170W (2015)
E170W (2017)
E180R (2008)
E190WH (2017)
E195A (2016)
E195A (2016.2)
E200C (2016)
E200W (2016)
E220C (2021)
E230W (2017)
E230WH (2017)
E240C (2016)
E280WH (2017)
E300C (2016)
E330С (2015)
E350WH (2017)
E400C (2015)
M300 (2016)
TLH 3507-11 (2017)
TLH 3507-12 (2017)
TLH 3510-11 (2017)
TLH 3510-12 (2017)
TLH 4007-11 (2017)
TLH 4007-12 (2017)
ЭОВ-3523 (2016)
Схема
>
Не выбрано
Экскаватор пневмоколесный
Установка поддонов
Платформа поворотная с механизмами
Установка кабины
Кабина
Дверь в сборе
Установка облицовки
Установка стекол
Установка силовая
Установка глушителя
Установка насоса
Установка блока радиаторов
Установка воздухоочистителя
Установка топливопроводов
Установка бака топливного
Установка капотной системы
Установка замков
Установка противовеса
Гидрооборудование на поворотной платформе
Бак гидравлический
Гидрооборудование силовой установки
Сборка распределителя
Гидроуправление в кабине экскаватора
Трубопроводы на поворотной платформе
Трубопроводы на поворотной платформе
Трубопроводы на поворотной платформе
Гидроуправление на поворотной платформе
Трубопроводы блока радиаторов
Установка механизма поворота
Установка управления экскаватором
Установка пульта правого
Установка пульта левого
Установка рулевой колонки
Установка кондиционера
Ход пневмоколесный
Опора откидная в сборе
Установка кожуха защитного
Установка системы смазки
Установка втулок гидроцилиндра опоры откидной
Установка отвала
Установка втулок гидроцилиндра отвала
Установка крыльев
Рабочее оборудование
Рабочее оборудование
Стрела в сборе
Установка втулок и манжет в стрелу
Гидрооборудование стрелы
Гидроцилиндр стрелы левый в сборе
Гидроцилиндр стрелы правый в сборе
Трубопроводы стрелы в сборе с гидроцилиндром
Гидроцилиндр рукояти в сборе с трубопроводами
Трубопроводы гидромолота на рабочем оборудовании
Рукоять в сборе с ковшевым механизмом
Тяга в сборе
Установка втулок и манжет в рукоять
Гидрооборудование сменных видов
Электрооборудование в сборе
Электрооборудование стрелы
Электрооборудование поворотной платформы
Электрооборудование кабины
Электрооборудование управления
Электрооборудование капота
Позиция на иллюстрации
Заводской номер детали
Название детали
02080000664
02080000664
РВД
26950009070
26950009070
Измерительная муфта
02080000633
02080000633
РВД
02080000645
02080000645
РВД
26950000999
26950000999
РВД
02080000656
02080000656
РВД
02080000661
02080000661
РВД
02080000658
02080000658
РВД
26950006931
26950006931
РВД
26950012278
26950012278
Адаптер
02080000628
02080000628
РВД
02080000631
02080000631
РВД
26950002827
26950002827
РВД
26950008352
26950008352
РВД
26950012329
26950012329
РВД
26950019143
26950019143
РВД
240-00-42.20.002
240-00-42.20.002
Кронштейн гидроклапана
26950013995
26950013995
Адаптер
240-00-42.20.220
240-00-42.20.220
Клапан в сборе
210-00-42.20.200
210-00-42.20.200
Пневмогидроаккумулятор в сборе
130-00-42.20.260
130-00-42.20.260
Гидроклапан давления в сборе
130-00-42.20.270
130-00-42.20.270
Пневмогидроаккумулятор в сборе
280-00-42.20.280
280-00-42.20.280
Гидрораспределитель управления КПП ZF
145-00-42.20.005
145-00-42.20.005
Переходник
26950018704
26950018704
Датчик давления
26950016579
26950016579
Клапан
240-00-42.20.240
240-00-42.20.240
Гидрораспределитель управления в сборе
26950005773
26950005773
Адаптер
02100000759
02100000759
Адаптер
02100000771
02100000771
Адаптер
26950009272
26950009272
Адаптер
26950005497
26950005497
Адаптер
26950000808
26950000808
Адаптер
02100000757
02100000757
Адаптер
Содержащиеся в справочниках-каталогах запасные части и детали не предлагаются к продаже, а носят исключительно информационный характер
Дополнительная информация
×
Название:
Номер:
Примечание: