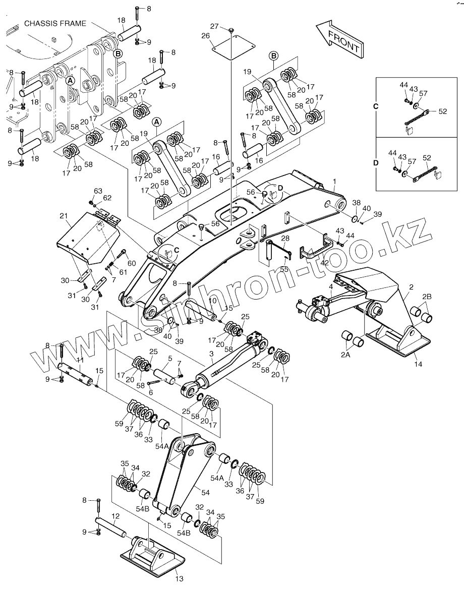
Каталог запасных частей к технике: Doosan DX140W. REAR OUTRIGGER (5001 ~ 7632)
626-00050J
101554-00002
1
1
2
2A
2B
3
3
4
4
5
5
6
7
7
8
8
8
8
8
8
8
8
8
9
9
9
9
9
9
9
9
9
10
10
11
11
12
12
13
14
15
15
15
16
16
16
16
17
17
17
17
17
17
17
17
17
17
17
17
17
17
17
17
18
18
18
18
18
18
18
18
18
18
18
18
19
19
20
20
20
20
20
20
20
20
20
20
20
20
20
20
20
20
21
25
25
25
25
26
27
28
30
30
31
31
32
32
33
33
34
34
35
35
36
36
37
37
38
38
39
39
40
40
42
43
43
43
44
44
44
52
52
54
54A
54A
54B
54B
55
56
56
57
57
58
58
58
58
58
58
58
58
58
58
58
58
58
58
58
58
59
59
60
61
62
63
| Позиция на иллюстрации | Заводской номер детали | Название детали | |
|---|---|---|---|
| 626-00050J | 626-00050J | OUTRIGGER ASSY | |
| 101554-00002 | 101554-00002 | OUTRIGGER ASSY | |
| 1 | 626-00048G | FRAME, OUTRIGGER | |
| 1 | 626-00048H | FRAME, OUTRIGGER | |
| 2 | 626-00049G | LEG, OUTRIGGER | |
| 2A | 110-00267 | BUSH | |
| 2B | 110-00268 | BUSH | |
| 3 | 440-00450B | CYLINDER, OUTRIGGER | |
| 3 | 440-00450C | CYLINDER, OUTRIGGER | |
| 4 | 440-00451B | CYLINDER, OUTRIGGER | |
| 4 | 440-00451C | CYLINDER, OUTRIGGER | |
| 5 | K1009205 | PIN | |
| 5 | 120501-00896A | PIN | |
| 6 | S0562366 | BOLT | |
| 7 | S4012733 | NUT M12 | |
| 8 | S0566666 | BOLT M16X2.0X120 | |
| 9 | S4012933 | NUT | |
| 10 | K1009208 | PIN | |
| 10 | 120501-01000 | PIN | |
| 11 | K1018258 | PIN | |
| 11 | 120501-01001 | PIN | |
| 12 | K1009207 | PIN | |
| 12 | 120501-01002 | PIN | |
| 13 | 195-02712B | FOOT, STABILIZER | |
| 14 | 195-02713B | FOOT, STABILIZER | |
| 15 | S6710043 | NIPPLE;GREASE(PT1/8) | |
| 16 | 2123-2312A | Pin | |
| 16 | 120501-01003 | PIN | |
| 17 | DS7752040 | SHIM | |
| 18 | 2123-1833B | Pin | |
| 18 | 2123-1833C | PIN | |
| 18 | 120501-01004 | PIN | |
| 19 | 155-00060A | LINK | |
| 20 | DS7752041 | SHIM | |
| 21 | K1028433 | COVER | |
| 25 | 2180-1106BD9 | SEAL, DUST | |
| 26 | 621-02830C | COVER | |
| 27 | DS0025014 | BOLT | |
| 28 | K1000783B | PIN | |
| 30 | K1026710 | STOPPER | |
| 31 | S2209266 | Bolt | |
| 32 | 2180-1106BD1 | SEAL, DUST | |
| 33 | 2180-1106BD3 | SEAL;DUST | |
| 34 | 2114-1058D18 | Washer | |
| 35 | 2114-1058D19 | Washer | |
| 36 | DS7752001 | SHIM | |
| 37 | DS7752002 | SHIM | |
| 38 | 190-00078 | REFLECTOR | |
| 39 | S3450853 | SCREW M5X0.8X16 | |
| 40 | S5102203 | WASHER SPRING M5 | |
| 42 | K1000780B | STEP | |
| 43 | S5102703 | WASHER;SPRING M10 | |
| 44 | S0515066 | Bolt | |
| 52 | K1018780A | CHAIN, OUTRIGGER | |
| 54 | K1018831B | LEG, OUTRIGGER | |
| 54A | 110-00267 | BUSH | |
| 54B | 110-00268 | BUSH | |
| 55 | 2123-1441D4 | PIN | |
| 56 | S0520766 | BOLT | |
| 57 | 4114-4078A | Washer | |
| 58 | DS7752079 | SHIM | |
| 59 | DS7752080 | SHIM | |
| 60 | 161-00465 | Stopper | |
| 61 | 129-00145 | Spring, coil | |
| 62 | S5110603 | WASHER;SPRING | |
| 63 | S2211666 | BOLT |
Содержащиеся в справочниках-каталогах запасные части и детали не предлагаются к продаже, а носят исключительно информационный характер