Каталог запасных частей к технике: Балканкар Рекорд EB-698. Гидравлическая система Н=4500мм, Н=5200мм
1
1
2
2
3
4
5
6
7
8
9
10
11
12
13
14
15
16
17
18
19
20
21
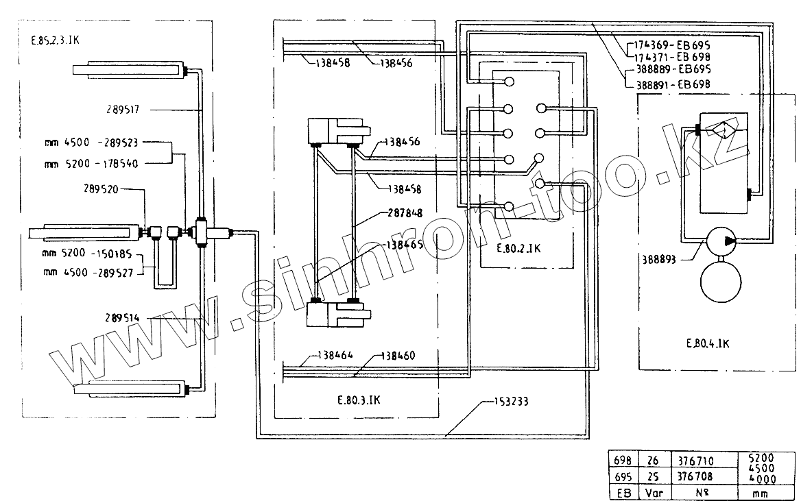
| Позиция на иллюстрации | Заводской номер детали | Название детали | |
|---|---|---|---|
| 1 | [Гибкое соединение 8-Нцх12-Нцх12-500/30 ОН-0451484-83] | Гибкое соединение 8-Нцх12-Нцх12-500/30 ОН-0451484-83 | |
| 2 | [Гибкое соединение 8-Нцх12-Нцх12-530/30 ОН-0451484-83] | Гибкое соединение 8-Нцх12-Нцх12-530/30 ОН-0451484-83 | |
| 3 | [Гибкое соединение 8-Нцх12-Нцх12-1270/30 ОН-0451484-83] | Гибкое соединение 8-Нцх12-Нцх12-1270/30 ОН-0451484-83 | |
| 4 | [Гибкое соединение 8-Нцх12-Нцх12-1330/30 ОН-0451484-83] | Гибкое соединение 8-Нцх12-Нцх12-1330/30 ОН-0451484-83 | |
| 5 | [Гибкое соединение 8-Нцх12-Нцх12-840/30 ОН-0451484-83] | Гибкое соединение 8-Нцх12-Нцх12-840/30 ОН-0451484-83 | |
| 6 | [Гибкое соединение 10-Щех20-Нцх12-3180/30 ОН-0451484-83] | Гибкое соединение 10-Щех20-Нцх12-3180/30 ОН-0451484-83 | |
| 7 | [Гибкое соединение 10-Нцх12-Нцх12-1320/30 ОН-0451484-83] | Гибкое соединение 10-Нцх12-Нцх12-1320/30 ОН-0451484-83 | |
| 8 | 7019.04.00.00 | Гибкое соединение Б-16-Нцх18-К90°Ех18-1410 | |
| 9 | 7019.04.00.00 | Гибкое соединение Б-16-Нцх18-К90°Ех18-1410 | |
| 10 | 695.45.2.15.00.00.09 | Труба III | |
| 11 | [Гибкое соединение 8-Нцх12-Нцх12-580/30 ОН-0451484-83] | Гибкое соединение 8-Нцх12-Нцх12-580/30 ОН-0451484-83 | |
| 12 | 695.45.2.15.00.00.02 | Левая труба | |
| 13 | 695.45.2.15.00.00.03 | Правая труба | |
| 14 | 695.45.2.15.00.00.04 | Труба I | |
| 15 | 695.45.2.15.00.00.05 | Труба II | |
| 16 | [Гибкое соединение 10-Щех20-Нцх12-2920/30 ОН-0451484-83] | Гибкое соединение 10-Щех20-Нцх12-2920/30 ОН-0451484-83 | |
| 17 | 695.33.42.08.00.00.00-25 | Гидравлическая система | |
| 18 | 695.33.42.08.00.00.00-26 | Гидравлическая система | |
| 19 | [Гибкое соединение 12-Нцх16-К90°Ех16-1600/30 ОН-0451484-83] | Гибкое соединение 12-Нцх16-К90°Ех16-1600/30 ОН-0451484-83 | |
| 20 | [Гибкое соединение 12-Нцх16-К90°Ех16-1710/30 ОН-0451484-83] | Гибкое соединение 12-Нцх16-К90°Ех16-1710/30 ОН-0451484-83 | |
| 21 | 7019.03.00.00 | Гибкое соединение Б-20-Нцх22-Нцх22-400 |
Содержащиеся в справочниках-каталогах запасные части и детали не предлагаются к продаже, а носят исключительно информационный характер