Каталог запасных частей к технике: Балканкар Рекорд EB-695. Гидравлическая система Н=2800мм, Н=3300мм
1
1
2
2
3
4
5
6
7
8
9
10
11
12
13
14
15
16
17
18
19
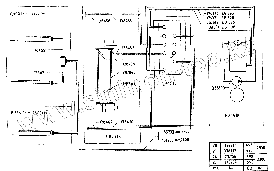
| Позиция на иллюстрации | Заводской номер детали | Название детали | |
|---|---|---|---|
| 1 | [Гибкое соединение 8-Нцх12-Нцх12-500/30 ОН-0451484-83] | Гибкое соединение 8-Нцх12-Нцх12-500/30 ОН-0451484-83 | |
| 2 | [Гибкое соединение 8-Нцх12-Нцх12-500/30 ОН-0451484-83] | Гибкое соединение 8-Нцх12-Нцх12-500/30 ОН-0451484-83 | |
| 3 | [Гибкое соединение 8-Нцх12-Нцх12-1270/30 ОН-0451484-83] | Гибкое соединение 8-Нцх12-Нцх12-1270/30 ОН-0451484-83 | |
| 4 | [Гибкое соединение 8-Нцх12-Нцх12-1330/30 ОН-0451484-83] | Гибкое соединение 8-Нцх12-Нцх12-1330/30 ОН-0451484-83 | |
| 5 | [Гибкое соединение 8-Нцх12-Нцх12-840/30 ОН-0451484-83] | Гибкое соединение 8-Нцх12-Нцх12-840/30 ОН-0451484-83 | |
| 6 | [Гибкое соединение 10-Нцх12-Нцх12-1320/30 ОН-0451484-83] | Гибкое соединение 10-Нцх12-Нцх12-1320/30 ОН-0451484-83 | |
| 7 | [Гибкое соединение10-Нцх12-Нцх12-1420/30 ОН-0451484-83] | Гибкое соединение10-Нцх12-Нцх12-1420/30 ОН-0451484-83 | |
| 8 | 7019.04.00.00 | Гибкое соединение Б-16-Нцх18-К90°Ех18-1410 | |
| 9 | 7019.04.00.00 | Гибкое соединение Б-16-Нцх18-К90°Ех18-1410 | |
| 10 | 695.33.2.15.00.00.06 | Левая труба | |
| 11 | 695.33.2.15.00.00.07 | Правая труба | |
| 12 | [Гибкое соединение 8-Нцх12-Нцх12-580 ОН-0451484-83] | Гибкое соединение 8-Нцх12-Нцх12-580 ОН-0451484-83 | |
| 13 | 695.33.42.08.00.00.00-23 | Гидравлическая система | |
| 14 | 695.33.42.08.00.00.00-24 | Гидравлическая система | |
| 15 | 695.33.42.08.00.00.00-27 | Гидравлическая система | |
| 16 | 695.33.42.08.00.00.00-28 | Гидравлическая система | |
| 17 | [Гибкое соединение 12-Нцх16-К90°Ех16-1600/30 ОН-0451484-81] | Гибкое соединение 12-Нцх16-К90°Ех16-1600/30 ОН-0451484-81 | |
| 18 | [Гибкое соединение 12-Нцх16-К90°Ех16-1710/30 ОН-0451484-81] | Гибкое соединение 12-Нцх16-К90°Ех16-1710/30 ОН-0451484-81 | |
| 19 | 7019.03.00.00 | Гибкое соединение Б-20-Нцх22-Нцх22-400 |
Содержащиеся в справочниках-каталогах запасные части и детали не предлагаются к продаже, а носят исключительно информационный характер