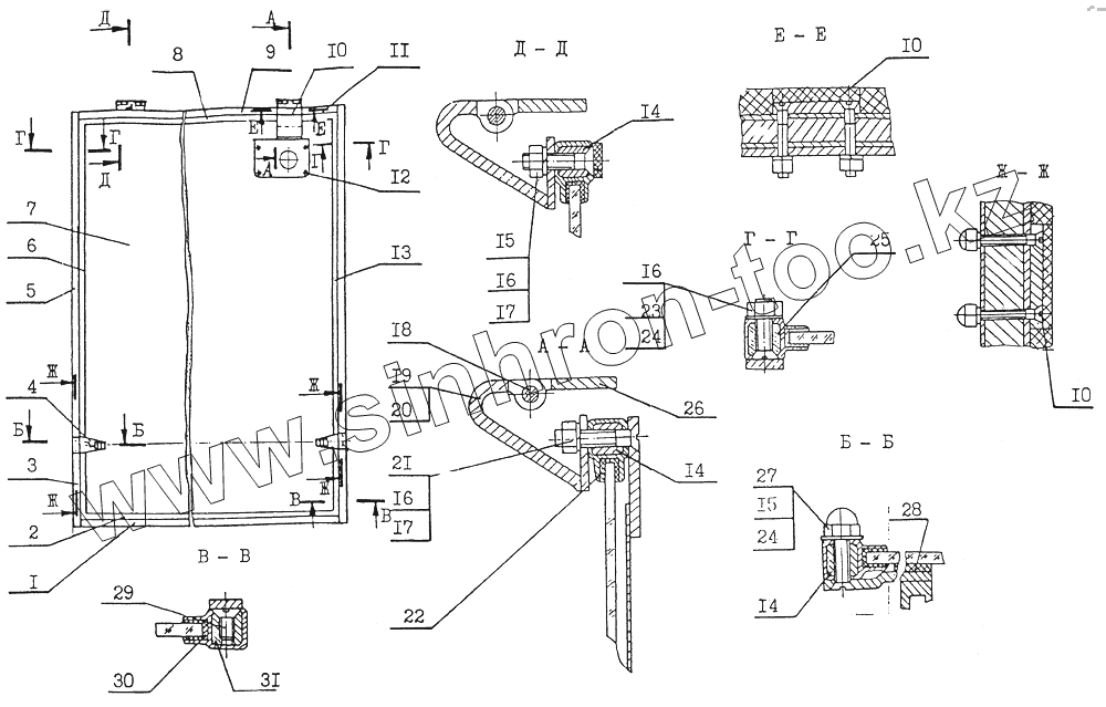
Каталог запасных частей к технике: Атек-761. 45.1526.000 Стекло ветровое
45.1526.000
1
2
3
4
5
6
7
8
9
10
10
10
11
12
13
14
14
14
15
15
16
16
16
17
17
18
19
20
21
22
23
24
24
25
26
27
28
29
30
31
| Позиция на иллюстрации | Заводской номер детали | Название детали | |
|---|---|---|---|
| 45.1526.000 | 45.1526.000 | Стекло ветровое | |
| 1 | 10.1526.007 | Прокладка | |
| 2 | 10.1526.001 | Планка | |
| 3 | 10.1526.007-01 | Прокладка | |
| 4 | 45.1526.100 | Кронштейн | |
| 5 | 10.1526.007-02 | Прокладка | |
| 6 | 45.1526.001 | Планка | |
| 7 | 10.1504.003 | Стекло | |
| 8 | 10.1526.002 | Планка | |
| 9 | 10.1526.007-04 | Прокладка | |
| 10 | 10.8526.007-05 | Прокладка | |
| 11 | 10.1526.007-03 | Прокладка | |
| 12 | 10.1526.300 | Плита | |
| 13 | 45.1526.001-01 | Планка | |
| 14 | 10.1526.006 | Вкладыш | |
| 15 | 17475.8.35 | Винт | |
| 16 | 5915.8 | Гайка | |
| 17 | 6402.8 | Шайба | |
| 18 | 10.1500.007 | Ось | |
| 19 | 10.1508.000 | Петля | |
| 20 | 10.1520.500 | Петля | |
| 21 | 17474.8.40 | Винт | |
| 22 | 10.1526.009 | Уплотнитель | |
| 23 | 17475.8.30 | Винт | |
| 24 | 11371.8 | Шайба | |
| 25 | 10.1526.004 | Угольник | |
| 26 | 10.1500.006 | Петля верхняя | |
| 27 | 10.1500.054 | Гайка | |
| 28 | 10.1526.008 | Прокладка | |
| 29 | 17475.8.16 | Винт | |
| 30 | 10.1526.009-01 | Уплотнитель | |
| 31 | 10.1526.004-01 | Угольник |
Содержащиеся в справочниках-каталогах запасные части и детали не предлагаются к продаже, а носят исключительно информационный характер