Каталог запасных частей к технике: Амкодор-371. Электросистема подкабиника 371.78.91.000
3
3
3
3
7
10
12
12
13
21
22
23
23
23
23
23
25
27
28
28
28
30
30
30
30
30
32
33
37
37
37
37
37
38
40
41
42
42
43
44
44
44
45
46
46
46
46
47
48
48
49
49
50
50
50
52
52
52
52
52
53
53
53
53
53
53
53
53
53
53
56
57
60
60
61
62
63
64
65
67
68
68
68
68
68
68
68
69
71
73
73
75
77
78
78
80
81
83
84
86
87
89
91
92
93
93
93
93
94
95
96
97
100
100
103
104
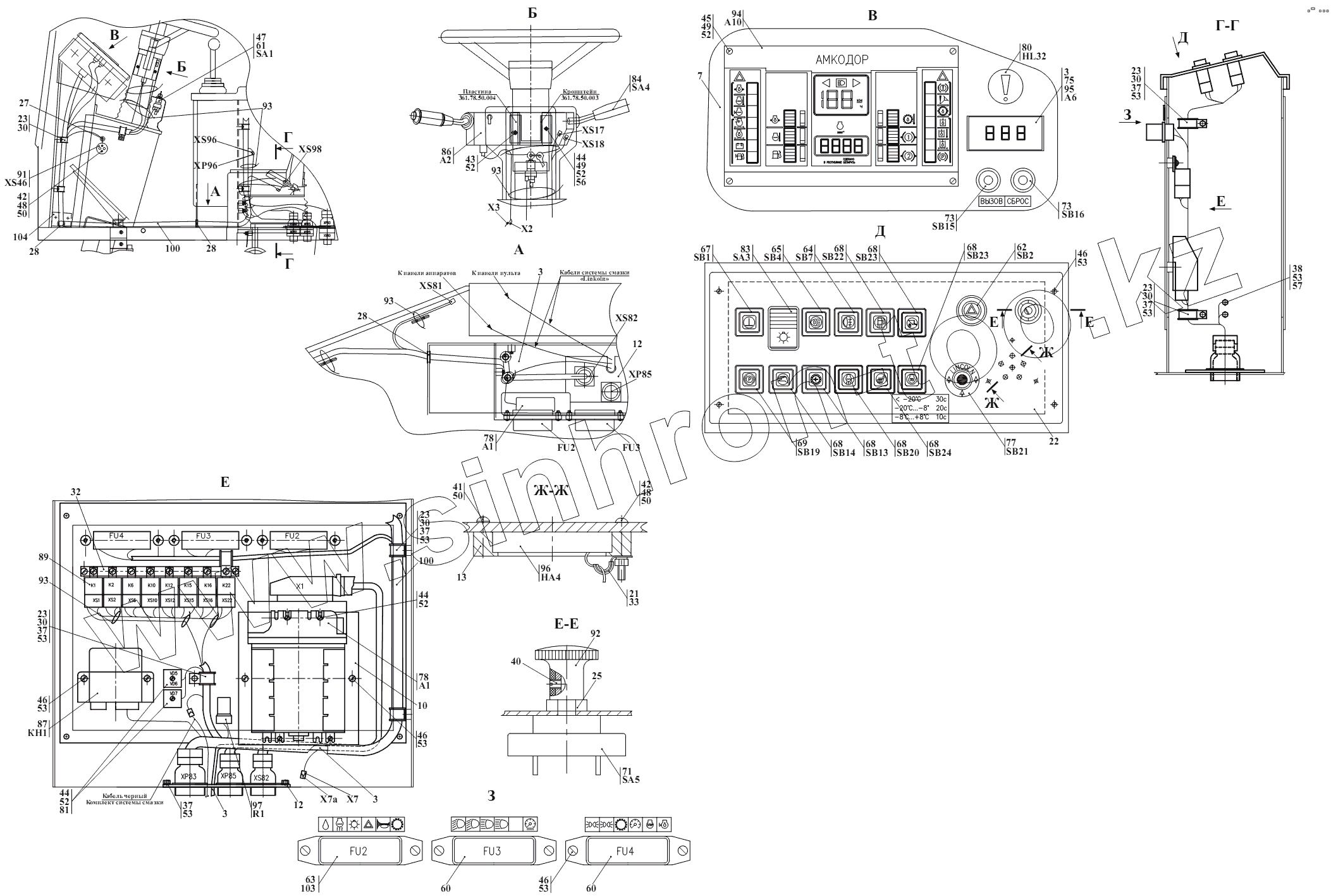
| Позиция на иллюстрации | Заводской номер детали | Название детали | |
|---|---|---|---|
| 3 | 371.78.91.400 | Доработка жгута | |
| 7 | 361.78.91.001 | Панель | |
| 10 | 361.78.91.007 | Пластина | |
| 12 | 361.78.91.009 | Пластина | |
| 13 | 361.78.91.010 | Кольцо | |
| 21 | 371.78.91.006 | Скоба | |
| 22 | 371.78.91.007 | Панель | |
| 23 | ДЭ-224А 47.00.003 | Втулка | |
| 25 | МПУ-1 10.74.002 | Гайка | |
| 27 | У22-2.37-50.002 | Втулка | |
| 28 | У22-2.37-50.002-03 | Втулка | |
| 30 | У22-2.37-50.025-03 | Хомут | |
| 32 | У7810.7-9 02.42.001-01 | Планка | |
| 33 | 371.78.91.008 | Трубка | |
| 37 | M6-6gx12.56.0115 | Болт | |
| 38 | M6-6gx16.56.0115 | Болт | |
| 40 | M4-6gx6.14H.0115 | Винт | |
| 41 | В.М3-6gx10.46.0115 | Винт | |
| 42 | В.М3-6gx30.46.0115 | Винт | |
| 43 | В.М5-6gx10.46.0115 | Винт | |
| 44 | В.М5-6gx12.46.0115 | Винт | |
| 45 | В.М5-6gx20.46.0115 | Винт | |
| 46 | B.M6-6gx12.46.0115 | Винт | |
| 47 | B.M4-6gx10.46.0115 | Винт | |
| 48 | М3-6Н.5.0115 | Гайка | |
| 49 | М5-6Н.5.0115 | Гайка | |
| 50 | 3.65Г0115 | Шайба | |
| 52 | 5.65Г0115 | Шайба | |
| 53 | 6.65Г0115 | Шайба | |
| 56 | С 5.02.Ст3 0115 | Шайба | |
| 57 | С 6.02.Ст3 0115 | Шайба | |
| 60 | БП-1 | Блок предохранителей | |
| 61 | Г2101-3704 | Замок зажигания | |
| 62 | 32.3710М | Выключатель | |
| 63 | БП-2 | Блок предохранителей | |
| 64 | 3842.3710-02.04М | Выключатель | |
| 65 | 3842.3710-02.06М | Выключатель | |
| 67 | 3842.3710-08.39М | Выключатель | |
| 68 | 3842.3710-02.00М | Выключатель | |
| 69 | 3842.3710-02.71M | Выключатель | |
| 71 | BK416M-01 | Выключатель | |
| 73 | ВК12-1-01 ЦИКС 642241.001 ТУ | Выключатель | |
| 75 | 6007.203.236 | Дисплей | |
| 77 | Кнопка принудительного запуска | Кнопка принудительного запуска | |
| 78 | EST-37 | Контроллер | |
| 80 | 21.02.3803 | Лампа | |
| 81 | МД4-5 | Модуль диодный | |
| 83 | 0974-01.02 | Переключатель | |
| 84 | ПКП-4 | Переключатель подрулевой | |
| 86 | DW3 | Переключатель передач | |
| 87 | ПЭУП4 | Прерыватель орота | |
| 89 | 901.3747 | Реле | |
| 91 | РНЦ 10-001 | Розетка | |
| 92 | 5428-3710021 | Ручка выключателя | |
| 93 | КСЧ-300 | Стяжка кабельная | |
| 94 | ИБКС.00.00.012-0 1 | Щиток | |
| 95 | 6007.203.236 | Дисплей | |
| 96 | 361.78.91.100 | Динамик | |
| 97 | 361.78.91.200 | Резистор | |
| 100 | 371.78.91.300 | Жгут 11 | |
| 103 | ТО-28 47.07.400 | Провод 1 | |
| 104 | У 10.78.50.008 | Крышка |
Содержащиеся в справочниках-каталогах запасные части и детали не предлагаются к продаже, а носят исключительно информационный характер