Каталог запасных частей к технике: Амкодор-342С-03. 351.11.00.000 Электросистема
1
1
2
3
4
4
5
6
7
8
8
9
10
11
12
13
14
15
16
16
17
18
19
20
21
22
23
24
25
26
27
28
29
29
30
31
32
33
34
35
36
37
38
39
40
41
41
41
42
43
44
45
46
47
48
49
50
51
52
53
54
54
55
55
56
56
57
57
58
58
59
59
60
60
61
61
61
61
61
61
61
61
62
62
62
63
63
64
65
66
67
68
69
70
71
72
73
73
73
73
74
75
76
77
77
78
79
79
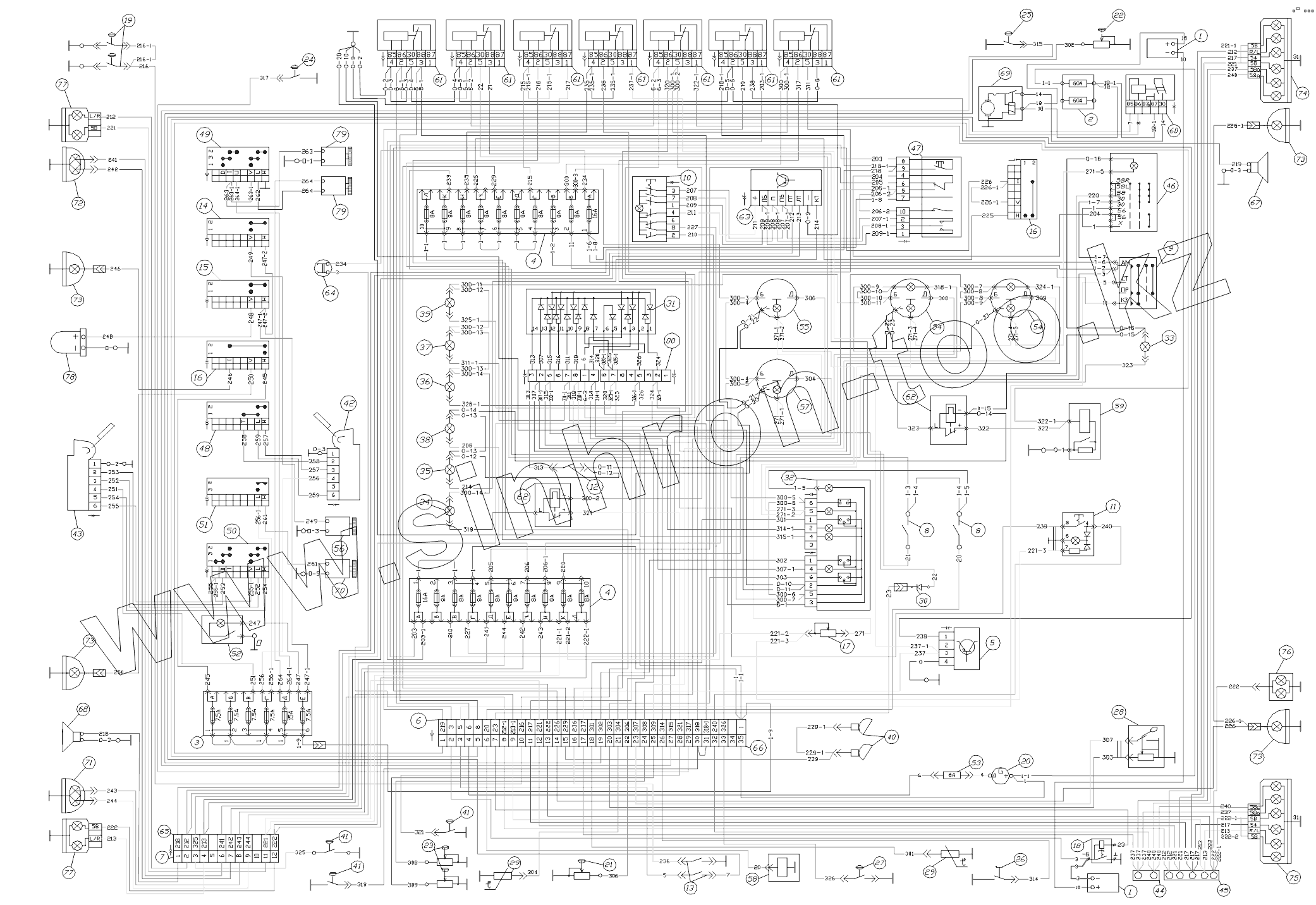
| Позиция на иллюстрации | Заводской номер детали | Название детали | |
|---|---|---|---|
| 1 | 6СТ-190А | Батарея аккумуляторная | |
| 2 | 11.3722 | Блок предохранителей | |
| 3 | БП-1 | Блок предохранителей | |
| 4 | ПР112 | Блок предохранителей | |
| 5 | 7002.3761 | Блок управления звук. сигналом | |
| 6 | СШ55П35Ш-9 | Вилка | |
| 7 | СШ32ПК12Ш-7 | Вилка | |
| 8 | 11.3704 | Выключатель | |
| 9 | 12.3704-05 | Выключатель | |
| 10 | 32.3710М | Выключатель | |
| 11 | 3812.3710-02.04 | Выключатель | |
| 12 | ВК-12-1 | Выключатель | |
| 13 | ВК-12-3 | Выключатель | |
| 14 | ВК343-01.12 | Выключатель | |
| 15 | ВК343-01.17 | Выключатель | |
| 16 | ВК343-03.01 | Выключатель | |
| 17 | ВК416-М-01 | Выключатель | |
| 18 | ВМ1212.3737-02 | Выключатель | |
| 19 | ВК-12Б | Выключатель света "стоп" гидравлический | |
| 20 | Г994.3701-1 | Генератор | |
| 21 | ДД-20 | Датчик | |
| 22 | ДД-10-02 | Датчик | |
| 23 | 1602.3829 | Датчик давления | |
| 24 | ДАДВ-02 | Датчик | |
| 25 | ДАДМ | Датчик | |
| 26 | ДАТЖ | Датчик | |
| 27 | ДСФ-65 | Датчик | |
| 28 | ДУМП-0,5 | Датчик указателя уровня топлива | |
| 29 | ДУТЖ | Датчик | |
| 30 | КД203А | Диод | |
| 31 | КД226Б | Диод | |
| 32 | КД8000-1 | Комбинация приборов | |
| 33 | 2102.3803 | Лампа контрольная | |
| 34 | 2212.3803-05 | Лампа контрольная | |
| 35 | 2212.3803-07 | Лампа контрольная | |
| 36 | 2212.3803-20 | Лампа контрольная | |
| 37 | 2212.3803-24 | Лампа контрольная | |
| 38 | 2212.3803-28 | Лампа контрольная | |
| 39 | 2212.3803-86 | Лампа контрольная | |
| 40 | ПД308-Б0 | Лампа подкапотная | |
| 41 | МП2101АУХЛЗисп.041А | Микровыключатель | |
| 42 | 6002.3730А | Моторедуктор стеклоочистителя | |
| 43 | 6002.3730-01 | Моторедуктор стеклоочистителя | |
| 44 | П14.3723 | Панель соединительная | |
| 45 | П17.3723 | Панель соединительная | |
| 46 | 581.3710-01 | Переключатель | |
| 47 | 66.3709 | Переключатель | |
| 48 | П147-01.09 | Переключатель | |
| 49 | П147-04.11 | Переключатель | |
| 50 | П147-09.09 | Переключатель | |
| 51 | П150-14.10 | Переключатель | |
| 52 | 11.3714 | Плафон освещения | |
| 53 | ПР119-01 | Предохранитель | |
| 54 | ЭИ8059-8 | Приемник указателя давления | |
| 55 | ЭИ8059-6 | Приемник указателя давления | |
| 55 | ЭИ8059-6 | Приемник указателя давления | |
| 56 | 526-8104210 | Вентилятор | |
| 56 | 526-8104210 | Вентилятор | |
| 57 | ЭИ8058 | Приемник указателя температуры | |
| 57 | ЭИ8058 | Приемник указателя температуры | |
| 58 | 1711.3741 | Приспособление пусковое аэрозольное | |
| 58 | 1711.3741 | Приспособление пусковое аэрозольное | |
| 59 | 733.3747 | Реле | |
| 59 | 733.3747 | Реле | |
| 60 | 738.3747-20 | Реле | |
| 60 | 738.3747-20 | Реле | |
| 61 | 901.3747 | Реле | |
| 61 | 901.3747 | Реле | |
| 62 | РС-493 | Реле-прерыватель | |
| 62 | РС-493 | Реле-прерыватель | |
| 63 | РС-951А | Реле поворотов | |
| 63 | РС-951А | Реле поворотов | |
| 64 | АР-93 | Розетка | |
| 65 | СШ32П12Г-7 | Розетка | |
| 66 | СШ55ПК35Г-9 | Розетка | |
| 67 | С313 | Сигнал звуковой | |
| 68 | С314Г | Сигнал звуковой | |
| 69 | СТ142Н | Стартер | |
| 70 | СЭАТ-10 | Стеклоомыватель | |
| 71 | 8703.302/6-01 | Фара дорожная | |
| 72 | 8703.302/06-01 | Фара дорожная | |
| 73 | 8724.3.09 | Фара рабочая | |
| 74 | 7462.3716 | Фонарь многофункциональный задний (правый) | |
| 75 | 7472.3716 | Фонарь многофункциональный задний (левый) | |
| 76 | 112.00.05 | Фонарь освещения номерного знака | |
| 77 | 3733.3712 | Фонарь передний многофункциональный | |
| 78 | ФС-2-24 | Фонарь сигнальный оранжевый | |
| 79 | 490.3730 | Электродвигатель |
Содержащиеся в справочниках-каталогах запасные части и детали не предлагаются к продаже, а носят исключительно информационный характер