Вернуться на главную
Поиск
Каталоги запчастей к технике
Спецтехника
Амкодор
352C
342В.11.00.000Т Электросистема
Каталог запасных частей к технике: Амкодор 352C. 342В.11.00.000Т Электросистема
zoom-in
zoom-out
enlarge
shrink
circle-right
circle-left
file-text2
info
cart
Тип техники
Не выбрано
Легковые автомобили
Грузовые автомобили и прицепы
Автобусы
Сельхозтехника
Спецтехника
Двигатели
Мототехника
Марка
Не выбрано
Ammann
BOMAG
CARMIX
CASE IH
Changlin
ChengGong
Dimex
Doosan
DYNAPAC
Foton
HAMM
Hidromek
Hitachi
Hyundai
JCB
JLG
John Deere
Komatsu
LIEBHERR
LiuGong
Lonking (LongGong)
Luneng
MANITOU
Mitsuber
New Holland
PENGPU
RM-Terex
SANY
SDLG
SEM
Shantui
Shehwa HBXG
Soosan
TIGARBO
VOGELE
Volvo
WAY
WIRTGEN
XCMG
XGMA
Xiamen
YTO
Yuchai
Zoomlion
Автокран
АЗСМ
Алтайлесмаш
Амкодор
АОМЗ
Атек
АТЗ
Балканкар Рекорд
БелАЗ
Беловеж
Борекс
Брянский Арсенал
Булат
ВЭКС
ГАЗ
Геомаш
Гидромаш
Донекс
Дормаш
Дормашина
Дорэлектромаш
ДЭЗ
ЕлАЗ
ЗЗГТ
Ижнефтемаш
Канаш-электрокар
КЗКТ
ККЗ
Клевер
Клинцовский автокрановый завод
КМЗ
КМЗ 1 Мая
Ковровец
Коммаш
Кранэкс
КЭЗ
КЭМЗ
ЛЗА
МАЗ
МЗИК
МЗКМ
МЗКТ
Михневский РМЗ
МоАЗ
Мозырский МЗ
МТЗ
ОЗП
Онежец
ПАО "ТЗА"
ППС Детва
Промтрактор
ПТЗ
Раскат
СпецАгрегат
ТВЭКС
ТТМ
УВЗ
Угличмаш
УЗТМ
ХТЗ
ЧЗКМ
ЧСДМ
ЧТЗ
ЭКСКО
ЭКСМАШ
ЮрМаш
Модель
Не выбрано
2561 (2021)
352C (2019)
Амкодор-208А (2006)
Амкодор-208В (2006)
Амкодор-211 (2009)
Амкодор-211 (2011)
Амкодор-211nev (2009)
Амкодор-211Е (2014)
Амкодор-211Е (2016)
Амкодор-2243В (2012)
Амкодор-2541 (2013)
Амкодор-2541 (2021)
Амкодор-2551 (2011)
Амкодор-2551 (2020)
Амкодор-2661-01 (2011)
Амкодор-2662 (2015)
Амкодор-2904 (2020)
Амкодор-320 (2009)
Амкодор-320 (2011)
Амкодор-320СЕ (2013)
Амкодор-3225 (2018)
Амкодор-325 (ТО-18К) (2006)
Амкодор-327 (ТО-18Д) (2003)
Амкодор-332B, 332B4 (2008)
Амкодор-332С-01 (2006)
Амкодор-332С4 (2016)
Амкодор-332С4 (2018)
Амкодор-332С4, 332С4-02 (2008)
Амкодор-333 (ТО-18Б) (2004)
Амкодор-333А (ТО-18Б2) (2006)
Амкодор-333В (ТО-18Б3)
Амкодор-333В, 332С (2008)
Амкодор-342 (ТО-28) (2004)
Амкодор-342А (ТО-28А)
Амкодор-342В (ТО-18А) (2006)
Амкодор-342В, 342С4, 342Р (2008)
Амкодор-342В, 342С4, 342Р (2010)
Амкодор-342С (2006)
Амкодор-342С-03 (2008)
Амкодор-342С4 (2018)
Амкодор-351 (2006)
Амкодор-352 (2006)
Амкодор-352 (2008)
Амкодор-352 (2021)
Амкодор-352 (352C, 352Л) (2008)
Амкодор-352-10 (2010)
Амкодор-352-10 (2021)
Амкодор-352C (2006)
Амкодор-352СА (2017)
Амкодор-361 (2006)
Амкодор-37 (2012)
Амкодор-371 (2009)
Амкодор-371 (2014)
Амкодор-371А (2009)
Амкодор-451A (2006)
Амкодор-451A(2011) (2011)
Амкодор-527 (2009)
Амкодор-6223 (2007)
Амкодор-6223А (2007)
Амкодор-6223А (2016)
Амкодор-6223Е (2014)
Амкодор-6622 (2007)
Амкодор-6622А (2014)
Амкодор-6712B (2013)
Амкодор-6712А (2007)
Амкодор-702 (2006)
Амкодор-702EA (2007)
Амкодор-702EA(2012) (2012)
Амкодор-702EВ (2012)
Амкодор-702В (ТО-49-40) (2003)
Амкодор-702Е (2008)
Амкодор-702ЕМ-03 (2010)
Амкодор-732 (2015)
Амкодор-732 (2016)
Амкодор-8047А (2007)
Амкодор-91 (ДЗ-133ЭЦ) (2006)
Амкодор-9211А1 (2010)
Амкодор-9531 (ДЭ-226) (2006)
Амкодор-Е16 (2011)
Амкодор-Е25 (2017)
Амкодор-ЕР30 (2017)
Амкодор-ТО-18А (2000)
ГМП 2541.17.00.010-А (2013)
ГМП серии 120 модели G160.17.15.000 (2021)
ГМП серии У35615 модели 332.17.15.000 (2018)
ГМП серии У35615 модели 332С4.17.00.010-А 2018 (2018)
Мост ведущий неуправляемый 10Н.23.00.000 (2019)
Мост ведущий неуправляемый 10НР.24.00.000 (2019)
Мост ведущий неуправляемый 25Н (2018)
Мосты ведущие (2018)
Мосты ведущие серии 342 (2015)
Мосты серии 451 (2019)
Рабочие органы Амкодор-352 (2010)
Т400-70 (2020)
Схема
>
Не выбрано
352С.00.00.000 Погрузчик универсальный
352С.00.00.000 Погрузчик универсальный
352С.00.00.000 Погрузчик универсальный
352С.00.00.000 Погрузчик универсальный
352С.00.00.000 Погрузчик универсальный
342.17.00.000 Установка ГМП
332С4.03.00.000 Установка ГМП
352.35.05.000 Гидросистема тормозов
352.35.05.000 Гидросистема тормозов
352.35.05.000 Гидросистема тормозов
УГА2-01.01.000 Блок разгрузочный
УГА2-05.01.000 Кран тормозной
352.34.07.000 Гидросистема рулевого управления
352.34.07.000 Гидросистема рулевого управления
352.34.07.000 Гидросистема рулевого управления
352.34.07.000 Гидросистема рулевого управления
352.34.07.000 Гидросистема рулевого управления
342В.34.07.200-Б Гидроцилиндр
Ц080040.00.000-В Гидроцилиндр
КГЦ 632-02.80-56-400 Гидроцилиндр
352.34.07.070 Клапан приоритетный в сборе со штуцерами
ТО-28А.78.01.000 Клапан разгрузочный
352С.01.00.000 Рама
352С.01.00.000 Рама
350.28.03.000 Установка противовеса
350.28.05.000 Установка противовеса
350.02.00.000 Установка силовая
350.02.00.000 Установка силовая
350.02.00.000 Установка силовая
350.02.00.000 Установка силовая
350.02.01.000-Б Установка радиаторов
350.02.01.000-Б Установка радиаторов
350.02.04.000 Редуктор
350.02.04.000 Редуктор
350.02.05.000 Система заправки РОМ
ТО-28А.02.03.000 Воздухоочиститель
332В.10.11.000 Топливопровод
332В.10.12.000 Топливопровод
ТО-28А.02.00.900-В Установка демпфера
ТО-28А.02.16.000 Воздухоочиститель
ТО-28А.02.19.000 Бак топливный
350.02.00.000 Установка силовая
350.02.00.000 Установка силовая
350.02.01.000Т Установка радиаторов
350.02.01.000Т Установка радиаторов
352С.10.00.000 Установка силовая
352С.10.00.000 Установка силовая
352С.10.00.000 Установка силовая
352С.10.15.005 Установка подогревателя предпускового
352С.10.15.005 Установка подогревателя предпускового
352С.10.15.005 Установка подогревателя предпускового
352С.10.15.200 Электросистема подогревателя предпускового дизельного 14ТС-10 АКР
352С.10.15.200 Электросистема подогревателя предпускового дизельного 14ТС-10 АКР
352С.10.15.200 Электросистема подогревателя предпускового дизельного 14ТС-10 АКР
350.04.00.000 Установка карданных валов
ТО-28А.04.00.100 Вал
352С.30.00.000 Установка мостов и колес
350.05.01.000 Рамка балансирная
350.05.01.000Т Рамка балансирная
350С.31.01.000 Колесо
352Л.05.05.000 Система смазки
352С.29.00.000 Установка мостов и колес
352С.31.01.000 Колесо
350.07.00.000 Гидросистема ГМП
350.07.00.000 Гидросистема ГМП
350.07.00.000 Гидросистема ГМП
ТО-28А.07.05.000 Фильтр магистральный
ТО-28А.07.07.000 Фильтр магистральный
350.17.14.005 Установка системы охлаждения ГМП
350.17.14.005 Установка системы охлаждения ГМП
350.09.00.000-В Управление
350.09.00.000-В Управление
350.09.00.000-В Управление
350.09.02.000 Тяга
350.09.03.000 Тяга
350.09.03.000-Б Тяга
350.09.05.000 Тяга
350.09.06.000 Тяга
350.09.06.000-Б Тяга
350.09.07.000 Тяга
ТО-18Б.79.02.000 Тяга
ТО-18Б.79.03.000 Тяга
ТО-18Б.79.11.000 Тяга
ТО-18Б.79.05.000 Тяга
ТО-18Б.79.07.000 Тяга
ТО-18Б.79.12.000 Тяга
ТО-18Б.79.09.000 Тяга
ТО-18Б.79.10.000 Тяга
ТО-18Б.79.13.000 Тяга
ТО-18Б.79.14.000 Тяга
ТО-18Б.79.15.000 Тяга
ТО-18Д.09.02.000 Механизм управления
352.85.00.000 Облицовка
352.85.00.000 Облицовка
352.85.00.000 Облицовка
352.85.00.000 Облицовка
352.85.00.000 Облицовка
352.85.00.000 Облицовка
332С4.13.23.000-Б Крыло
332С4.13.25.000 Лестница
352.85.25.000 Лестница
332С4.13.32.000 Корпус
332С4.13.31.000 Корпус
332С4.84.21.000 Лестница
350.13.29.000 Лестница
352.85.13.000 Лестница
ТО-18Б.83.01.000 Лестница
ТО-18Б.83.23.000 Крыло
350.13.10.000 Крыло
350.13.19.000 Крыло
ТО-18Б.83.24.000 Крыло
350.13.13.000 Лестница
ТО-18Д.13.15.000 Крыло
350.13.14.000 Крыло
ТО-18Д.13.16.000 Крыло
350.13.15.000 Крыло
ТО-28А.13.18.000 Крыло
350.13.09.000 Крыло
350.13.00.000Т-Б Облицовка
350.13.00.000Т-Б Облицовка
350.13.00.000Т-Б Облицовка
350С4.14.00.000 Оборудование погрузочное
342С4.14.03.000 Тяга
350С4.14.06.000 Стрела
350С4.14.04.000 Коромысло
342С4.37.00.000 Электросистема
342С4.37.00.000 Электросистема
342С4.37.00.000 Электросистема
211.37.00.250-Б Сигнализатор
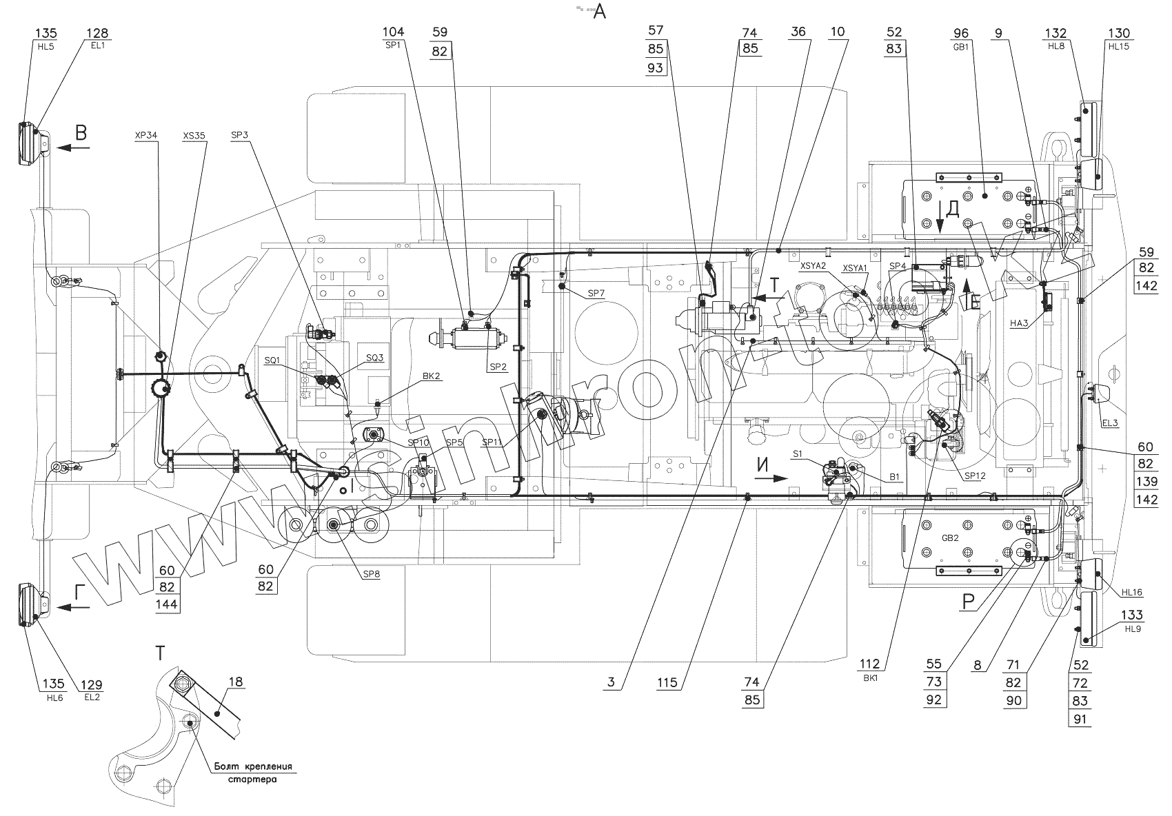
342В.11.00.000Т Электросистема
342В.11.00.000Т Электросистема
342В.11.00.000Т Электросистема
352.13.00.000Т-Б Система охлаждения гидробака
352С.46.00.000-Б Гидросистема рабочего оборудования
352С.46.00.000-Б Гидросистема рабочего оборудования
352С.46.00.000-Б Гидросистема рабочего оборудования
350С.46.13.000 Гидроцилиндр стрелы
350С.46.14.000 Гидроцилиндр ковша
352.46.15.000 Гидробак
352С.46.10.000 Подключение насосов
352С.46.10.000 Подключение насосов
352С.46.11.000 Управление гидрораспределителем
352С.46.11.000 Управление гидрораспределителем
352.46.09.040 Блок управления
ТО-28А.76.09.015 Блок управления
ТО-28А.76.09.030 Блок управления
ТО-28А.76.09.040 Установка пневмоаккумулятора с блоком гидроклапанов
ТО-28А.76.09.050 Установка блока питания
ТО-28А.76.09.070 Установка блока питания
КГЦ634.140-80-800 Гидроцилиндр
КГЦ635.180-80-S Гидроцилиндр
352С.18.00.000 Пневмосистема
342С.45.40.000 Адаптер
ТО-28.50.04.000 Гидросистема адаптера
208А.45.05.600 Гидроцилиндр
КГЦ 731.63-36/36-115 Гидроцилиндр
СО1.81.00.000 Система отопления
СО1.81.00.000 Система отопления
352С.10.15.005 Установка подогревателя предпускового
352С.10.15.005 Установка подогревателя предпускового
352С.10.15.005 Установка подогревателя предпускового
352С.10.15.200 Электросистема подогревателя предпускового дизельного 14ТС-10 АКР
352С.10.15.200 Электросистема подогревателя предпускового дизельного 14ТС-10 АКР
352С.10.15.200 Электросистема подогревателя предпускового дизельного 14ТС-10 АКР
СО1.81.02.000 Доработка кабины
СО1.81.02.000 Доработка кабины
СО1.81.38.000 Электросистема
352С.21.00.000 Ковш
352С.45.06.000 Ковш
СС1.85.00.010 Система централизованной смазки
СС1.85.37.000 Электросистема централизованной смазки BEKA-MAX
СС1.85.39.000 Электросистема централизованной смазки LINCOLN
352С.50.00.000 Установка кабины
352С.50.00.000 Установка кабины
352С.50.00.000 Установка кабины
352С.50.00.000 Установка кабины
352С.50.00.000 Установка кабины
352С.50.00.000 Установка кабины
352С.50.00.000 Установка кабины
352С.50.00.000 Установка кабины
352.81.01.000Т Установка компрессора
2661.81.01.000 Установка компрессора
ТО-28А.91.10.000-Б Установка компрессора
352С.50.37.000 Подключение компрессора
ТО-18Б.85.01.000 Стойка
ТО-18Б.85.02.000 Стойка
ТО-18Б.85.04.000 Стойка
ТО-18Б.85.05.000 Стойка
ТО-28.50.00.000-Б Адаптер
ТО-28.50.04.000 Гидросистема адаптера
208А.45.05.600 Гидроцилиндр
КГЦ 731.63-36/36-115 Гидроцилиндр
ТО-28А.20.00.000 Установка трубопроводов отопителя
ТО-28А.20.00.000 Установка трубопроводов отопителя
ТО-28А.20.00.000 Установка трубопроводов отопителя
3
8
9
10
18
36
52
52
55
57
59
59
60
60
60
71
72
73
74
74
82
82
82
82
82
82
83
83
85
85
85
90
91
92
93
96
104
112
115
128
129
130
132
133
135
135
139
142
142
144
Позиция на иллюстрации
Заводской номер детали
Название детали
1
211.37.00.250-Б
Сигнализатор
3
342В.11.00.200Т-Б
Жгут 2
4
342В.11.00.300Т
Жгут 3
5
342В.11.00.400Т-Г
Жгут 4
8
342В.11.00.700Т-Б
Провод 3
9
342В.11.00.750Т
Провод 10
10
342В.11.00.800Т
Провод 18
13
342С4.37.00.500
Жгут 5
15
342С4.37.00.600-В
Жгут
18
ТО-27-2АУХЛ-12 00.02.750-01
Провод М-2
20
342С4.37.00.001-Б
Панель
24
352С.37.00.001
Прокладка
25
352С.37.00.002-Б
Кронштейн
27
527.37.00.002
Прижим
30
Д-565.4100-07
Втулка
36
ТМ-59.6000-38
Наконечник резиновый
39
ТО-18Д.11.00.007
Планка
42
ТО-25.58.07.008
Шайба
45
ТО-28А.11.00.003
Прокладка
52
М8-6gx25.88.35.0115
Болт
53
М8-6gx35.88.35.0115
Болт
54
М10-6gx16.88.35.0115
Болт
55
М10-6gx35.88.35.0115
Болт
57
М12-6gx30.88.35.0115
Болт
59
М6-6gx12.88.35.0115
Болт
60
М6-6gx16.88.35.0115
Болт
61
М6-6gx25.88.35.0115
Болт
64
В.М4-6gx16.46.0115
Винт
66
В.М6-6gx16.46.0115
Винт
69
М4-6H.8.35.0115
Гайка
71
М6-6H.8.35.0115
Гайка
72
М8-6H.8.35.0115
Гайка
73
М10-6H.8.35.0115
Гайка
74
М12-6H.8.35.0115
Гайка
80
4 65Г 0115
Шайба
82
6 65Г 0115
Шайба
83
8 65Г 0115
Шайба
84
10 65Г 0115
Шайба
85
12 65Г 0115
Шайба
88
С.4.02.Ст3.0115
Шайба
90
С.6.02.Ст3.0115
Шайба
91
С.8.02.Ст3.0115
Шайба
92
С.10.02.Ст3.0115
Шайба
93
С.12.02.Ст3.0115
Шайба
94
С.16.02.Ст3.0115
Шайба
95
10 М3
Прокладка
96
6СТ-190АЗ
Батарея
97
БП-3-02
Блок предохранителей
98
БП-11-05
Блок предохранителей
101
1212.3737
Выключатель
103
ВК24-1
Выключатель
104
ВК12Б-02
Выключатель света «стоп» гидравлический
107
ДАДВ-02
Датчик
108
ДАДМ
Датчик
110
ДСФ-65
Датчик
112
ДУТЖ-03
Датчик
115
SEL.3.223 200x4,5
Кабельная стяжка
120
738.3747-50
Реле стартера 738.3747-50
123
DL120-24V-H
Звуковой сигнал
124
DL120-24V-L
Звуковой сигнал
125
K91-2M-24V-H
Сигнал звуковой
126
K91-2M-24V-L
Сигнал звуковой
128
8703.302/6-01
Фара дорожная
129
8703.302/06-01
Фара дорожная
130
2112.3711-02
Фара заднего хода
132
8520.25/11
Фонарь 3-х секционный
133
8520.25/70
Фонарь 3-х секционный
135
3733.3712
Фонарь передний многофункциональный
137
112.00.05
Фонарь освещения номерного знака
139
NORMA RLGU 1.14/15 W1
Хомут
140
NORMA RLGU 1.18/15 W1
Хомут
141
NORMA RLGU 1.22/15 W1
Хомут
142
NORMA RLGU 1.25/15 W1
Хомут
144
NORMA RLGU 1.30/15 W1
Хомут
147
41C20864T40D NC
Электрический переключатель давления
148
41C20865T55D NC
Электрический переключатель давления
Содержащиеся в справочниках-каталогах запасные части и детали не предлагаются к продаже, а носят исключительно информационный характер
Дополнительная информация
×
Название:
Номер:
Примечание: