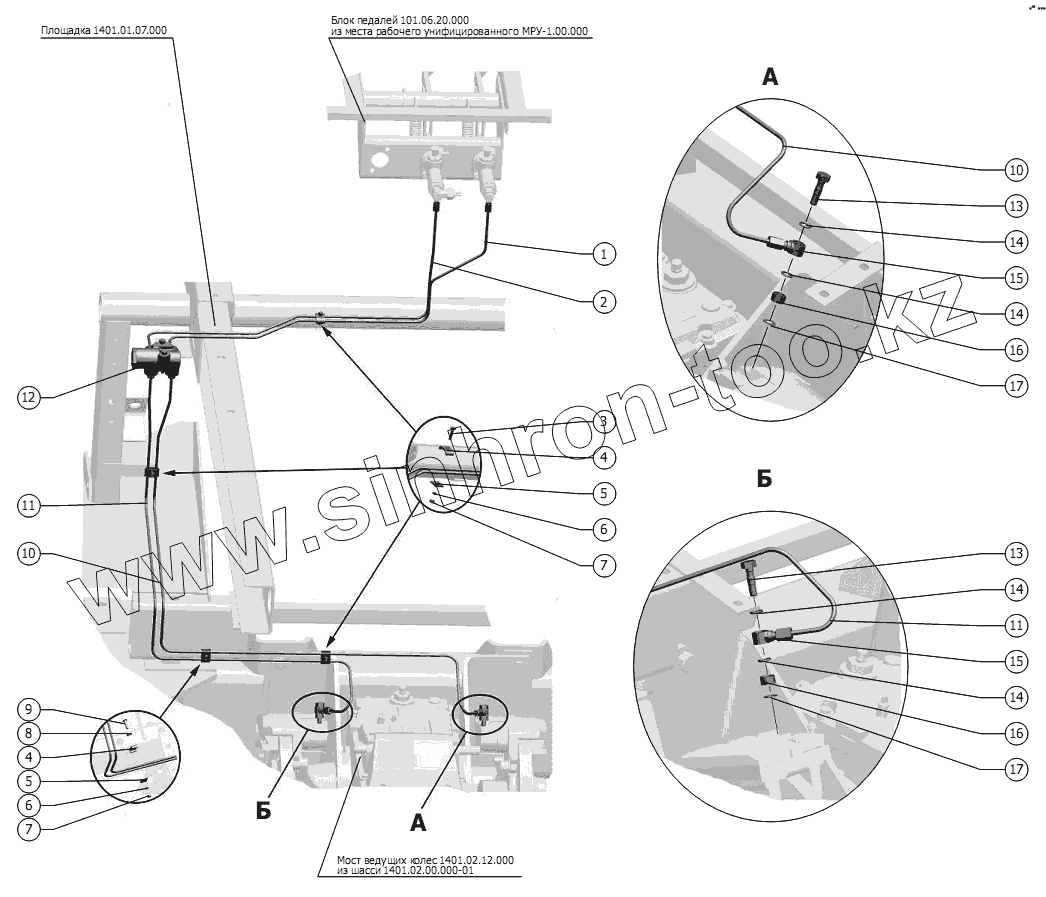
Каталог запасных частей к технике: РСМ-1401. Коммуникации управления тормозами
1401.01.07.000
101.06.20.000
МРУ-1.00.000
1401.02.12.000
1401.02.00.000-01
1
2
3
4
4
5
5
6
6
7
7
8
9
10
10
11
11
12
13
13
14
14
14
14
15
15
16
16
17
17
| Позиция на иллюстрации | Заводской номер детали | Название детали | |
|---|---|---|---|
| 1401.01.07.000 | 1401.01.07.000 | Площадка | |
| 101.06.20.000 | 101.06.20.000 | Блок педалей | |
| МРУ-1.00.000 | МРУ-1.00.000 | Место рабочее унифицированное | |
| 1401.02.12.000 | 1401.02.12.000 | Мост ведущих колес | |
| 1401.02.00.000-01 | 1401.02.00.000-01 | Шасси | |
| 1 | 1401.55.00.030 | Трубопровод | |
| 2 | 1401.55.00.040 | Трубопровод | |
| 3 | М6-6gx25.48.019 ГОСТ 7798-70 | Болт | |
| 4 | 8.6.18 ОСТ 23.2.120-84 | Скоба | |
| 5 | РСМ-10.04.34.508-01 | Накладка | |
| 6 | 6Т 65Г 019 ГОСТ 6402-70 | Шайба | |
| 7 | М6-6H.6.019 ГОСТ 5915-70 | Гайка | |
| 8 | С.8.01.019 ГОСТ 11371-78 | Шайба | |
| 9 | М6х25.46.019 ГОСТ 7802-81 | Болт | |
| 10 | 1401.55.00.020 | Трубопровод | |
| 11 | 1401.55.00.010 | Трубопровод | |
| 12 | 3518090-51050 | Регулятор давления | |
| 13 | 101.02.64.601 | Болт поворотного угольника | |
| 14 | 011-015-25-2-6 ГОСТ 9833-73/ ГОСТ 18829-73 | Кольцо | |
| 15 | РСМ-10.04.14.307-01 | Угольник | |
| 16 | 101.02.64.602 | Кольцо | |
| 17 | 24-76-3506013 | Прокладка |
Содержащиеся в справочниках-каталогах запасные части и детали не предлагаются к продаже, а носят исключительно информационный характер