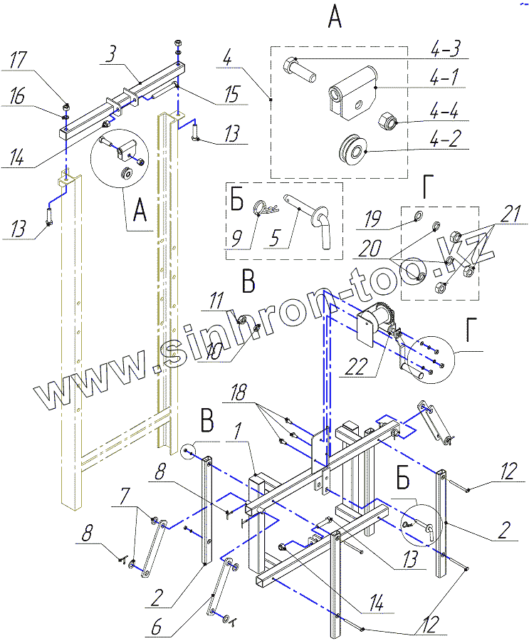
Каталог запасных частей к технике: Ремком ОН-600-12Р. Механизм подъёма штанги
1
2
2
3
4
4-1
4-2
4-3
4-4
5
6
7
8
8
9
10
11
12
12
13
13
13
14
14
15
16
17
18
19
20
21
22
| Позиция на иллюстрации | Заводской номер детали | Название детали | |
|---|---|---|---|
| 1 | ИЯПБ 64.30.10.00 | Рамка | |
| 2 | ИЯПБ 64.30.20.000 | Ограничитель | |
| 3 | ИЯПБ 64.30.30.000 | Балка | |
| 4 | ИЯПБ 64.30.40.000 | Блок в сборе | |
| 4-1 | ИЯПБ 64.30.41.000 | Корпус | |
| 4-2 | ИЯПБ 64.30.40.001 | Блок | |
| 4-3 | М16-6g х 50 | Болт | |
| 4-4 | М16-10 | Гайка | |
| 5 | ИЯПБ 64.20.80.000 | Палец | |
| 6 | ИЯПБ 64.30.00.001 | Подвеска | |
| 7 | 20 | Шайба | |
| 8 | 5 х 36 | Шплинт | |
| 9 | 3,2 | Шплинт пружинный | |
| 10 | 8 | Шайба | |
| 11 | М8-6Н | Гайка | |
| 12 | М8-6g х 105 | Болт | |
| 13 | М16-6g х 65 | Болт | |
| 14 | М16-10 | Гайка | |
| 15 | M16-6g х 130 | Болт | |
| 16 | 16 | Шайба | |
| 17 | M16-6H | Гайка | |
| 18 | М10-6g х 22 | Болт | |
| 19 | А 10.37 | Шайба | |
| 20 | 10 | Шайба | |
| 21 | М10-6Н | Гайка | |
| 22 | Лебёдка | Лебёдка |
Содержащиеся в справочниках-каталогах запасные части и детали не предлагаются к продаже, а носят исключительно информационный характер