Каталог запасных частей к технике: KRONE BIG-X-500. Condenser for air conditioner-cpl.
1
2
3
3
3
3
4
4
4
4
5
6
7
7
7
7
8
9
10
11
12
13
14
14
14
14
14
14
15
15
15
15
15
15
15
15
15
15
15
15
16
17
18
18
18
18
18
18
19
20
21
22
22
22
22
22
22
23
24
26
26
27
28
29
30
31
32
32
32
32
33
33
33
34
35
36
37
38
39
40
41
42
42
43
43
44
44
45
46
47
48
48
49
50
50
50
51
53
54
54
55
56
57
58
59
59
60
61
62
63
64
65
65
66
67
68
69
70
71
72
73
73
74
75
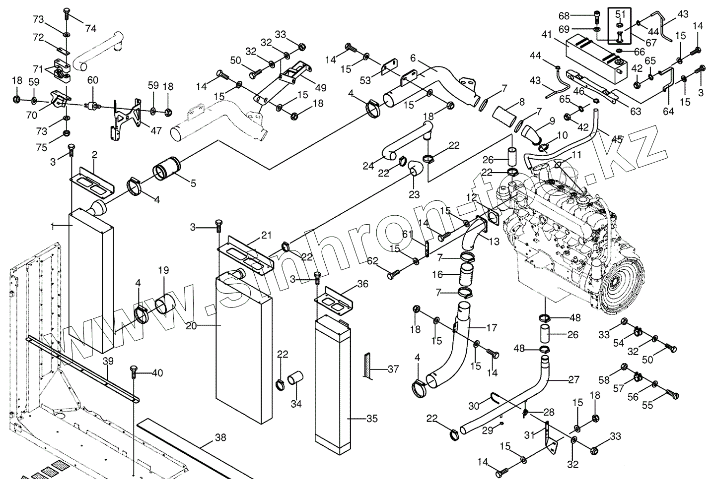
| Позиция на иллюстрации | Заводской номер детали | Название детали | |
|---|---|---|---|
| 1 | 002141881 | Charge air cooler | |
| 2 | 200203890 | Cover plate | |
| 3 | 009006340 | Hex head bolt | |
| 4 | 009405400 | Clamp | |
| 5 | 002280480 | Corrugated tube-auburn | |
| 6 | 002149620 | Charge air tube | |
| 7 | 002328270 | Hose clamp | |
| 8 | 009402120 | Hose | |
| 9 | 009402100 | Charge air tube | |
| 10 | 002328280 | Hose clip | |
| 11 | 009376130 | O-ring | |
| 12 | 002328260 | Gasket | |
| 13 | 002149680 | Charge air connector | |
| 14 | 009006370 | Hex head bolt | |
| 15 | 009104140 | Washer | |
| 16 | 009402110 | Hose | |
| 17 | 002149650 | Charge air tube | |
| 18 | 009087580 | Locknut | |
| 19 | 002223410 | Hose coupling-auburn | |
| 20 | 002141871 | Cooling solvent cooler | |
| 21 | 200203880 | Cover plate | |
| 22 | 270033010 | Joint bolt-hose clamp | |
| 23 | 002133950 | Hose connector | |
| 24 | 200245230 | Water tube | |
| 26 | 002329572 | Sleeve | |
| 27 | 002148760 | Water tube | |
| 28 | 009193750 | Discharge drain | |
| 29 | 009240490 | Tube clip | |
| 30 | 002331880 | Holding bow | |
| 31 | 002149980 | Support plate | |
| 32 | 009104130 | Washer | |
| 33 | 009087060 | Locknut | |
| 34 | 002329582 | Sleeve | |
| 35 | 002141911 | Oil cooler | |
| 36 | 200203870 | Cover plate | |
| 37 | 009385560 | Self-adhesive sealing strip-Id.-no.= 1m | |
| 38 | 200203810 | Floor mat | |
| 39 | 200203930 | Angle | |
| 40 | 009006320 | Hex head bolt | |
| 41 | 270030640 | Cooling agent header tank | |
| 42 | 009082120 | Hex nut | |
| 43 | 009401730 | Hose-Id.-no.= 1m | |
| 44 | 009240340 | Hose clamp | |
| 45 | 002330930 | Hose | |
| 46 | 009240450 | Tube clip | |
| 47 | 002149991 | Holding plate | |
| 48 | 009240410 | Joint bolt-hose clamp | |
| 49 | 200218140 | Panel | |
| 50 | 009006160 | Hex head bolt | |
| 50 | 009006140 | Hex head bolt | |
| 51 | 009403790 | Sealing cap | |
| 53 | 002257200 | Enclosure | |
| 54 | 009240510 | Tube clip w. rubber | |
| 54 | 009240550 | Tube clip w. rubber | |
| 55 | 009037450 | Allen screw | |
| 56 | 009105001 | Washer | |
| 57 | 009240090 | Tube clip w. rubber | |
| 58 | 009082071 | Hex nut | |
| 59 | 900001210 | Washer | |
| 60 | 270035800 | Rubber pad | |
| 61 | 200239740 | Hose support | |
| 62 | 009006380 | Hex head bolt | |
| 63 | 200243730 | Support | |
| 64 | 200243720 | Yoke | |
| 65 | 009099091 | Detent edged washer | |
| 66 | 270039650 | Rubber seal | |
| 67 | 200123130 | Filler neck | |
| 68 | 009037471 | Allen screw | |
| 69 | 009103650 | Washer | |
| 70 | 200245260 | Tube support | |
| 71 | 270039620 | Tube clamp-2 halves | |
| 72 | 270039630 | Cover plate | |
| 73 | 009104111 | Washer | |
| 74 | 009011590 | Hex head bolt | |
| 75 | 009087041 | Locknut |
Содержащиеся в справочниках-каталогах запасные части и детали не предлагаются к продаже, а носят исключительно информационный характер