Каталог запасных частей к технике: ГАЗ-3307. Платформа
1
2
3
4
4
4
5
6
7
8
8
8
8
8
8
8
8
8
8
9
9
10
10
10
10
10
10
11
12
13
14
15
16
17
18
18
18
18
18
18
19
19
20
20
20
20
20
20
20
21
21
21
22
23
23
23
24
24
25
26
27
27
27
27
28
29
30
31
32
32
32
33
34
35
36
37
38
38
39
40
40
41
41
41
42
43
44
45
46
47
48
49
50
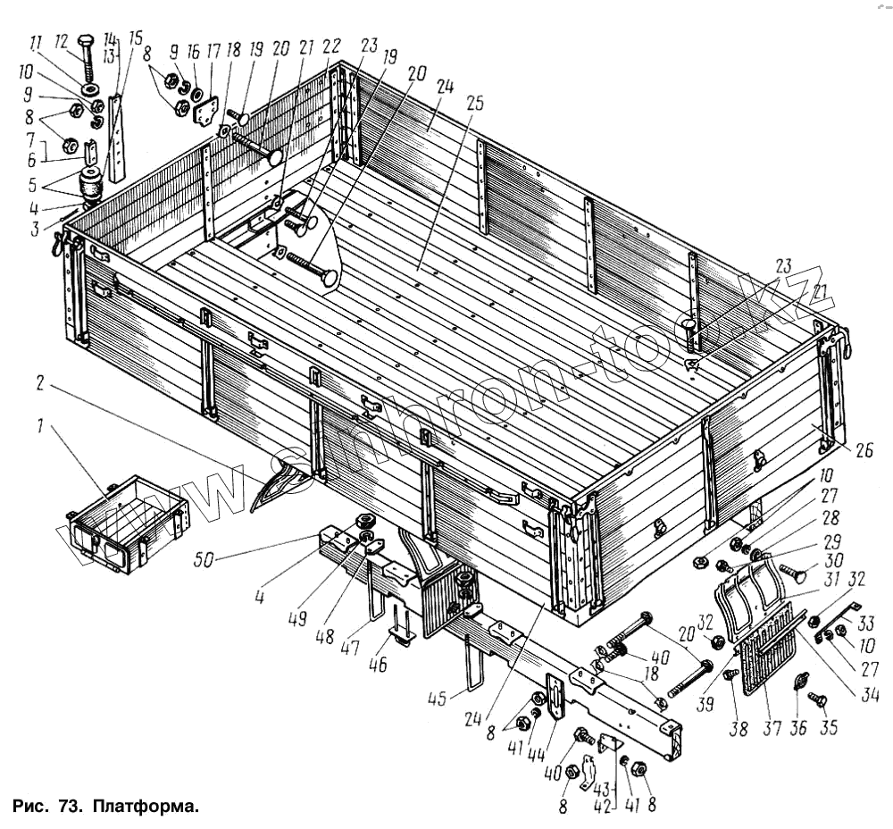
| Позиция на иллюстрации | Заводской номер детали | Название детали | |
|---|---|---|---|
| 3307-8500010 | 3307-8500010 | Платформа с бортами | |
| 1 | 53-07-8507010 | Ящик инструментальный в сборе | |
| 2 | 3307-8511020 | Брызговик заднего колеса в сборе | |
| 3 | 258040-П29 | Шплинт 3,2х25 ОСТ 37.001.171-93 | |
| 4 | 250515-П29 | Гайка М12х1,25-6Н ОСТ 37.001.124-93 | |
| 4 | 250515-П29 | Гайка М12х1,25-6Н ОСТ 37.001.124-93 | |
| 5 | 252045-П29 | Шайба 12 ОСТ 37.001.144-96 | |
| 6 | 53-500019-Б | Башмак установочного угольника платформы левый | |
| 7 | 53-8500018-Б | Башмак установочного угольника правый | |
| 8 | 250512-П29 | Гайка М10-6Н ОСТ 37.001.124-93 | |
| 8 | 250512-П29 | Гайка М10-6Н ОСТ 37.001.124-93 | |
| 8 | 250512-П29 | Гайка М10-6Н ОСТ 37.001.124-93 | |
| 8 | 250512-П2 | Гайка М10-6Н | |
| 8 | 250512-П2 | Гайка М10-6Н | |
| 8 | 250512-П29 | Гайка М10-6Н ОСТ 37.001.124-93 | |
| 9 | 252156-П2 | Шайба 10Л ОСТ 37.001.115-75 | |
| 10 | 250510-П29 | Гайка М8-6Н ОСТ 37.001.124-93 | |
| 10 | 250510-П29 | Гайка М8-6Н ОСТ 37.001.124-93 | |
| 10 | 250510-П29 | Гайка М8-6Н ОСТ 37.001.124-93 | |
| 10 | 250510-П29 | Гайка М8-6Н ОСТ 37.001.124-93 | |
| 11 | 293370-П29 | Шайба 12 | |
| 12 | 205467-П29 | Болт 2М12х1,25-6gх70 ОСТ 37.001.123-96 | |
| 13 | 53-8500017-30 | Угольник установочный на платформе левый | |
| 14 | 53-8500016-30 | Угольник установочный на платформе правый | |
| 15 | 11-18081 | Подушка стойки стабилизатора нижняя | |
| 16 | 252006-П29 | Шайба 10 ОСТ 37.001.144-96 | |
| 17 | 53-27-8501064 | Пластина крепления балки с подкладкой | |
| 18 | 92Ю-8501120-А | Шайба специальная | |
| 18 | 92Ю-850120-А | Шайба специальная под головку болта | |
| 18 | 92Ю-8501120-А | Шайба специальная | |
| 18 | 92Ю-8501120-А | Шайба специальная | |
| 18 | 92Ю-8501120-А | Шайба специальная | |
| 19 | 210406-П29 | Болт М10-6gх30 | |
| 20 | 210417-П8 | Болт М10-6gх90 | |
| 20 | 210417-П8 | Болт М10-6gх90 | |
| 20 | 210417-П8 | Болт М10-6gх90 | |
| 20 | 210417-П8 | Болт М10-6gх90 | |
| 20 | 210417-П8 | Болт М10-6gх90 | |
| 21 | 91Ю-8502252-А | Шайба специальная | |
| 21 | 91Ю-8502252-А | Шайба специальная | |
| 22 | 3307-8504010 | Борт передний в сборе | |
| 23 | 210385-П8 | Болт М8-6gх50 | |
| 23 | 210385-П29 | Болт М8-6gх50 ОСТ 37.001.106-75 | |
| 24 | 3307-8502010 | Борт боковой в сборе | |
| 25 | 3307-8501012 | Основание платформы в сборе | |
| 26 | 3307-8503010 | Борт задний | |
| 27 | 252155-П2 | Шайба 8Л ОСТ 37.001.115-75 | |
| 27 | 252155-П2 | Шайба 8Л ОСТ 37.001.115-75 | |
| 27 | 252155-П2 | Шайба 8Л ОСТ 37.001.115-75 | |
| 28 | 293379-П29 | Шайба 12,5 | |
| 29 | 290502-П29 | Болт М6-6gх14 | |
| 30 | 210379-П29 | Болт М8-6gх20 ОСТ 37.001.106-75 | |
| 31 | 3307-8511024 | Брызговик заднего колеса | |
| 32 | 250508-П29 | Гайка М6-6Н ОСТ 37.001.124-93 | |
| 32 | 250508-П29 | Гайка М6-6Н ОСТ 37.001.124-93 | |
| 33 | 3307-8511026 | Кронштейн брызговика | |
| 34 | 53-8511194 | Планка фартука заднего брызговика | |
| 35 | 201417-П29 | Болт М6-6gх14 ОСТ 37.001.123-96 | |
| 36 | ФП310Е | Световозвращатель | |
| 37 | 53-8511188 | Фартук | |
| 38 | 201456-П29 | Болт М8-6gх20 ОСТ 37.001.123-96 | |
| 38 | 201456-П29 | Болт М8-6gх20 ОСТ 37.001.123-96 | |
| 39 | 3307-8208042 | Пластина отражателя света | |
| 40 | 201496-П29 | Болт М10-6gх22 ОСТ 37.001.123-96 | |
| 40 | 201496-П29 | Болт М10-6gх22 ОСТ 37.001.123-96 | |
| 41 | 252136-П2 | Шайба 10 ОТ ОСТ 37.001.115-75 | |
| 41 | 252136-П2 | Шайба 10 ОТ ОСТ 37.001.115-75 | |
| 42 | 53-8500079 | Упор платформы задний левый | |
| 43 | 53-8500078 | Упор платформы задний правый | |
| 44 | 3307-8500114 | Кронштейн крепления платформы | |
| 45 | 53-8500074 | Стремянка средняя | |
| 46 | 53-27-8501074 | Подкладка стремянок крепления балок | |
| 47 | 53-8500022 | Стремянка передняя | |
| 48 | 53-8500032 | Накладка стремянки | |
| 49 | 252137-П2 | Шайба 12.ОТ ОСТ 37.001.115-75 | |
| 50 | 53-12-8501370 | Кронштейн средних поперечных балок в сборе |
Содержащиеся в справочниках-каталогах запасные части и детали не предлагаются к продаже, а носят исключительно информационный характер