Каталог запасных частей к технике: Foton-BJ1099. Трубопроводы тормозной системы
1
1
1
1
2
2
3
3
3
3
3
3
4
4
5
5
6
7
7
7
8
8
9
9
10
10
11
12
13
14
15
16
17
18
19
19
20
21
21
22
22
23
24
24
25
25
26
26
27
28
28
29
30
31
32
33
34
35
36
36
37
37
38
38
39
39
40
40
41
41
43
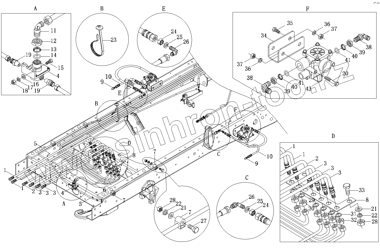
| Позиция на иллюстрации | Заводской номер детали | Название детали | |
|---|---|---|---|
| 1S109935606Н2 | 1S109935606Н2 | Тормозной трубопровод | |
| 1 | 1108935600017 | Соединительная резиновая труба | |
| 2 | 1106635600526 | Соединительная резиновая труба | |
| 3 | 1106635600527 | Соединительная резиновая труба | |
| 4 | 1104635600007 | Клапан быстрого растормаживания | |
| 5 | 1106935600011 | Трубка нейлоновая | |
| 6 | 1108935680219 | Трубка нейлоновая | |
| 7 | 1106635600093 | Скоба | |
| 8 | 1108935600020 | Соединительная плита | |
| 9 | 1104635600008 | Штуцер | |
| 10 | 1106635600521 | Резиновая трубка переднего тормоза | |
| 11 | 1106635600057 | Штуцер | |
| 12 | Q80218 | Гайка | |
| 13 | 1104635600029 | Сальник | |
| 14 | NМО18х2.65G | О-образное резиновое уплотнительное кольцо | |
| 15 | Q150В1025 | Болт с шестигранной головкой | |
| 16 | Q40110 | Плоская шайба | |
| 17 | Q40310 | Шайба пружинная | |
| 18 | Q340В10 | Гайка шестигранная тип 1 | |
| 19 | 1106635600065 | Штуцер | |
| 20 | Q150В0880 | Болт с шестигранной головкой | |
| 21 | Q40108 | Плоская шайба | |
| 22 | Q40308 | Шайба пружинная | |
| 23 | 1113835680408 | Хомут | |
| 24 | Q351В18 | Гайка шестигранная тонкая | |
| 25 | Q41218 | Стопорная шайба | |
| 26 | 1105335600003 | Соединение угловое | |
| 27 | Q150В0860 | Болт | |
| 28 | Q340В08 | Гайка шестигранная тип 1 | |
| 29 | Q41214 | Стопорная шайба | |
| 30 | Q351В14 | Гайка шестигранная тонкая | |
| 31 | Q41216 | Шайба | |
| 32 | Q351В16 | Гайка | |
| 33 | Q150В0816 | Болт с шестигранной головкой | |
| 34 | 1417135900002 | Кронштейн электромагнитного клапана (I) | |
| 35 | Q150В0840 | Болт с шестигранной головкой | |
| 36 | Q40308 | Шайба пружинная | |
| 37 | Q34008 | Гайка шестигранная тип 1 | |
| 38 | 1417035600027 | Штуцер | |
| 39 | Q351В22Т15 | Гайка шестигранная тонкая | |
| 40 | 1417035600120 | Сальник | |
| 41 | NМО20х2.65G | О-образное резиновое уплотнительное кольцо | |
| 43 | 1417135900001 | Электромагнитный клапан для АВS |
Содержащиеся в справочниках-каталогах запасные части и детали не предлагаются к продаже, а носят исключительно информационный характер