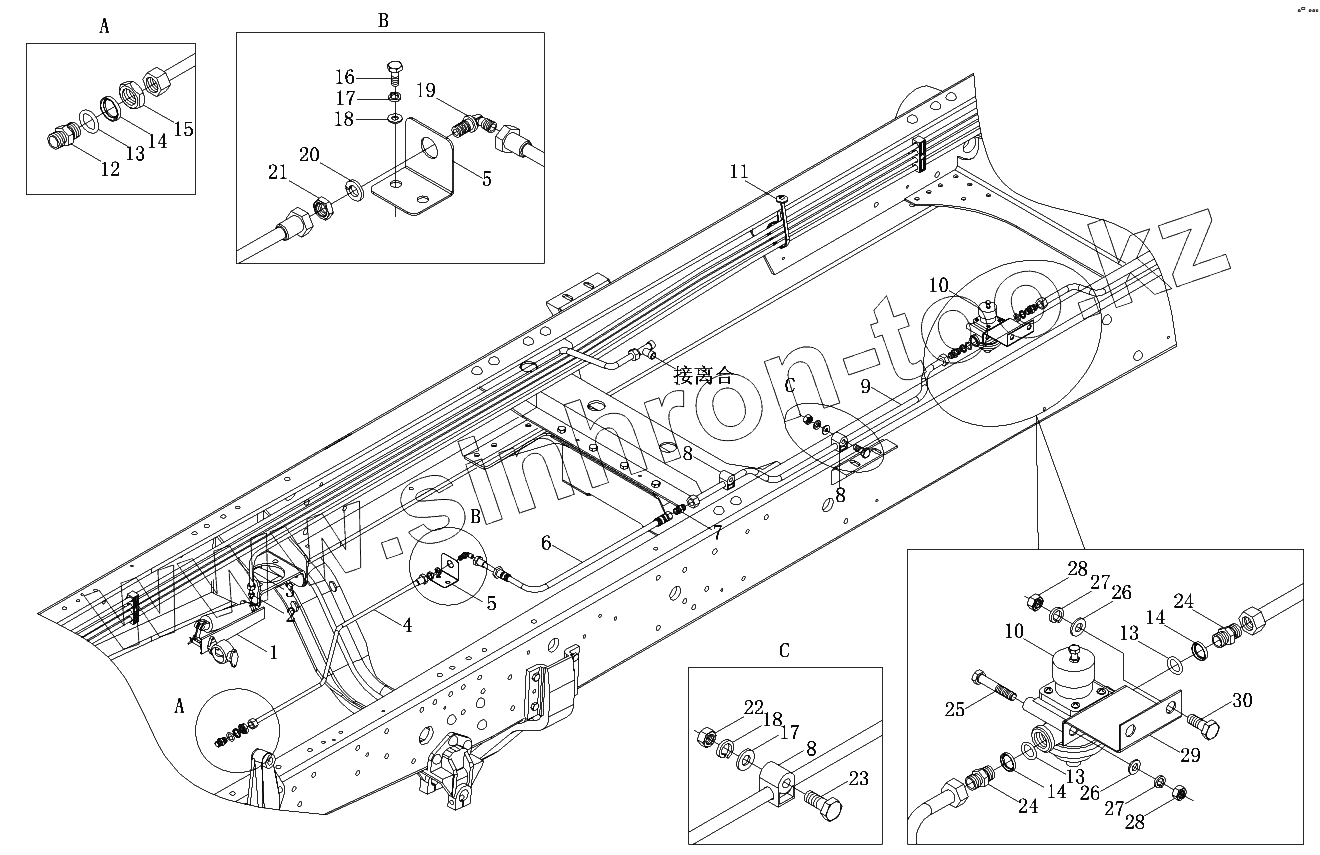
Каталог запасных частей к технике: Foton-BJ1099. Трубопроводы тормозной системы
1
2
3
4
5
5
6
7
8
8
8
9
10
10
11
12
13
13
13
14
14
14
15
16
17
17
18
18
19
20
21
22
23
24
24
25
26
26
27
27
28
28
29
30
| Позиция на иллюстрации | Заводской номер детали | Название детали | |
|---|---|---|---|
| 1 | 1106935000004 | Клапан выхлопного тормоза | |
| 2 | 1104635000006 | Штуцер | |
| 3 | 1108935680213 | Трубка нейлоновая | |
| 4 | 1108935600001 | Труба | |
| 5 | 1108935600004 | Кронштейн | |
| 6 | 1108935600012 | Соединительная резиновая труба | |
| 7 | 1104635600012 | Штуцер | |
| 8 | 1106635600093 | Скоба | |
| 9 | 1108935680206 | Стальная трубка | |
| 10 | 1106835680008 | Клапан регулировки давления | |
| 11 | 1113835680408 | Хомут | |
| 12 | 1105335600008 | Штуцер | |
| 13 | NМО20х2.65G | О-образное резиновое уплотнительное кольцо | |
| 14 | 1417035600120 | Сальник | |
| 15 | Q80222 | Гайка | |
| 16 | Q150В0820 | Болт с шестигранной головкой | |
| 17 | Q40108 | Плоская шайба | |
| 18 | Q40308 | Шайба пружинная | |
| 19 | 1104635600021 | Соединение угловое | |
| 20 | Q41218 | Стопорная шайба | |
| 21 | Q351В18 | Гайка шестигранная тонкая | |
| 22 | Q340В08 | Гайка шестигранная тип 1 | |
| 23 | Q150В0860 | Болт | |
| 24 | 1417035600174 | Штуцер | |
| 25 | Q150В1080 | Болт с шестигранной головкой | |
| 26 | Q40110 | Плоская шайба | |
| 27 | Q40310 | Шайба пружинная | |
| 28 | Q340В10 | Гайка шестигранная тип 1 | |
| 29 | 1106835680009 | Кронштейн клапана регулировки давления | |
| 30 | Q150В1030 | Болт с шестигранной головкой |
Содержащиеся в справочниках-каталогах запасные части и детали не предлагаются к продаже, а носят исключительно информационный характер