Каталог запасных частей к технике: БелАЗ-75306. Монтаж силовых проводов на шасси
1
1
2
3
4
5
6
6
6
7
7
8
9
9
10
10
10
10
10
10
10
11
11
12
12
13
13
14
14
14
14
15
15
15
15
15
15
16
16
17
18
19
20
21
21
22
22
23
23
24
25
25
25
26
26
26
26
26
26
27
28
28
29
30
31
32
33
33
33
33
33
34
34
34
35
36
36
36
37
38
39
40
41
42
43
44
45
46
46
47
48
49
50
52
53
54
55
56
57
58
59
60
61
62
62
63
64
65
66
67
68
69
70
71
72
73
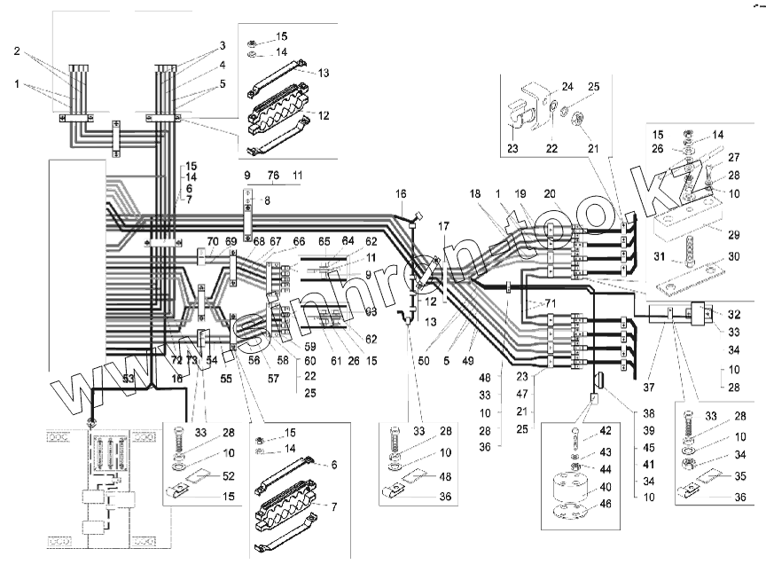
| Позиция на иллюстрации | Заводской номер детали | Название детали | |
|---|---|---|---|
| 1 | 75303-2105030 | Провод силовой | |
| 2 | 75303-2105032 | Провод силовой | |
| 3 | 75303-2105024 | Провод силовой | |
| 4 | 75303-2105026 | Провод силовой | |
| 5 | 75303-2105028 | Провод силовой | |
| 6 | 75211-2105495 | Скоба | |
| 7 | 75211-2105493-02 | Прижим | |
| 8 | 75303-2105510 | Кронштейн | |
| 9 | 250512 | Гайка | |
| 10 | 252004 | Шайба | |
| 11 | 252136 | Шайба | |
| 12 | 75211-2105494-02 | Прижим | |
| 13 | 75211-2105496 | Скоба | |
| 14 | 252157 | Шайба | |
| 15 | 250514 | Гайка | |
| 16 | 75306-2114080 | Жгут проводов | |
| 17 | 75211-2105457 | Прокладка | |
| 18 | 75303-2105022 | Провод силовой | |
| 19 | 75303-2105018 | Провод силовой | |
| 20 | 75303-2105186 | Шина | |
| 21 | 250510 | Гайка | |
| 22 | 252005 | Шайба | |
| 23 | 75211-2105468 | Прокладка | |
| 24 | 7521-8609135 | Скоба | |
| 25 | 252135 | Шайба | |
| 26 | 252007 | Шайба | |
| 27 | 220109 | Винт | |
| 28 | 252134 | Шайба | |
| 29 | 75211-2105524 | Колодка | |
| 30 | 75303-2105528 | Прокладка | |
| 31 | 340265 | Болт | |
| 32 | ЛентаПВХ | Лента ПВХ | |
| 33 | 201418 | Болт | |
| 34 | 250508 | Гайка | |
| 35 | 540А-1104519-01 | Прокладка | |
| 36 | 344618 | Кляммер | |
| 37 | 75211-2105562 | Кронштейн | |
| 38 | 540-3715054 | Втулка амортизационная | |
| 39 | А-24-21-3 | Лампа | |
| 40 | АР-93УХЛ2 | Розетка | |
| 41 | 201424 | Болт | |
| 42 | 221512 | Винт | |
| 43 | 252130 | Шайба | |
| 44 | 250458 | Гайка | |
| 45 | ФП-1-24 | Фильтр питания | |
| 46 | 500-3723242 | Прокладка | |
| 47 | 548А-8609134 | Скоба | |
| 48 | 548А-1104694-01 | Прокладка | |
| 49 | 75303-2105010 | Провод силовой | |
| 50 | 75303-2105014 | Провод силовой | |
| 51 | 344621 | Кляммер | |
| 52 | 540А-1104695 | Прокладка | |
| 53 | 75303-2105012 | Провод силовой | |
| 54 | 75303-2105102 | Провод силовой | |
| 55 | 75303-2105152 | Провод силовой | |
| 56 | 75306-2105082 | Провод силовой | |
| 57 | 75306-2105080 | Провод силовой | |
| 58 | 75306-2105084 | Провод силовой | |
| 59 | 75303-2105430 | Кронштейн | |
| 60 | 201454 | Болт | |
| 61 | 75303-2105456 | Трубка | |
| 62 | 252137 | Шайба | |
| 63 | 201542 | Болт | |
| 64 | 201538 | Болт | |
| 65 | 75303-2105171 | Трубка | |
| 66 | 75306-2105090 | Провод силовой | |
| 67 | 75306-2105086 | Провод силовой | |
| 68 | 75306-2105088 | Провод силовой | |
| 69 | 75303-2105150 | Провод силовой | |
| 70 | 75303-2105100 | Провод силовой | |
| 71 | 75303-2105016 | Провод силовой | |
| 72 | 75303-2105120 | Провод силовой | |
| 73 | 75303-2105020 | Провод силовой |
Содержащиеся в справочниках-каталогах запасные части и детали не предлагаются к продаже, а носят исключительно информационный характер