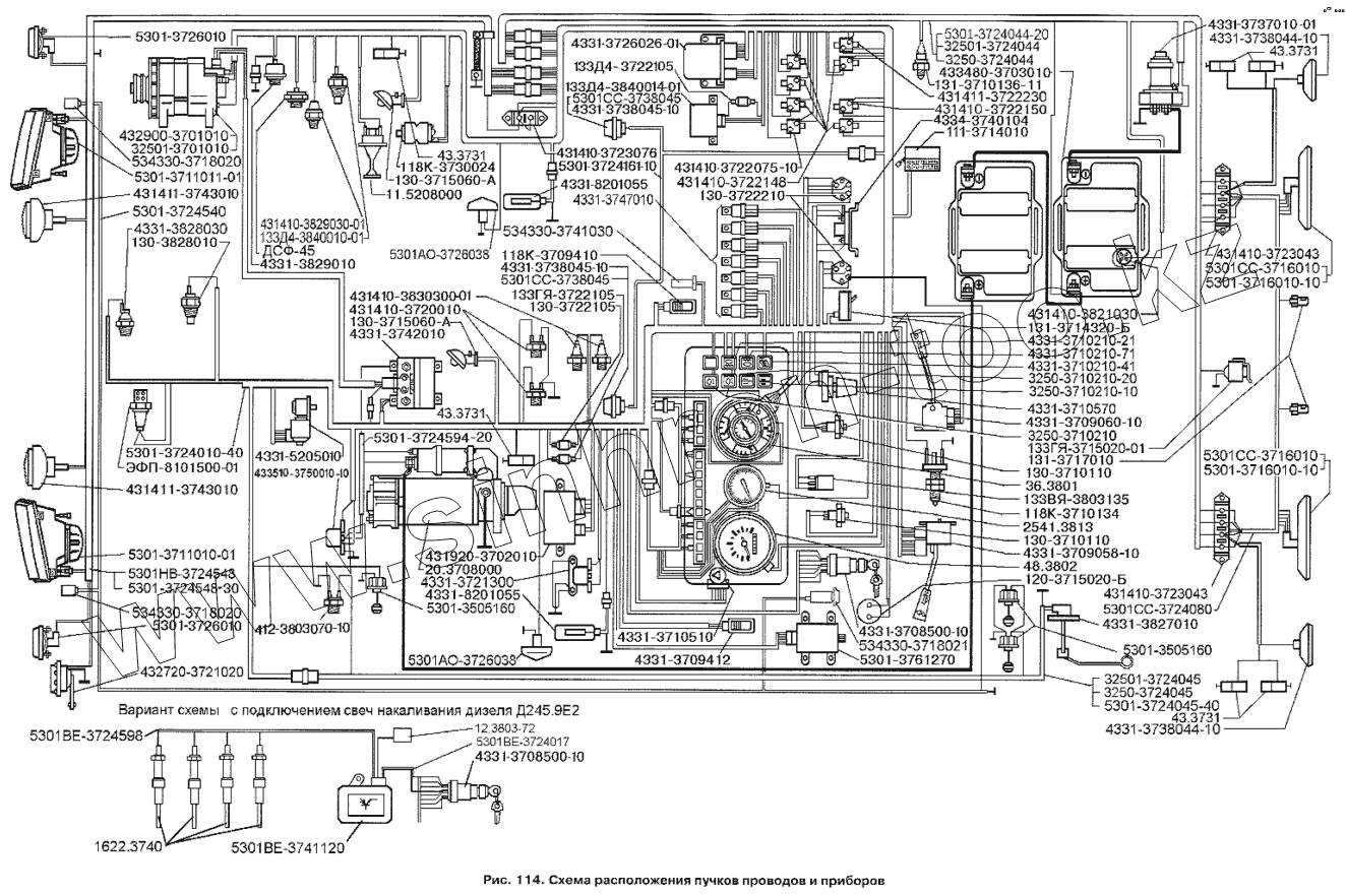
Каталог запасных частей к технике: ЗИЛ-3250. Схема расположения пучков проводов и приборов
433480-3703010
133Д4-3840014-01
4331-3742010
534330-3718021
5301ВЕ-3741120
5301-3761270
5301А0-3726038
5301А0-3726038
4331-3710510
4331-3737010-01
3250-3710210-20
412-3803070-10
4331-3710210-41
4331-3710210-41
3250-3710210
4331-3710570
3250-3710210-10
4331-3708500-10
4331-3708500-10
4331-3710210-71
4331-3710210-71
4331-3710210-21
4331-3710210-21
431410-3720010
118К-3710134
131-3710136-11
432900-3701010
32501-3701010
431410-3830300-01
431410-3830300-01
431410-3830300-01
431410-3830300-01
431410-3829030-01
4331-3828030
133Д4-3840010-01
431410-3821030
431410-3821030
4331-3829010
4331-3829010
4331-3829010
130-3828010
130-3828010
130-3828010
4331-3827010
4331-3827010
5301ВЕ-3724017
5301-3724540
3250-3724045
32501-3724045
5301-3724045-40
3250-3724044
32501-3724044
5301-3724044-20
5301СС-3724080
5301-3724161-10
5301ВЕ-3724598
5301-3724010-40
5301-3724594-20
5301НВ-3724548
5301-3724548-30
4331-3738044-10
4331-3738044-10
4331-3738044-10
4331-3738044-10
4331-3721300
130-3710110
130-3710110
36.3801
4331-3709060-10
433510-3750010-10
433510-3750010-10
130-3715060-А
130-3715060-А
4331-8201055
4331-8201055
431410-3723076
431410-3723043
431410-3723043
4331-3738045-10
4331-3738045-10
5301СС-3738045
5301СС-3738045
4331-3709412
4331-3709412
118К-3709410
4331-3709058-10
111-3714010
111-3714010
111-3714010
431410-3722148
431410-3722150
431410-3722150
431411-3722230
431411-3722230
130-3722210
133ГЯ-3722105
133Д4-3722105
130-3722105
431410-3722075-10
431410-3722075-10
133ВЯ-3803135
4331-3726026-01
431920-3702010
534330-3741030
4331-3747010
120-3715020-Б
133ГЯ-3715020-01
1622.3740
432720-3721020
12.3803-72
СА-01
20.3708000
4331-5205010
4331-5205010
2541.3813
4334-3740104
5301-3726010
5301-3726010
5301-3505160
5301-3505160
5301-3711011-01
5301-3711010-01
431411-3743010
431411-3743010
43.3731
43.3731
43.3731
43.3731
5301-3716010-10
5301-3716010-10
5301СС-3716010
5301СС-3716010
5301-3716010-10
5301-3716010-10
5301-3716010-10
5301-3716010-10
131-3714320-Б
131-3714320-Б
131-3717010
131-3717010
11.5208000
11.5208000
118К-3730024
534330-3718020
534330-3718020
ЭФП-8101500-01
ДСФ-45
| Позиция на иллюстрации | Заводской номер детали | Название детали | |
|---|---|---|---|
| 433480-3703010 | 433480-3703010 | Батарея аккумуляторная 6СТ-110А3 | |
| 5301-3803010 | 5301-3803010 | Блок контрольных ламп в сборе 2302.3803010-21 | |
| 133Д4-3840014-01 | 133Д4-3840014-01 | Блок сигнализатора уровня охлаждающей жидкости СУ1-12 или СКУ1, МС-37.4003 | |
| 4331-3742010 | 4331-3742010 | Блок трансформаторновыпрямительный 1212.3759 | |
| 4331-3742010-01 | 4331-3742010-01 | Блок трансформаторно-выпрямительный 3797.002 | |
| 534330-3718021 | 534330-3718021 | Блок управления корректора фар БУК 21 | |
| 5301ВЕ-3741120 | 5301ВЕ-3741120 | Блок управления свечами накаливания | |
| 5301-3761270 | 5301-3761270 | Блок управления стеклоочистителем и омывателем БСУ1- МС или 92. 3761 | |
| 5301А0-3726038 | 5301А0-3726038 | Боковой указатель поворота | |
| 4331-3710510 | 4331-3710510 | Выключатель аварийной световой сигнализации | |
| 4331-3710510-01 | 4331-3710510-01 | Выключатель аварийной световой сигнализации 24.3710, или 245.3710 или 249.3710 или 245.3710-06 | |
| 4331-3710510-02 | 4331-3710510-02 | Выключатель аварийной световой сигнализации 24.3710 или 245.3710 или 249.3710 или 245.3710-09 | |
| 4331-3710510-03 | 4331-3710510-03 | Выключатель аварийной световой сигнализации 24.3710, или 245.3710 или 249.3710 или 245.3710-06 | |
| 4331-3737010-01 | 4331-3737010-01 | Выключатель аккумуляторных батарей дистанционный 1312.3737 | |
| 3250-3710210-21 | 3250-3710210-21 | Выключатель закрывания створок двери | |
| 3250-3710210-20 | 3250-3710210-20 | Выключатель закрывания створок двери | |
| 3250-3710210-21 | 3250-3710210-21 | Выключатель закрывания створок двери | |
| 412-3803070-10 | 412-3803070-10 | Выключатель контрольных ламп | |
| 4331-3710210-41 | 4331-3710210-41 | Выключатель нагревателя зеркала заднего вида 3832.3710-02.23 | |
| 4331-3710210-41 | 4331-3710210-41 | Выключатель нагревателя зеркала заднего вида 3832.3710-02.23 | |
| 3250-3710210 | 3250-3710210 | Выключатель освещения салона 3832.3710-02.09 | |
| 4331-3710570 | 4331-3710570 | Выключатель освещения щитка приборов ВК416Б-01 | |
| 3250-3710210-11 | 3250-3710210-11 | Выключатель открывания створок двери | |
| 3250-3710210-10 | 3250-3710210-10 | Выключатель открывания створок двери | |
| 4331-3708500-10 | 4331-3708500-10 | Выключатель приборов и стартера 20.3704 | |
| 4331-3710210-71 | 4331-3710210-71 | Выключатель противотуманного заднего фонаря 3832.3710-02.04 | |
| 4331-3710210-71 | 4331-3710210-71 | Выключатель противотуманного заднего фонаря 3832.3710-02.04 | |
| 4331-3710210-21 | 4331-3710210-21 | Выключатель противотуманных фар 3832.3710-02.03 | |
| 4331-3710210-21 | 4331-3710210-21 | Выключатель противотуманных фар 3832.3710-02.03 | |
| 431410-3720010-01 | 431410-3720010-01 | Выключатель сигналов торможения ММ125Д или 2802.3829 | |
| 431410-3720010-01 | 431410-3720010-01 | Выключатель сигналов торможения ММ125Д или 2802.3829 | |
| 431410-3720010-01 | 431410-3720010-01 | Выключатель сигналов торможения ММ125Д или 2802.3829 | |
| 431410-3720010-01 | 431410-3720010-01 | Выключатель сигналов торможения ММ125Д или 2802.3829 | |
| 431410-3720010 | 431410-3720010 | Выключатель сигналов торможения ММ125Д или 2802.3829 в сборе | |
| 118К-3710134 | 118К-3710134 | Выключатель стояночного тормоза ВК412 | |
| 131-3710136-13 | 131-3710136-13 | Выключатель фонарей заднего хода 5217.3710 или В3Х-1 | |
| 131-3710136-11 | 131-3710136-11 | Выключатель фонарей заднего хода ВК-403 или 52.3710 | |
| 131-3710136-12 | 131-3710136-12 | Выключатель фонарей заднего хода 5217.3710 или В3Х-1 | |
| 432900-3701010 | 432900-3701010 | Генератор 2022.3771 | |
| 32501-3701010 | 32501-3701010 | Генератор 3882-3701 | |
| 431410-3830300-01 | 431410-3830300-01 | Датчик аварийного давления воздуха в сборе | |
| 431410-3830300-01 | 431410-3830300-01 | Датчик аварийного давления воздуха в сборе | |
| 431410-3830300-01 | 431410-3830300-01 | Датчик аварийного давления воздуха в сборе | |
| 431410-3830300-01 | 431410-3830300-01 | Датчик аварийного давления воздуха в сборе | |
| 431410-3829030-01 | 431410-3829030-01 | Датчик падения давления масла ММ111Д | |
| 431410-3829030-01 | 431410-3829030-01 | Датчик падения давления масла ММ111Д | |
| 431410-3829030-01 | 431410-3829030-01 | Датчик падения давления масла ММ111Д | |
| 431410-3829030-01 | 431410-3829030-01 | Датчик падения давления масла ММ111Д | |
| 13.3839 | 13.3839 | Датчик сигнализатора засорения воздушного фильтра | |
| 4331-3828030 | 4331-3828030 | Датчик сигнализатора перегрева охлаждающий жидкости ТМ111 | |
| 133Д4-3840010-01 | 133Д4-3840010-01 | Датчик уровня охлаждающей жидкости | |
| 431410-3821030 | 431410-3821030 | Датчик температуры электролита 1332.3842 | |
| 431410-3821030 | 431410-3821030 | Датчик температуры электролита 1332.3842 | |
| 4331-3829010 | 4331-3829010 | Датчик указателя давления масла ММ355 | |
| 4331-3829010 | 4331-3829010 | Датчик указателя давления масла ММ355 | |
| 4331-3829010 | 4331-3829010 | Датчик указателя давления масла ММ355 | |
| 130-3828010 | 130-3828010 | Датчик указателя температуры охлаждающей жидкости ТМ100-А | |
| 130-3828010 | 130-3828010 | Датчик указателя температуры охлаждающей жидкости ТМ100-А | |
| 130-3828010 | 130-3828010 | Датчик указателя температуры охлаждающей жидкости ТМ100-А | |
| 4331-3827010 | 4331-3827010 | Датчик указателя уровня топлива 5302.3827 | |
| 4331-3827010 | 4331-3827010 | Датчик указателя уровня топлива 5302.3827 | |
| 5301ВЕ-3724017 | 5301ВЕ-3724017 | Жгут проводов блока управления свечами накаливания | |
| 5301-3724540 | 5301-3724540 | Жгут проводов блока электрокорректора фар | |
| 3250-3724045 | 3250-3724045 | Жгут проводов задний левый | |
| 32501-3724045 | 32501-3724045 | Жгут проводов задний левый | |
| 5301-3724045-40 | 5301-3724045-40 | Жгут проводов задний левый | |
| 3250-3724044 | 3250-3724044 | Жгут проводов задний | |
| 32501-3724044 | 32501-3724044 | Жгут проводов задний правый | |
| 5301-3724044-20 | 5301-3724044-20 | Жгут проводов задний правый | |
| 5301СС-3724080 | 5301СС-3724080 | Жгут проводив задних фонарей | |
| 5301-3724161-10 | 5301-3724161-10 | Жгут проводов передних габаритных фонарей | |
| 5301ВЕ-3724598 | 5301ВЕ-3724598 | Жгут проводов свечей накаливания | |
| 5301-3724010-40 | 5301-3724010-40 | Жгут проводов средний | |
| 5301-3724594-20 | 5301-3724594-20 | Жгут проводов стартера | |
| 5301НВ-3724548 | 5301НВ-3724548 | Жгут проводов фар и передних указателей поворота | |
| 5301-3724548-30 | 5301-3724548-30 | Жгут проводов фар и передних указателей поворота | |
| 4331-3738044-10 | 4331-3738044-10 | Фонарь габаритный задний в сборе 35.3731 | |
| 4331-3738044-10 | 4331-3738044-10 | Фонарь габаритный задний в сборе 35.3731 | |
| 4331-3721300 | 4331-3721300 | Зуммер РС508 или 733.3747-01 | |
| 130-3710110 | 130-3710110 | Выключатель типа 11.3704 кнопочный | |
| ПК-01 | ПК-01 | Комбинация приборов | |
| 36.3801 | 36.3801 | Комбинация приборов в сборе | |
| 4331-3709060-10 | 4331-3709060-10 | Комбинированный переключатель света 1112.3769 | |
| 433510-3750010-10 | 433510-3750010-10 | Контактор пусковой 59.3747 | |
| 433510-3750010-10 | 433510-3750010-10 | Контактор пусковой 59.3747 | |
| 130-3715060-А | 130-3715060-А | Лампа подкапотная ПД308А в сборе | |
| 130-3715060-А | 130-3715060-А | Лампа подкапотная ПД308А в сборе | |
| 4331-8201055 | 4331-8201055 | Нагреватель зеркала 20.3741 | |
| 431410-3723076 | 431410-3723076 | Панель соединительная 2-клеммная 14.3723 | |
| 431410-3723032 | 431410-3723032 | Панель соединительная 3-клеммная 15.3723 | |
| 431410-3723043 | 431410-3723043 | Панель соединительная 4-х клеммовая в сборе | |
| 4331-3738045-10 | 4331-3738045-10 | Фонарь габаритный передний в сборе 36.3731 | |
| 5301СС-3738045 | 5301СС-3738045 | Передние контурные фонари | |
| 4331-3709412 | 4331-3709412 | Переключатель габаритных огней и фар головного света П147-04.04 | |
| 4331-3709412 | 4331-3709412 | Переключатель габаритных огней и фар головного света П147-04.04 | |
| 118К-3709410 | 118К-3709410 | Переключатель электродвигателя отопителя | |
| 4331-3709058-10 | 4331-3709058-10 | Переключатель стеклоочистителя 9912.3709 | |
| 111-3714010 | 111-3714010 | Плафон кабины в сборе 111.3714 | |
| 111-3714010 | 111-3714010 | Плафон кабины в сборе 111.3714 | |
| 111-3714010 | 111-3714010 | Плафон кабины в сборе 111.3714 | |
| 431410-3722148 | 431410-3722148 | Предохранитель 10 А, ПР310 или 292.3722 | |
| 431410-3722150 | 431410-3722150 | Предохранитель термобиметаллический кнопочный 15 А, 293.3722 или ПР315 | |
| 431410-3722150 | 431410-3722150 | Предохранитель термобиметаллический кнопочный 15 А, 293.3722 или ПР315 | |
| 431411-3722230 | 431411-3722230 | Предохранитель 30А, ПР3 или 291. 3722 | |
| 431411-3722230 | 431411-3722230 | Предохранитель 30А, ПР3 или 291. 3722 | |
| 130-3722210 | 130-3722210 | Предохранитель 7,5А | |
| 133ГЯ-3722105 | 133ГЯ-3722105 | Предохранитель плавкий ПР119Б-01 10А | |
| 133Д4-3722105 | 133Д4-3722105 | Предохранитель плавкий 2А, ПРП8Б-01 | |
| 130-3722105 | 130-3722105 | Предохранитель 6А | |
| 431410-3722075-10 | 431410-3722075-10 | Предохранитель термобиметаллический кнопочный 15 А, 293.3722 или ПР315 | |
| 431410-3722075-10 | 431410-3722075-10 | Предохранитель термобиметаллический кнопочный 15 А, 293.3722 или ПР315 | |
| 19.3759 | 19.3759 | Преобразователь напряжения | |
| 133ВЯ-3803135 | 133ВЯ-3803135 | Прерыватель контрольной лампы стояночного тормоза типа РС492 в сборе | |
| 133ВЯ-3803135 | 133ВЯ-3803135 | Прерыватель контрольной лампы стояночного тормоза типа РС492 в сборе | |
| 4331-3726026-01 | 4331-3726026-01 | Реле-прерыватель указателей поворота РС950-П | |
| 431920-3702010-02 | 431920-3702010-02 | Регулятор напряжения 42.3702 или 206.3702 или 207.3702 | |
| 431920-3702010-02 | 431920-3702010-02 | Регулятор напряжения 42.3702 или 206.3702 или 207.3702 | |
| 431920-3702010-03 | 431920-3702010-03 | Регулятор напряжения 42.3702 или 206.3702 или 207.3702 | |
| 431920-3702010 | 431920-3702010 | Регулятор напряжения 42.3702 или 206.3702 или 207.3702 | |
| 431920-3702010-03 | 431920-3702010-03 | Регулятор напряжения 42.3702 или 206.3702 или 207.3702 | |
| 534330-3741030 | 534330-3741030 | Регулятор оборотов электродвигателя отопителя РОВ2.МС | |
| 4331-3747010-01 | 4331-3747010-01 | Реле универсальное 111.3747 или 90.3747 | |
| 4331-3747010-21 | 4331-3747010-21 | Реле универсальное 111.3747-10 или 90.3747-22 | |
| 4331-3747010 | 4331-3747010 | Реле универсальное 111.3747 или 90.3747 | |
| 4331-3747010-20 | 4331-3747010-20 | Реле автоматического включения стартера 111.3747-10 или 90.3747-22 | |
| 120-3715020-Б | 120-3715020-Б | Розетка штепсельная переносной лампы 47-К в сборе | |
| 131-3715020-02 | 131-3715020-02 | Розетка штепсельной переносной лампы ПС400 | |
| 133ГЯ-3715020-01 | 133ГЯ-3715020-01 | Розетка штепсельная переносной лампы ПС400 | |
| 1622.3740 | 1622.3740 | Свеча накаливания | |
| 432720-3721020 | 432720-3721020 | Сигнал звуковой электрический СЗ-3В или 20.3721-01 | |
| 133ГЯ-3721020 | 133ГЯ-3721020 | Сигнал звуковой электрический СЗ-3В или 20.3721-01 | |
| 12.3803-72 | 12.3803-72 | Сигнализатор включения ЭФП | |
| СА-01 | СА-01 | Спидометр | |
| 20.3708000 | 20.3708000 | Стартер 20.3708 или СТ142К | |
| СТ2303Р-3708000 | СТ2303Р-3708000 | Стартер | |
| 4331-5205010 | 4331-5205010 | Стеклоочиститель 35.5205 | |
| 4331-5205010 | 4331-5205010 | Стеклоочиститель 35.5205 | |
| 3250-3802020 | 3250-3802020 | Тахограф 1318.2700.0002103 | |
| ТЭ-01 | ТЭ-01 | Тахометр | |
| 2541.3813 | 2541.3813 | Тахометр электронный в сборе | |
| 4334-3740104 | 4334-3740104 | Термореле электрофакельного подогревателя 12.3741 | |
| 5301-3726010 | 5301-3726010 | Указатель поворота передний | |
| 5301-3505160 | 5301-3505160 | Устройство по контролю уровня тормозной жидкости в сборе | |
| 5301-3711011-01 | 5301-3711011-01 | Фара головного света левая 6012.3711 или 681.3711 в сборе | |
| 5301-3711010-01 | 5301-3711010-01 | Фара головного света правая 6002.3711 или 68.3711 | |
| 5301-3711010-02 | 5301-3711010-02 | Фара головного света правая 6002.3711 или 68.3711 | |
| 5301-3711010-02 | 5301-3711010-02 | Фара головного света правая 6002.3711 или 68.3711 | |
| 5301-3711010-02 | 5301-3711010-02 | Фара головного света правая 6002.3711 или 68.3711 | |
| 431411-3743010 | 431411-3743010 | Фара противотуманная в сборе ФП52АБ-0 | |
| 43.3731 | 43.3731 | Фонари маркерные | |
| 43.3731-01 | 43.3731-01 | Фонари маркерные | |
| 49.3731-06 | 49.3731-06 | Фонари маркерные | |
| 5301-3716010-10 | 5301-3716010-10 | Фонарь задний типа | |
| 5301СС-3716010 | 5301СС-3716010 | Фонарь задний типа | |
| 5301-3716010-10 | 5301-3716010-10 | Фонарь задний типа | |
| 5301-3716010-10 | 5301-3716010-10 | Фонарь задний типа | |
| 131-3714320-Б | 131-3714320-Б | Фонарь кабины ПК142 | |
| 131-3714320-Б | 131-3714320-Б | Фонарь кабины ПК142 | |
| 131-3717010 | 131-3717010 | Фонарь освещения номерного знака типа ФП134 в сборе | |
| 131-3717010 | 131-3717010 | Фонарь освещения номерного знака типа ФП134 в сборе | |
| 11.5208000 | 11.5208000 | Электродвигатель насоса омывателя ветрового стекла | |
| 11.5208000 | 11.5208000 | Электродвигатель насоса омывателя ветрового стекла | |
| 118К-3730024 | 118К-3730024 | Электродвигатель отопителя МЭ272-Б в сборе | |
| 534330-3718020 | 534330-3718020 | Электропривод корректора фар ЭПК 022 | |
| ЭФП-8101500-01 | ЭФП-8101500-01 | Электрофакельный подогреватель ЭФП-8101 | |
| ДСФ-45 | ДСФ-45 | Датчик сигнализатора засорения воздушного фильтра |
Содержащиеся в справочниках-каталогах запасные части и детали не предлагаются к продаже, а носят исключительно информационный характер