Каталог запасных частей к технике: ПАЗ-4234. Электрооборудование автобуса
1
2
3
4
5
5
6
6
6
7
7
8
9
12
13
14
15
15
16
17
18
19
20
21
22
23
31
32
34
41
42
42
44
45
46
52
52
78
78
88
| Позиция на иллюстрации | Заводской номер детали | Название детали | |
|---|---|---|---|
| ВК418Д | ВК418Д | Выключатель фонарей заднего хода | |
| ВК409 | ВК409 | Датчик контроля аварийной двери | |
| 2202.3803-31-А | 2202.3803-31-А | Контрольная лампа включения свечей накаливания | |
| А12-1,2 | А12-1,2 | Лампа | |
| А12-21-3 | А12-21-3 | Лампа переднего указателя поворота | |
| А12-5 | А12-5 | Лампа | |
| АКГ60+55 | АКГ60+55 | Лампа | |
| АС12-5 | АС12-5 | Лампа фонаря | |
| 82.3709-01.29 | 82.3709-01.29 | Переключатель управления свечами накаливания | |
| ПР119-Б-01 | ПР119-Б-01 | Предохранитель подогревателя | |
| МЭ255 | МЭ255 | Электродвигатель отопителя водителя | |
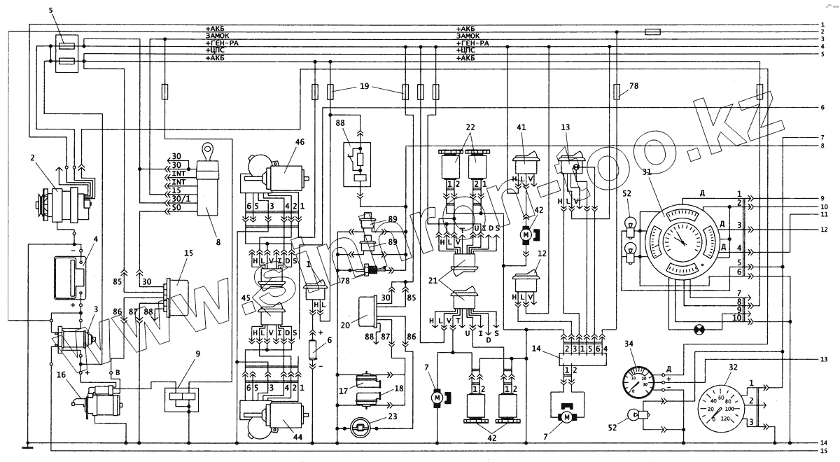
| 1 | 77.3709-02.30 | Выключатель стеклоомывателя | |
| 2 | 28.3771 | Генератор переменного тока со встроенным ИРН | |
| 3 | 1302.3737 | Выключатель аккумуляторной батареи | |
| 4 | 6СТ132 | Батарея аккумуляторная | |
| 5 | 11.3722 | Блок предохранителей | |
| 5 | 05.3722.001 | Блок предохранителей | |
| 6 | 1122.5208 | Стеклоомыватель | |
| 6 | 122.5208 | Стеклоомыватель | |
| 7 | 351.3730 | Насос отопителя | |
| 8 | 1902.3704 | Выключатель зажигания | |
| 9 | ЭМ19 | Клапан электромагнитный | |
| 10 | 82.3709-01.24 | Выключатель осушителя воздуха в тормозной системе | |
| 11 | 2202.3803-19-А | Контрольная лампа резерва топлива | |
| 12 | 82.3709-01.00 | Выключатель циркуляционного насоса | |
| 13 | 82.3709-01.23 | Выключатель подогрева | |
| 14 | 151.8106 | Подогреватель с блоком управления 311.3761 | |
| 15 | 90.3747 | Реле стартера | |
| 15 | 738.3747 | Реле стартера | |
| 16 | 24.3708 | Стартер | |
| 17 | С303Д | Сигнал звуковой высокого тона | |
| 18 | С302Д | Сигнал звуковой низкого тона | |
| 19 | ПР112 | Блок плавких предохранителей | |
| 20 | 90.3747 | Реле стартера | |
| 21 | 82.3709-04.09 | Переключатель электродвигателя отопителя салона | |
| 22 | МЭ255 | Электродвигатель отопителя водителя | |
| 23 | Кнопочный выключатель звуковых сигналов | Кнопочный выключатель звуковых сигналов | |
| 24 | 77.3709-02.19 | Переключатель управления двери | |
| 24 | 77.3709-04.19 | Выключатель управления приводом двери | |
| 25 | 2202.3803-03-А | Контрольная лампа неисправности пневмопривода пассажирской двери | |
| 26 | П150-07.25 | Аварийный выключатель | |
| 27 | 2202.3803-01-А | Контрольная лампа падения давления воздуха 1 контура | |
| 28 | 2202.3803-02-А | Контрольная лампа падения давления воздуха 2 контура | |
| 29 | 2702.3829 | Датчик аварийного давления воздуха | |
| 29 | ММ124-Д | Датчик аварийного давления воздуха | |
| 30 | 2202.3803-22-А | Контрольная лампа перегрева охлаждающей жидкости | |
| 31 | 36.3801 | Комбинация приборов | |
| 32 | 48.3802 | Спидометр | |
| 33 | 2202.3803-23-А | Контрольная лампа аварийного давления масла | |
| 34 | 3691.3813 | Тахометр | |
| 35 | 2202.3802-20-А | Контрольная лампа засоренности воздушного фильтра | |
| 36 | 5402.3827 | Датчик уровня топлива | |
| 37 | ТМ111 | Датчик аварийной температуры охлаждающей жидкости | |
| 38 | ТМ100-В | Датчик указателя температуры охлаждающей жидкости | |
| 39 | 2602.3829 | Датчик аварийного давления масла | |
| 39 | ММ111 | Датчик аварийного давления масла | |
| 40 | 18.3829 | Датчик указателя давления масла | |
| 41 | 82.3709-01.14 | Переключатель вентилятора обдува ветрового стекла | |
| 42 | 52.3780 | Электродвигатель | |
| 42 | 49.3780 | Электродвигатель вентилятора обдува лобовых стекол | |
| 43 | 2812.3710-01 | Выключатель экстренного открывания двери | |
| 44 | 56.5205 | Стеклоочиститель левый | |
| 45 | 82.3709-08.16 | Переключатель стеклоочистителей | |
| 46 | 57.5205 | Стеклоочиститель правый | |
| 47 | 82.3709-01.07 | Выключатель противотуманных фонарей | |
| 48 | 82.3709-01.13 | Выключатель плафона водителя | |
| 49 | 82.3709-01.12 | Выключатель плафонов освещения салона | |
| 50 | 2902.3714 | Плафон освещения салона | |
| 51 | 2802.3714 | Плафон освещения места водителя | |
| 52 | АМН12-3 | Лампа освещения приборов | |
| 53 | ПД308-Б | Лампа подкапотная | |
| 54 | ПС500 | Розетка | |
| 55 | ПФ116 | Передний габаритный фонарь | |
| 56 | ПФ116 | Передний габаритный фонарь | |
| 57 | 62.3711-01 | Фара головного света | |
| 58 | П53-АБ | Переключатель головного света | |
| 59 | 2202.3803-28-А | Контрольная лампа включения дальнего света головных фар | |
| 60 | 581.3710 | Центральный переключатель света | |
| 61 | ФП116 | Фонарь габаритный задний верхний | |
| 62 | ФП116 | Фонарь габаритный задний верхний | |
| 63 | 15.3717 | Фонарь освещения номерного знака | |
| 64 | МД05 | Механизм управления пассажирской дверью | |
| 65 | 2452.3716 | Фонарь задний противотуманный | |
| 66 | 43.3731 | Фонарь боковой габаритный (маркерный) | |
| 66 | 43.3731-01 | Фонарь боковой габаритный (маркерный) | |
| 67 | 2602.3714-01 | Плафон освещения посадочной площадки | |
| 68 | 2202.3803-07-А | Контрольная лампа включения сигнала поворота | |
| 69 | УП115 | Передний указатель поворота | |
| 70 | 141.3726 | Повторитель указателя поворота боковой | |
| 71 | РС950К | Реле указателей поворотов | |
| 72 | П105А-03 | Переключатель указателей поворотов | |
| 72 | П110В-04 | Переключатель указателей поворотов | |
| 73 | 249.3710-01 | Выключатель аварийной сигнализации | |
| 73 | 245.3710-02 | Выключатель аварийной сигнализации | |
| 74 | 2202.3803-04-А | Контрольная лампа падения давления воздуха 4 контура | |
| 75 | 2202.3803-05-А | Контрольная лампа включения режима торможения | |
| 76 | ВК418А | Выключатель фонарей заднего хода | |
| 77 | 2802.3829 | Датчик включения сигналов торможения | |
| 77 | ММ125-Д | Датчик включения сигналов торможения | |
| 78 | ПР117-01 | Предохранитель подогревателя | |
| 79 | УП115-Б | Задний указатель поворота | |
| 80 | ФП115 | Фонарь задний сигнала «стоп» | |
| 81 | ФП117 | Фонарь заднего хода | |
| 82 | 90.3747 | Реле стартера | |
| 83 | 90.3747 | Реле стартера | |
| 84 | 738.3747 | Реле стартера | |
| 85 | ЭКТ12 | Электромагнитный топливный клапан | |
| 86 | LА-6277 | Воздухоосушитель в сборе | |
| 87 | 131.3839 | Датчик засоренности воздушного фильтра | |
| 87 | ДСФ-65 | Датчик засоренности воздушного фильтра | |
| 88 | 733.3747 | Сигнализатор шумовой | |
| 89 | 2812.3710-03 | Выключатель сигнала водителю | |
| 90 | 2202.3803-53 | Контрольная лампа АБС | |
| 91 | 77.3709-02.00 | Переключатель контроля АБС | |
| 92 | 0 486 104 019 | Блок управления АБС | |
| 93 | 0 486 201 010 | Модулятор АБС | |
| 94 | 0 486 001 030 | Датчик АБС | |
| 94 | 0 486 001 016 | Датчик АБС |
Содержащиеся в справочниках-каталогах запасные части и детали не предлагаются к продаже, а носят исключительно информационный характер