Каталог запасных частей к технике: Нефтекамский автозавод 52994-40-42 (надстройка). 52994-3718076 – Установка радиооборудования
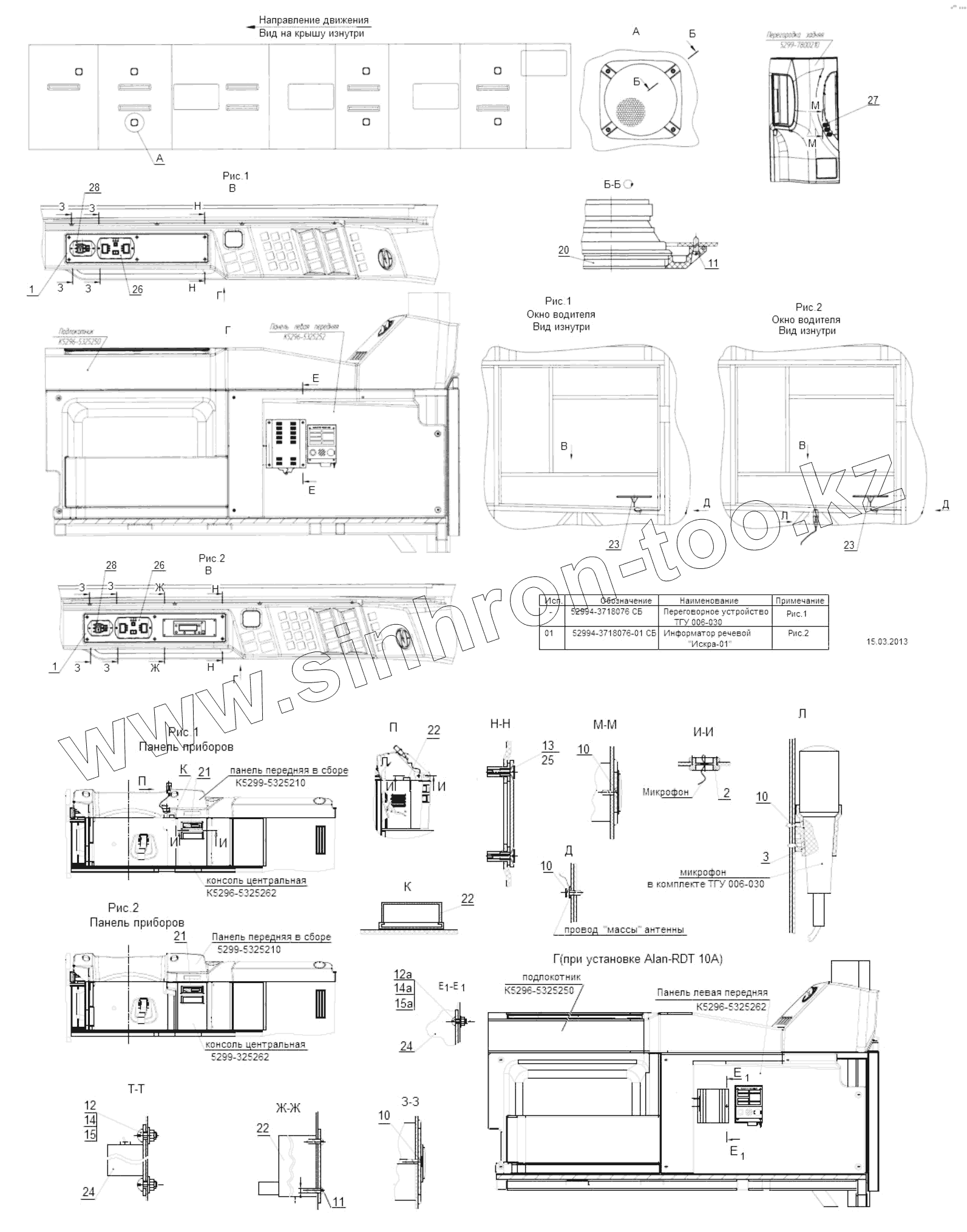
1
1
2
3
10
10
10
10
11
11
12
12а
13
14
14а
15
15а
20
21
21
22
22
22
23
23
24
24
24а
25
26
26
27
28
28
| Позиция на иллюстрации | Заводской номер детали | Название детали | |
|---|---|---|---|
| 1 | 5299-3718456-06 | Пластина | |
| 2 | 4947-3724048 | Втулка уплотнительная | |
| 3 | 3964-7907016 | Держатель микрофона | |
| 10 | ВинтST3,5х19-07 | Винт самонарезающий стержня ST 3,5х19 - 07 | |
| 11 | 1/76799/01 | Винт | |
| 12 | 1/32760/01 | Винт | |
| 12а | 1/32721/01 | Винт ТС с крестообразным шлицем и цилиндрической головкой М4-6gх14 | |
| 13 | 1/32973/01 | Винт М4х10 | |
| 14 | 1/58962/11 | Гайка М6-6Н | |
| 14а | 1/07940/11 | Гайка | |
| 15 | 1/26444/01 | Шайба 6х15х1 | |
| 15а | 1/05192/01 | Шайба | |
| 20 | FLS-52 | Акустическая система | |
| 21 | MAR707-U | Ресивер | |
| 22 | ТГУ006-030 | Переговорное устройство | |
| 23 | MANТ-1 | Антенна активная | |
| 24 | ПНИ27/12-2 | Преобразователь напряжения импульсный ПНИ 27/12-2 | |
| 24а | Alan-RDT10А | Преобразователь напряжения | |
| 25 | 0371104006 | Заклепка гаечная М4 с насечкой | |
| 26 | ШДСК566100000 | Блок управления АВЛ водительский | |
| 27 | ШДСК566200000 | Блок кнопок управления АВЛ пассажирский | |
| 28 | ШДСК566300000 | Блок управления люком мотоотсека | |
| 30 | MAR707-U | Ресивер |
Содержащиеся в справочниках-каталогах запасные части и детали не предлагаются к продаже, а носят исключительно информационный характер