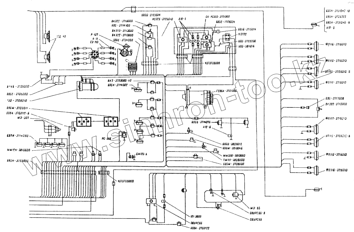
Каталог запасных частей к технике: ЛАЗ 699Р. Схема электрооборудования
А11
695Н-3714002
695Е-3714075
697Н-3714090
А12-1
А12-5
А12-6
695Н-3726222
4573739009
4573739009
Р-137
СК-РС523-3721000
695Е-3708034
ОВУ-РС65
РС525-3726010
695Е-3715014
695Е-3705300
СЭ110
130-3708010
695Н-3731042-10
695-3722200
ФП116-3716010
ФП116-3716010
ФП116-3716010
ФП117-3716010
ФП117-3716010
695-3717008
ФП115-3716010
ФП115-3716010
УП115-3726010-Б
УП115-3726010-Б
695-3811016
МЭ-65
РС-336
111.3722
ММ358-3810000
699А-3703112-Б
ВК57Э-3710000
699А-3703122
695-3714100
ВК2-3720000-А2
ВК322-3710000
ВК322-3710000
ВК322-3710000
695М-3708500
ММ124-3810600
Г286А-3701000
1ГД-40
695М-3810046
ТМ111-3808000
ОВУ РС66
695М-3703011
ОВУ РС66-В
МЭ-307
695Б-3808012
БМ125-А
Б114Б-3705000
695Е-3734000
А12-5
А12-1
121.3803
А12-6
695Н-3723035
695Б-3723034
695Н-3731046-Б
| Позиция на иллюстрации | Заводской номер детали | Название детали | |
|---|---|---|---|
| А11 | А11 | Свеча зажигания | |
| 695Н-3714002 | 695Н-3714002 | Плафон освещения подножки в сборе | |
| 695Е-3714075 | 695Е-3714075 | Плафон моторного отсека ПК201-А | |
| 697Н-3714090 | 697Н-3714090 | Плафон ночного света | |
| А12-1 | А12-1 | Лампа контрольная | |
| А12-5 | А12-5 | Лампа габаритного фонаря | |
| А12-6 | А12-6 | Лампа освещения радиаторного отсека | |
| 695Н-3726222 | 695Н-3726222 | Прокладка фонаря | |
| 4573739009 | 4573739009 | Разъем штекерный шестиконтактный | |
| Р-137 | Р-137 | Распределитель зажигания | |
| СК-РС523-3721000 | СК-РС523-3721000 | Реле включения противотуманных фар, габаритных фонарей и системы аварийного выключения РС523 | |
| 695Е-3708034 | 695Е-3708034 | Реле системы аварийного выключателя и включения аккумуляторной батареи РС-502 | |
| ОВУ-РС65 | ОВУ-РС65 | Реле перегрева | |
| РС525-3726010 | РС525-3726010 | Реле контроля тормозной системы РС525 | |
| 695Е-3715014 | 695Е-3715014 | Розетка переносной лампы ШР-51 | |
| ОВУ-П300 | ОВУ-П300 | Переключатель режимов работы ОВУ | |
| 695Е-3705300 | 695Е-3705300 | Сопротивление добавочное в сборе (СЭ-107) | |
| СЭ110 | СЭ110 | Сопротивление помехоподавительное | |
| 130-3708010 | 130-3708010 | Стартер типа СТ-130 в сборе | |
| 695Н-3731042-10 | 695Н-3731042-10 | Стекло фонаря | |
| 695-3722200 | 695-3722200 | Предохранитель типа ПР-2-Б термовибрационный на 20а | |
| ФП116-3716010 | ФП116-3716010 | Фонарь габаритный задний нижний ФП116 | |
| ФП117-3716010 | ФП117-3716010 | Фонарь заднего хода ФП117 | |
| 695-3717008 | 695-3717008 | Фонарь номерного знака в сборе в сборе | |
| ФП115-3716010 | ФП115-3716010 | Фонарь сигнала торможения ФП115 | |
| УП115-3726010-Б | УП115-3726010-Б | Фонарь указателя поворота задний УП115-Б | |
| 695-3811016 | 695-3811016 | Шунт амперметра типа 75-ШС-75 | |
| МЭ-65 | МЭ-65 | Электродвигатель отопительной установки | |
| РС-336 | РС-336 | Электромагнит топливного вентиля | |
| 111.3722 | 111.3722 | Блок плавких предохранителей | |
| ММ358-3810000 | ММ358-3810000 | Датчик давления масла ММ358 | |
| 665778 | 665778 | Блок плавких предохранителей | |
| 699А-3703112-Б | 699А-3703112-Б | Включатель массы с дистанционным управлением (ВК85) | |
| ВК57Э-3710000 | ВК57Э-3710000 | Включатель зажигания ВК57 | |
| 699А-3703122 | 699А-3703122 | Включатель (ВК-45М) | |
| 695-3714100 | 695-3714100 | Включатель света типа В К-26А | |
| ВК2-3720000-А2 | ВК2-3720000-А2 | Включатель плафона подножки ВК2-А2 | |
| ВК322-3710000 | ВК322-3710000 | Включатель кнопочный | |
| 695М-3708500 | 695М-3708500 | Включатель стартера в сборе | |
| ММ124-3810600 | ММ124-3810600 | Датчик аварийного давления воздуха ММ 124 | |
| Г286А-3701000 | Г286А-3701000 | Генератор Г286А | |
| 1ГД-40 | 1ГД-40 | Громкоговоритель салона | |
| 695М-3810046 | 695М-3810046 | Датчик аварийного давления масла ММ111-А | |
| ТМ111-3808000 | ТМ111-3808000 | Датчик аварийного перегрева воды ТМ111 | |
| ОВУ РС66 | ОВУ РС66 | Датчик горения | |
| 695М-3703011 | 695М-3703011 | Батарея аккумуляторная ЭТСТ-150ЭМС | |
| ОВУ РС66-В | ОВУ РС66-В | Датчик перегрева | |
| МЭ-307 | МЭ-307 | Датчик спидометра | |
| 695Б-3808012 | 695Б-3808012 | Датчик указателя температуры воды типа ТМ-100 | |
| БМ125-А | БМ125-А | Датчик уровня топлива | |
| Б114Б-3705000 | Б114Б-3705000 | Катушка зажигания Б114-Б | |
| 695Е-3734000 | 695Е-3734000 | Коммутатор зажигания транзисторный ТК-102 | |
| А12-5 | А12-5 | Лампа габаритного фонаря | |
| А12-1 | А12-1 | Лампа контрольная | |
| 121.3803 | 121.3803 | Лампа контрольная отопителя | |
| А12-6 | А12-6 | Лампа освещения радиаторного отсека | |
| 695Н-3723035 | 695Н-3723035 | Набор клеммный КНЕ-1022 | |
| 695Б-3723034 | 695Б-3723034 | Панель соединительная в сборе (ПС4-А2) | |
| 695Н-3731046-Б | 695Н-3731046-Б | Кронштейн с патроном в сборе |
Содержащиеся в справочниках-каталогах запасные части и детали не предлагаются к продаже, а носят исключительно информационный характер